Traditional House Plans - 3 Bed, 2 Bath, 2015 Sq Ft | Plan 7-145 | Monster House Plans

New plans now available on

dreambook-head-logo See all available plans
SHARE ON

All plans are copyrighted by the individual designer.

Photographs may reflect custom changes that were not included in the original design.

3 Bedroom, 2 Bath Traditional House Plan #7-145

Plan Purchase Options

Price: $0

Please uncheck first "Purchase MML without any plan package" under MONSTER MATERIAL LIST

Monster Material List
Optional Add-Ons
guaranted-label.png

Best Price Guarantee

*Payment Plans Now
Available Through

img See if you qualify

Floor Plans

What's included?
  • Main Floor

    Reverse

    Clicking the Reverse button does not mean you are ordering your plan reversed. It is for visualization purposes only. You may reverse the plan by ordering under “Optional Add-ons”.

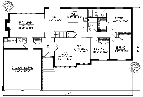
    Main Floor Plan: 7-145

Rear/Alternate Elevations

  • Rear Elevation

    Reverse

    Clicking the Reverse button does not mean you are ordering your plan reversed. It is for visualization purposes only. You may reverse the plan by ordering under “Optional Add-ons”.

    Rear Elevation Plan: 7-145

House Plan Highlights

No compact ranch design this long one-story will more than meet your need for formal spaces casual gathering rooms and spacious sleeping areas. The formal rooms are immediately to the right of the entry foyer and include an open livingdining room combination with dramatic high ceilings. A door in the dining room takes you across a central hallway to the L-shaped island kitchen with walk-in pantry and attached nook. Sliding glass doors in the nook lead to outdoor spaces. The family room is just beyond the nook and features a lovely fireplace and a full wall of windows overlooking the rear yard. The sleeping quarters include two family bedrooms with ample closet space and a shared bath and the master suite with private bath. The master bedroom is also graced by a huge walk-in closet. A two-car garage sits at the opposite end of the plan near a large laundry area and a half bath.

This floor plan is found in our Traditional house plans section

Full Specs and Features

icon Total Living Area

  • Main floor: 2015
  • Total Finished Sq. Ft.: 2015

icon Beds/Baths

  • Bedrooms: 3
  • Full Baths: 2
  • Half Baths: 1

icon Garage

  • Garage: 494
  • Garage Stalls: 2

icon Levels

  • 1 story

Dimension

  • Width: 73' 0"
  • Depth: 47' 0"
  • Height: 21' 4"

Roof slope

  • 8:12 (primary)

Walls (exterior)

  • 2"x6"

Ceiling heights

  • 8' (Main)

Foundation Options

  • Basement Standard With Plan
  • Crawlspace $415
  • Slab $415

How Much Will It Cost To Build?

Wondering what it will actually cost to bring this home to life? Get an instant, customized estimate based on your chosen plan and location.

GET MY COST TO BUILD ESTIMATE

Modify This Plan

"Need Content here about modifying your plan"

Customize This Plan

House Plan Features

Suited for corner lots Suited for a back view
Island Walk-in pantry Eating bar Nook / breakfast
Great room Formal dining room
Vaulted/Volume/Dramatic ceilings
Workshop Oversized garage (3+) Side-entry garage

Reviews

How Much Will It Cost To Build?

Wondering what it will actually cost to bring this home to life? Get an instant, customized estimate based on your chosen plan and location.

GET MY COST TO BUILD ESTIMATE

Modify This Plan

Need changes to the layout or features? Our team can modify any plan to match your vision.

Customize This Plan

House Plan Features

Suited for corner lots Suited for a back view
Island Walk-in pantry Eating bar Nook / breakfast
Great room Formal dining room
Vaulted/Volume/Dramatic ceilings
Workshop Oversized garage (3+) Side-entry garage

Need Some Quick Tips Or Advice?

We want to help you design the house of your dreams as best as we can. If you can't find the answers you're looking for here, get in touch with our licensed architect or a designer!