Traditional House Plans - 3 Bed, 2 Bath, 2021 Sq Ft | Plan 35-363 | Monster House Plans

New plans now available on

dreambook-head-logo See all available plans
SHARE ON

All plans are copyrighted by the individual designer.

Photographs may reflect custom changes that were not included in the original design.

3 Bedroom, 2 Bath Traditional House Plan #35-363

Plan Purchase Options

Price: $0

Please uncheck first "Purchase MML without any plan package" under MONSTER MATERIAL LIST

Monster Material List
Optional Add-Ons
guaranted-label.png

Best Price Guarantee

*Payment Plans Now
Available Through

img See if you qualify

Floor Plans

What's included?
  • Main Floor

    Reverse

    Clicking the Reverse button does not mean you are ordering your plan reversed. It is for visualization purposes only. You may reverse the plan by ordering under “Optional Add-ons”.

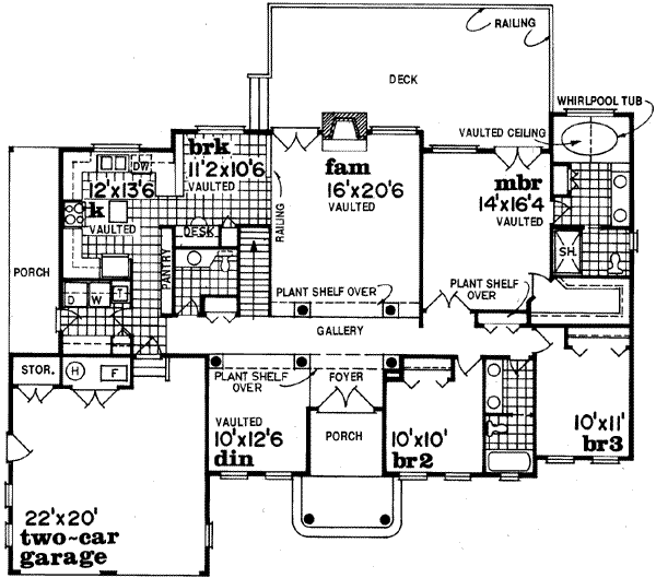
    Main Floor Plan: 35-363

House Plan Highlights

This beautiful design is enhanced by brick siding and decorative wood columns at the entry. Plant ledges, which encompass the colonnaded foyer, and high vaulted ceilings throughout adorn the interior. Directly in view of the foyer is a vaulted family room which opens to a large railed deck beyond. The fireplace in the family room also warms the breakfast nook as the two are separated only by a low railing. A gourmet kitchen offers a center preparation island, a long pantry and a built-in desk. A formal dining room is also defined by columns and sits just across the hall from the family room. The master suite has double doors opening to the rear deck, a large walk-in closet, a whirlpool spa, His and Hers vanities and a separate shower. Family bedrooms share the use of a main bath in the hall. The two-car garage features extra storage space.

This floor plan is found in our Traditional house plans section

Full Specs and Features

icon Total Living Area

  • Main floor: 2021
  • Total Finished Sq. Ft.: 2021

icon Beds/Baths

  • Bedrooms: 3
  • Full Baths: 2
  • Half Baths: 1

icon Garage

  • Garage: 538
  • Garage Stalls: 2

icon Levels

  • 1 story

Dimension

  • Width: 68' 8"
  • Depth: 50' 4"
  • Height: 26' 0"

Roof slope

  • 10:12 (primary)

Walls (exterior)

  • 2"x6"

Ceiling heights

  • 8' (Main)

Foundation Options

  • Basement Standard With Plan
  • Walk-out basement $425
  • Crawlspace Standard With Plan
  • Slab $295

How Much Will It Cost To Build?

Wondering what it will actually cost to bring this home to life? Get an instant, customized estimate based on your chosen plan and location.

GET MY COST TO BUILD ESTIMATE

Modify This Plan

"Need Content here about modifying your plan"

Customize This Plan

House Plan Features

Suited for a back view
Island Eating bar Nook / breakfast
Great room Open concept floor plan No formal living/dining
Covered rear porch
Vaulted/Volume/Dramatic ceilings

Reviews

How Much Will It Cost To Build?

Wondering what it will actually cost to bring this home to life? Get an instant, customized estimate based on your chosen plan and location.

GET MY COST TO BUILD ESTIMATE

Modify This Plan

Need changes to the layout or features? Our team can modify any plan to match your vision.

Customize This Plan

House Plan Features

Suited for a back view
Island Eating bar Nook / breakfast
Great room Open concept floor plan No formal living/dining
Covered rear porch
Vaulted/Volume/Dramatic ceilings

Need Some Quick Tips Or Advice?

We want to help you design the house of your dreams as best as we can. If you can't find the answers you're looking for here, get in touch with our licensed architect or a designer!