Traditional House Plans - 3 Bed, 2 Bath, 2111 Sq Ft | Plan 35-160 | Monster House Plans

New plans now available on

dreambook-head-logo See all available plans
  • MEMORIAL DAY SALE! - 15% OFF Most Plans

    Some exceptions apply. Prices as marked.

SHARE ON

All plans are copyrighted by the individual designer.

Photographs may reflect custom changes that were not included in the original design.

3 Bedroom, 2 Bath Traditional House Plan #35-160

Plan Purchase Options

Price: $0

Please uncheck first "Purchase MML without any plan package" under MONSTER MATERIAL LIST

Monster Material List
Optional Add-Ons
guaranted-label.png

Best Price Guarantee

*Payment Plans Now
Available Through

img See if you qualify

Floor Plans

What's included?
  • Main Floor

    Reverse

    Clicking the Reverse button does not mean you are ordering your plan reversed. It is for visualization purposes only. You may reverse the plan by ordering under “Optional Add-ons”.

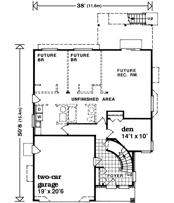
    Main Floor Plan: 35-160
  • Upper/Second Floor

    Reverse

    Clicking the Reverse button does not mean you are ordering your plan reversed. It is for visualization purposes only. You may reverse the plan by ordering under “Optional Add-ons”.

    Upper/Second Floor Plan: 35-160

House Plan Highlights

383 square foot finished foyer and den or in-home office - introduces this home. Open, circular staircase and bay window enhance the spaciousness throughout the living and dining room. Efficient U-shaped kitchen offers abundant counter space, eating bar, walk-in pantry and breakfast bay. Adjoining family room, with fireplace extends to a sundeck - ideal for outdoor entertaining. Master bedroom boasts a large walk-in closet private sundeck entry, and lavish master bath with his and her vanity, shower and whirlpool spa. Unfinished lower level provides 911 sq. ft. for future expansion.

This floor plan is found in our Traditional house plans section

Full Specs and Features

icon Total Living Area

  • Main floor: 383
  • Upper floor: 1728
  • Basement: 911
  • Total Finished Sq. Ft.: 2111

icon Beds/Baths

  • Bedrooms: 3
  • Full Baths: 2

icon Garage

  • Garage: 410
  • Garage Stalls: 2

icon Levels

  • 2 stories

Dimension

  • Width: 38' 0"
  • Depth: 50' 8"
  • Height: 26' 0"

Roof slope

  • 6:12 (primary)

Walls (exterior)

  • 2"x6"

Ceiling heights

  • 8' (Main)
    8' (Upper)

Foundation Options

  • Basement $395
  • Walk-out basement $425
  • Crawlspace $295
  • Slab Standard With Plan

How Much Will It Cost To Build?

Wondering what it will actually cost to bring this home to life? Get an instant, customized estimate based on your chosen plan and location.

GET MY COST TO BUILD ESTIMATE

Modify This Plan

"Need Content here about modifying your plan"

Customize This Plan

House Plan Features

Suited for a narrow lot
Upstairs Master
Walk-in pantry Eating bar Nook / breakfast
Family room Hobby / rec-room Main Floor laundry Open concept floor plan No formal living/dining Den / office / computer Unfinished/future space
Covered front porch Sun-deck
Grand Entry Circular / dual staircases Vaulted/Volume/Dramatic ceilings Inverted living

Reviews

How Much Will It Cost To Build?

Wondering what it will actually cost to bring this home to life? Get an instant, customized estimate based on your chosen plan and location.

GET MY COST TO BUILD ESTIMATE

Modify This Plan

Need changes to the layout or features? Our team can modify any plan to match your vision.

Customize This Plan

House Plan Features

Suited for a narrow lot
Upstairs Master
Walk-in pantry Eating bar Nook / breakfast
Family room Hobby / rec-room Main Floor laundry Open concept floor plan No formal living/dining Den / office / computer Unfinished/future space
Covered front porch Sun-deck
Grand Entry Circular / dual staircases Vaulted/Volume/Dramatic ceilings Inverted living

Need Some Quick Tips Or Advice?

We want to help you design the house of your dreams as best as we can. If you can't find the answers you're looking for here, get in touch with our licensed architect or a designer!