Traditional House Plans - 2 Bed, 2 Bath, 2162 Sq Ft | Plan 53-134 | Monster House Plans

New plans now available on

dreambook-head-logo See all available plans
SHARE ON

All plans are copyrighted by the individual designer.

Photographs may reflect custom changes that were not included in the original design.

2 Bedroom, 2 Bath Traditional House Plan #53-134

Plan Purchase Options

Price: $0

Please uncheck first "Purchase MML without any plan package" under MONSTER MATERIAL LIST

Monster Material List
Optional Add-Ons
guaranted-label.png

Best Price Guarantee

*Payment Plans Now
Available Through

img See if you qualify

Floor Plans

What's included?
  • Main Floor

    Reverse

    Clicking the Reverse button does not mean you are ordering your plan reversed. It is for visualization purposes only. You may reverse the plan by ordering under “Optional Add-ons”.

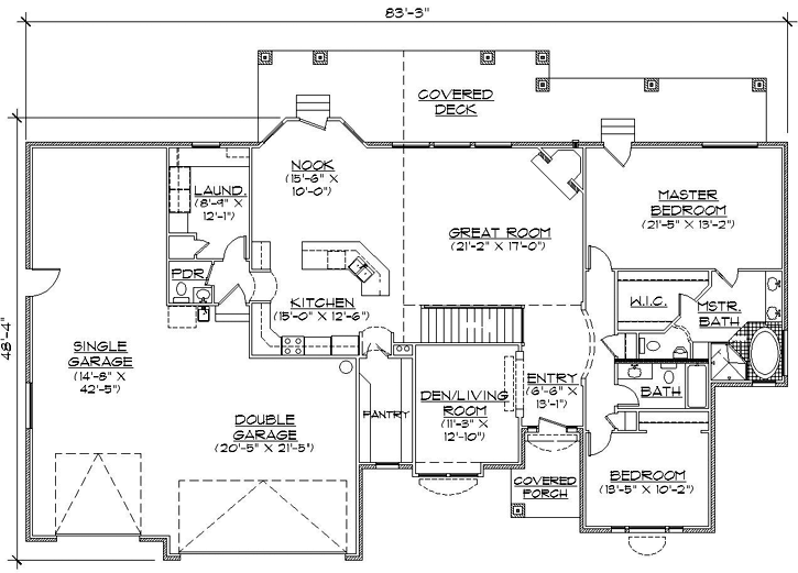
    Main Floor Plan: 53-134
  • Lower Floor

    Reverse

    Clicking the Reverse button does not mean you are ordering your plan reversed. It is for visualization purposes only. You may reverse the plan by ordering under “Optional Add-ons”.

    Lower Floor Plan: 53-134

Rear/Alternate Elevations

  • Rear Elevation

    Reverse

    Clicking the Reverse button does not mean you are ordering your plan reversed. It is for visualization purposes only. You may reverse the plan by ordering under “Optional Add-ons”.

    Rear Elevation Plan: 53-134

House Plan Highlights

This small but spacious Ranch style home has it all! Walk through the simple entryway into the great room with corner fireplace, large kitchen with built-in island and walk-in pantry, and a bayed breakfast nook that opens out onto a patio and adjacent covered porch. The master suite is located at the rear of the house with a luxury bathroom, walk-in closet, and windows surrounding the jetted tub. The lower level offers a combination of finished and unfinished space, including two additional bedrooms, a recreation room with built-in wet bar, a gun vault, and an exercise room. A full bathroom and two walk-in closets enable you to use this level for additional living space or for storage and activities.

This floor plan is found in our Traditional house plans section

Full Specs and Features

icon Total Living Area

  • Main floor: 2162
  • Lower Floor: 2013
  • Total Finished Sq. Ft.: 2162

icon Beds/Baths

  • Bedrooms: 2
  • Full Baths: 2
  • Half Baths: 1

icon Garage

  • Garage Stalls: 3

icon Levels

  • 1 story

Dimension

  • Width: 83' 3"
  • Depth: 45' 9"
  • Height: 22' 6"

Roof slope

  • 7:12 (primary)

Walls (exterior)

  • 2"x4"

Ceiling heights

  • 10' (Main)

Foundation Options

  • Basement Standard With Plan

How Much Will It Cost To Build?

Wondering what it will actually cost to bring this home to life? Get an instant, customized estimate based on your chosen plan and location.

GET MY COST TO BUILD ESTIMATE

Modify This Plan

"Need Content here about modifying your plan"

Customize This Plan

House Plan Features

Suited for a back view
Island Walk-in pantry Eating bar
Great room Open concept floor plan No formal living/dining
Covered rear porch
Oversized garage (3+)

Reviews

How Much Will It Cost To Build?

Wondering what it will actually cost to bring this home to life? Get an instant, customized estimate based on your chosen plan and location.

GET MY COST TO BUILD ESTIMATE

Modify This Plan

Need changes to the layout or features? Our team can modify any plan to match your vision.

Customize This Plan

House Plan Features

Suited for a back view
Island Walk-in pantry Eating bar
Great room Open concept floor plan No formal living/dining
Covered rear porch
Oversized garage (3+)

Need Some Quick Tips Or Advice?

We want to help you design the house of your dreams as best as we can. If you can't find the answers you're looking for here, get in touch with our licensed architect or a designer!