Traditional House Plans - 3 Bed, 2 Bath, 2210 Sq Ft | Plan 77-292 | Monster House Plans

New plans now available on

dreambook-head-logo See all available plans
SHARE ON

All plans are copyrighted by the individual designer.

Photographs may reflect custom changes that were not included in the original design.

3 Bedroom, 2 Bath Traditional House Plan #77-292

Plan Purchase Options

Price: $0

Please uncheck first "Purchase MML without any plan package" under MONSTER MATERIAL LIST

Monster Material List
Optional Add-Ons
guaranted-label.png

Best Price Guarantee

*Payment Plans Now
Available Through

img See if you qualify

Floor Plans

What's included?
  • Main Floor

    Reverse

    Clicking the Reverse button does not mean you are ordering your plan reversed. It is for visualization purposes only. You may reverse the plan by ordering under “Optional Add-ons”.

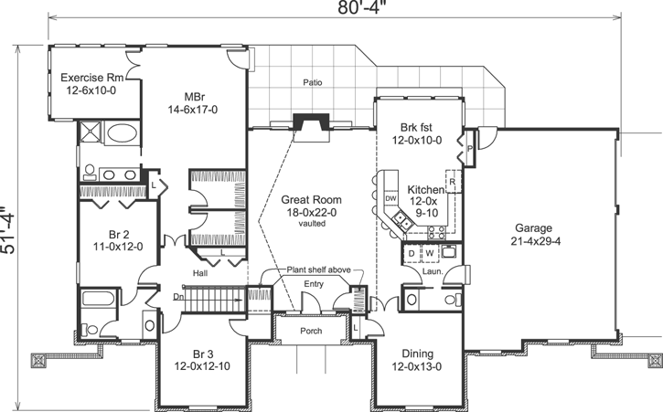
    Main Floor Plan: 77-292

Rear/Alternate Elevations

  • Rear Elevation

    Reverse

    Clicking the Reverse button does not mean you are ordering your plan reversed. It is for visualization purposes only. You may reverse the plan by ordering under “Optional Add-ons”.

    Rear Elevation Plan: 77-292

House Plan Highlights

Superb Planning2210 total square feet of living areaSpecial featuresThe vaulted great room with cozy fireplace has double access to the rear patioA five-seat snack counter built-in pantry and sun-drenched breakfast room with windows on three sides are featured in the efficient kitchenA spare room perfect for an exercise room study sunroom or nursery is just steps away from the master bedroom suite with double walk-in closets and a luxury bath 3 bedrooms 2 12 baths 3-car side entry garageBasement foundation

This floor plan is found in our Traditional house plans section

Full Specs and Features

icon Total Living Area

  • Main floor: 2210
  • Basement: 2210
  • Porches: 47
  • Total Finished Sq. Ft.: 2210

icon Beds/Baths

  • Bedrooms: 3
  • Full Baths: 2
  • Half Baths: 1

icon Garage

  • Garage: 633
  • Garage Stalls: 3

icon Levels

  • 1 story

Dimension

  • Width: 80' 4"
  • Depth: 51' 4"

Roof slope

  • 10:12 (primary)
  • 12:12 (secondary)

Walls (exterior)

  • 2"x4"

Ceiling heights

  • 9' (Main)

Foundation Options

  • Basement Standard With Plan

How Much Will It Cost To Build?

Wondering what it will actually cost to bring this home to life? Get an instant, customized estimate based on your chosen plan and location.

GET MY COST TO BUILD ESTIMATE

Modify This Plan

"Need Content here about modifying your plan"

Customize This Plan

House Plan Features

Suited for corner lots
Teen suite/Jack & Jill bath
Eating bar Nook / breakfast
Great room Gym / exercise room Open concept floor plan Formal dining room
Oversized garage (3+) Side-entry garage

Reviews

How Much Will It Cost To Build?

Wondering what it will actually cost to bring this home to life? Get an instant, customized estimate based on your chosen plan and location.

GET MY COST TO BUILD ESTIMATE

Modify This Plan

Need changes to the layout or features? Our team can modify any plan to match your vision.

Customize This Plan

House Plan Features

Suited for corner lots
Teen suite/Jack & Jill bath
Eating bar Nook / breakfast
Great room Gym / exercise room Open concept floor plan Formal dining room
Oversized garage (3+) Side-entry garage

Need Some Quick Tips Or Advice?

We want to help you design the house of your dreams as best as we can. If you can't find the answers you're looking for here, get in touch with our licensed architect or a designer!