Traditional House Plans - 4 Bed, 2 Bath, 2223 Sq Ft | Plan 7-1030 | Monster House Plans

New plans now available on

dreambook-head-logo See all available plans
SHARE ON

All plans are copyrighted by the individual designer.

Photographs may reflect custom changes that were not included in the original design.

Design Comments

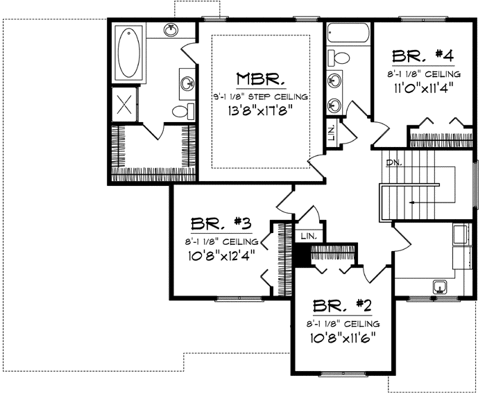
9'. Master Bedrm 9' Step

4 Bedroom, 2 Bath Traditional House Plan #7-1030

Plan Purchase Options

Price: $0

Please uncheck first "Purchase MML without any plan package" under MONSTER MATERIAL LIST

Monster Material List
Optional Add-Ons
guaranted-label.png

Best Price Guarantee

*Payment Plans Now
Available Through

img See if you qualify

Floor Plans

What's included?
  • Main Floor

    Reverse

    Clicking the Reverse button does not mean you are ordering your plan reversed. It is for visualization purposes only. You may reverse the plan by ordering under “Optional Add-ons”.

    Main Floor Plan: 7-1030
  • Upper/Second Floor

    Reverse

    Clicking the Reverse button does not mean you are ordering your plan reversed. It is for visualization purposes only. You may reverse the plan by ordering under “Optional Add-ons”.

    Upper/Second Floor Plan: 7-1030

Rear/Alternate Elevations

  • Rear Elevation

    Reverse

    Clicking the Reverse button does not mean you are ordering your plan reversed. It is for visualization purposes only. You may reverse the plan by ordering under “Optional Add-ons”.

    Rear Elevation Plan: 7-1030

House Plan Highlights

Traditional in style clean rooflines and massive columns define this two-story home where youll love the open design. As you enter the home the office lies just to the right while the main living area beckons you into the home from directly ahead. The kitchen features an island that flows into the casual dining space and great room to the left. Upstairs the master suite features a step ceiling spacious walk-in closet and private bath while three additional bedrooms have direct access to the full bath and laundry area just off the hallway. A three-stall garage with extra storage and completes this home.

This floor plan is found in our Traditional house plans section

Full Specs and Features

icon Total Living Area

  • Main floor: 1036
  • Upper floor: 1187
  • Porches: 90
  • Total Finished Sq. Ft.: 2223

icon Beds/Baths

  • Bedrooms: 4
  • Full Baths: 2
  • Half Baths: 1

icon Garage

  • Garage: 908
  • Garage Stalls: 3

icon Levels

  • 2 stories

Dimension

  • Width: 52' 4"
  • Depth: 41' 0"
  • Height: 27' 0"

Roof slope

  • 8:12 (primary)
  • 6:12 (secondary)

Walls (exterior)

  • 2"x6"

Ceiling heights

  • 8' (Upper)

Foundation Options

  • Basement Standard With Plan
  • Crawlspace $415
  • Slab $415

How Much Will It Cost To Build?

Wondering what it will actually cost to bring this home to life? Get an instant, customized estimate based on your chosen plan and location.

GET MY COST TO BUILD ESTIMATE

Modify This Plan

"Need Content here about modifying your plan"

Customize This Plan

House Plan Features

Suited for corner lots Suited for a back view Suited for a down-sloping lot
Split bedrooms Teen suite/Jack & Jill bath
Walk-in pantry Butler's pantry Eating bar Nook / breakfast
Great room Open concept floor plan Formal dining room Den / office / computer
Vaulted/Volume/Dramatic ceilings
Oversized garage (3+) Side-entry garage

Reviews

How Much Will It Cost To Build?

Wondering what it will actually cost to bring this home to life? Get an instant, customized estimate based on your chosen plan and location.

GET MY COST TO BUILD ESTIMATE

Modify This Plan

Need changes to the layout or features? Our team can modify any plan to match your vision.

Customize This Plan

House Plan Features

Suited for corner lots Suited for a back view Suited for a down-sloping lot
Split bedrooms Teen suite/Jack & Jill bath
Walk-in pantry Butler's pantry Eating bar Nook / breakfast
Great room Open concept floor plan Formal dining room Den / office / computer
Vaulted/Volume/Dramatic ceilings
Oversized garage (3+) Side-entry garage

Need Some Quick Tips Or Advice?

We want to help you design the house of your dreams as best as we can. If you can't find the answers you're looking for here, get in touch with our licensed architect or a designer!