Traditional House Plans - 4 Bed, 2 Bath, 2253 Sq Ft | Plan 4-181 | Monster House Plans

New plans now available on

dreambook-head-logo See all available plans
SHARE ON

All plans are copyrighted by the individual designer.

Photographs may reflect custom changes that were not included in the original design.

4 Bedroom, 2 Bath Traditional House Plan #4-181

Plan Purchase Options

Price: $0

Please uncheck first "Purchase MML without any plan package" under MONSTER MATERIAL LIST

Optional Add-Ons
guaranted-label.png

Best Price Guarantee

*Payment Plans Now
Available Through

img See if you qualify

Floor Plans

What's included?
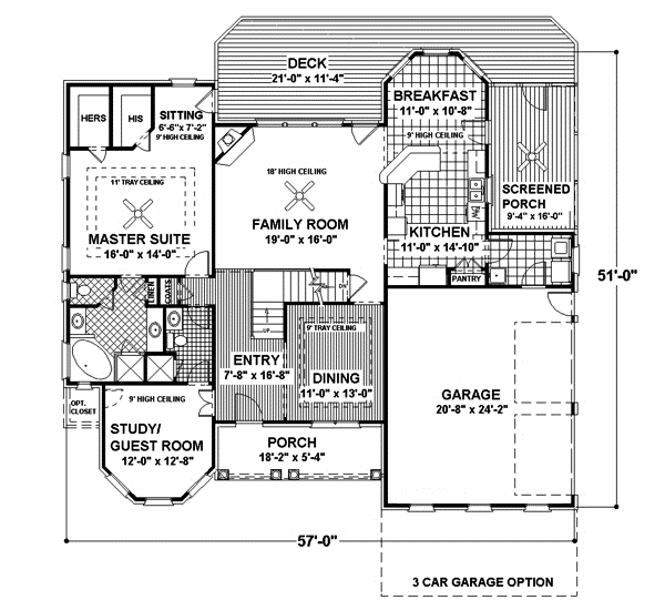
  • Main Floor

    Reverse

    Clicking the Reverse button does not mean you are ordering your plan reversed. It is for visualization purposes only. You may reverse the plan by ordering under “Optional Add-ons”.

    Main Floor Plan: 4-181
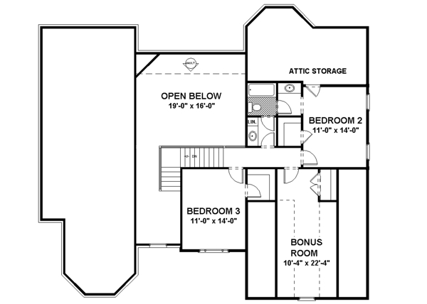
  • Upper/Second Floor

    Reverse

    Clicking the Reverse button does not mean you are ordering your plan reversed. It is for visualization purposes only. You may reverse the plan by ordering under “Optional Add-ons”.

    Upper/Second Floor Plan: 4-181

Rear/Alternate Elevations

  • Rear Elevation

    Reverse

    Clicking the Reverse button does not mean you are ordering your plan reversed. It is for visualization purposes only. You may reverse the plan by ordering under “Optional Add-ons”.

    Rear Elevation Plan: 4-181

House Plan Highlights

This alluring 1-1/2 story "master-down" blends a spectacular floor plan with a lovely facade to create a home that's simply irresistible. It's efficient design yields spacious rooms and soaring spaces defying its affordable 2253 square foot size.


You're welcomed by an inviting front porch, and greeted by a beautiful leaded glass door leading to the 2-story entry. To the right is an elegant dining room adorned with a tray ceiling. Beyond the stairs is the dramatic family room, accented with a corner fireplace and a window wall with arched transoms. The sumptuous master suite includes a double tray ceiling, sitting area and his and hers walk-in closets. The study/guest room provides a flexible space. And, at the end of a long day, the screened porch is the perfect place to relax. Lower level rooms, not vaulted or trayed, have 9' ceilings.


The basement provides plenty of storage area and allows for future expansion. Upstairs, are two 11'x14' bedrooms sharing a "Jack & Jill" bath. There's also more flexible space with the large bonus room. All upper level rooms have 8' ceilings.

This floor plan is found in our Traditional house plans section

Full Specs and Features

icon Total Living Area

  • Main floor: 1719
  • Upper floor: 534
  • Bonus: 247
  • Total Finished Sq. Ft.: 2253

icon Beds/Baths

  • Bedrooms: 4
  • Full Baths: 2
  • Half Baths: 1

icon Garage

  • Garage Stalls: 2

icon Levels

  • 2 stories

Dimension

  • Width: 57' 0"
  • Depth: 51' 0"
  • Height: 30' 6"

Roof slope

  • 12:12 (primary)

Walls (exterior)

  • 2"x4"

Ceiling heights

  • 9' (Main)
    8' (Upper)

Foundation Options

  • Basement Standard With Plan
  • Crawlspace $350
  • Slab $350

How Much Will It Cost To Build?

Wondering what it will actually cost to bring this home to life? Get an instant, customized estimate based on your chosen plan and location.

GET MY COST TO BUILD ESTIMATE

Modify This Plan

"Need Content here about modifying your plan"

Customize This Plan

House Plan Features

Suited for corner lots Suited for a back view
Main floor Master Guest suite Master sitting area/Nursery Teen suite/Jack & Jill bath
Eating bar Nook / breakfast
Bonus room Family room Main Floor laundry Formal dining room Den / office / computer
Covered front porch Covered rear porch Screened porch/sunroom
Vaulted/Volume/Dramatic ceilings
Side-entry garage

Reviews

How Much Will It Cost To Build?

Wondering what it will actually cost to bring this home to life? Get an instant, customized estimate based on your chosen plan and location.

GET MY COST TO BUILD ESTIMATE

Modify This Plan

Need changes to the layout or features? Our team can modify any plan to match your vision.

Customize This Plan

House Plan Features

Suited for corner lots Suited for a back view
Main floor Master Guest suite Master sitting area/Nursery Teen suite/Jack & Jill bath
Eating bar Nook / breakfast
Bonus room Family room Main Floor laundry Formal dining room Den / office / computer
Covered front porch Covered rear porch Screened porch/sunroom
Vaulted/Volume/Dramatic ceilings
Side-entry garage

Need Some Quick Tips Or Advice?

We want to help you design the house of your dreams as best as we can. If you can't find the answers you're looking for here, get in touch with our licensed architect or a designer!