Traditional House Plans - 2 Bed, 2 Bath, 2271 Sq Ft | Plan 7-1190 | Monster House Plans

New plans now available on

dreambook-head-logo See all available plans
SHARE ON

All plans are copyrighted by the individual designer.

Photographs may reflect custom changes that were not included in the original design.

Design Comments

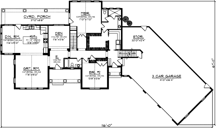
Entry/Den Vaulted, Grt Rm/Din Rm Master Bdrm & Bdrm #2 Cathedral.

2 Bedroom, 2 Bath Traditional House Plan #7-1190

Plan Purchase Options

Price: $0

Please uncheck first "Purchase MML without any plan package" under MONSTER MATERIAL LIST

Monster Material List
Optional Add-Ons
guaranted-label.png

Best Price Guarantee

*Payment Plans Now
Available Through

img See if you qualify

Floor Plans

What's included?
  • Main Floor

    Reverse

    Clicking the Reverse button does not mean you are ordering your plan reversed. It is for visualization purposes only. You may reverse the plan by ordering under “Optional Add-ons”.

    Main Floor Plan: 7-1190
  • Bonus Floor

    Reverse

    Clicking the Reverse button does not mean you are ordering your plan reversed. It is for visualization purposes only. You may reverse the plan by ordering under “Optional Add-ons”.

    Bonus Floor Plan: 7-1190

Rear/Alternate Elevations

  • Rear Elevation

    Reverse

    Clicking the Reverse button does not mean you are ordering your plan reversed. It is for visualization purposes only. You may reverse the plan by ordering under “Optional Add-ons”.

    Rear Elevation Plan: 7-1190

House Plan Highlights

A metal roof graceful columns and an angled garage all make this home unique and spacious.A vaulted ceiling runs from the entry through the den directly ahead.The great room of this home lies to the front and features a cathedral ceiling.The kitchen includes a walk-in pantry central island and direct access to the dining area.A covered porch accessed just off the kitchen runs along the back of the home for extra living space.The master suite includes a cathedral ceiling walk-in closet and direct access to the laundry room.The second bedroom lies to the front of the home with access to the bathroom just off the hall.A bonus room is found over the garage for extra storage or living space.A three-stall angled garage with extra storage completes the home.

This floor plan is found in our Traditional house plans section

Full Specs and Features

icon Total Living Area

  • Main floor: 2271
  • Bonus: 653
  • Porches: 464
  • Total Finished Sq. Ft.: 2271

icon Beds/Baths

  • Bedrooms: 2
  • Full Baths: 2

icon Garage

  • Garage: 1079
  • Garage Stalls: 3

icon Levels

  • 1 story

Dimension

  • Width: 116' 0"
  • Depth: 67' 11"
  • Height: 27' 1"

Roof slope

  • 12:12 (primary)
  • 10:12 (secondary)

Walls (exterior)

  • 2"x6"

Ceiling heights

  • 9' (Main)

Foundation Options

  • Basement Standard With Plan
  • Crawlspace $415
  • Slab $415

How Much Will It Cost To Build?

Wondering what it will actually cost to bring this home to life? Get an instant, customized estimate based on your chosen plan and location.

GET MY COST TO BUILD ESTIMATE

Modify This Plan

"Need Content here about modifying your plan"

Customize This Plan

House Plan Features

Suited for corner lots Suited for a back view Suited for a down-sloping lot
Island Walk-in pantry Eating bar Nook / breakfast
Great room Open concept floor plan Formal dining room
Covered front porch Covered rear porch Screened porch/sunroom
Vaulted/Volume/Dramatic ceilings
Oversized garage (3+) Side-entry garage

Reviews

How Much Will It Cost To Build?

Wondering what it will actually cost to bring this home to life? Get an instant, customized estimate based on your chosen plan and location.

GET MY COST TO BUILD ESTIMATE

Modify This Plan

Need changes to the layout or features? Our team can modify any plan to match your vision.

Customize This Plan

House Plan Features

Suited for corner lots Suited for a back view Suited for a down-sloping lot
Island Walk-in pantry Eating bar Nook / breakfast
Great room Open concept floor plan Formal dining room
Covered front porch Covered rear porch Screened porch/sunroom
Vaulted/Volume/Dramatic ceilings
Oversized garage (3+) Side-entry garage

Need Some Quick Tips Or Advice?

We want to help you design the house of your dreams as best as we can. If you can't find the answers you're looking for here, get in touch with our licensed architect or a designer!