Traditional House Plans - 4 Bed, 2 Bath, 2271 Sq Ft | Plan 35-376 | Monster House Plans

New plans now available on

dreambook-head-logo See all available plans
SHARE ON

All plans are copyrighted by the individual designer.

Photographs may reflect custom changes that were not included in the original design.

4 Bedroom, 2 Bath Traditional House Plan #35-376

Plan Purchase Options

Price: $0

Please uncheck first "Purchase MML without any plan package" under MONSTER MATERIAL LIST

Monster Material List
Optional Add-Ons
guaranted-label.png

Best Price Guarantee

*Payment Plans Now
Available Through

img See if you qualify

Floor Plans

What's included?
  • Main Floor

    Reverse

    Clicking the Reverse button does not mean you are ordering your plan reversed. It is for visualization purposes only. You may reverse the plan by ordering under “Optional Add-ons”.

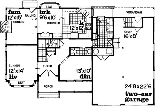
    Main Floor Plan: 35-376
  • Upper/Second Floor

    Reverse

    Clicking the Reverse button does not mean you are ordering your plan reversed. It is for visualization purposes only. You may reverse the plan by ordering under “Optional Add-ons”.

    Upper/Second Floor Plan: 35-376

House Plan Highlights

Country Character
Multi-paned, shuttered windows and a covered porch provide a country character for this four-bedroom home. The vaulted foyer, brightened by second-story windows, spills into the sunken living room where a window seat is nestled in a bay window. The dining room is to the right of the foyer, just across the hall from the U-shaped kitchen with an angled counter, corner window-sink and an adjacent laundry room. A breakfast bar separates the kitchen from the breakfast bay, made comfortable with a window seat. The family room is also sunken and provides a fireplace and access to the rear yard. Use the service entrance to reach the two-car garage, which has a workshop area. Bedrooms upstairs include a master suite, with a walk-in closet and a full bath, and three family bedrooms. Bedroom 4 offers a window seat. A large unfinished bonus room is reached via stairs in the garage.

This floor plan is found in our Traditional house plans section

Full Specs and Features

icon Total Living Area

  • Main floor: 1187
  • Upper floor: 1084
  • Bonus: 740
  • Total Finished Sq. Ft.: 2271

icon Beds/Baths

  • Bedrooms: 4
  • Full Baths: 2
  • Half Baths: 1

icon Garage

  • Garage: 797
  • Garage Stalls: 2

icon Levels

  • 2 stories

Dimension

  • Width: 60' 0"
  • Depth: 40' 0"
  • Height: 28' 0"

Roof slope

  • 7:12 (primary)
  • 10:12 (secondary)

Walls (exterior)

  • 2"x6"

Ceiling heights

  • 8' (Main)

Foundation Options

  • Basement Standard With Plan
  • Walk-out basement $425
  • Crawlspace Standard With Plan
  • Slab $295

How Much Will It Cost To Build?

Wondering what it will actually cost to bring this home to life? Get an instant, customized estimate based on your chosen plan and location.

GET MY COST TO BUILD ESTIMATE

Modify This Plan

"Need Content here about modifying your plan"

Customize This Plan

House Plan Features

Upstairs Master
Eating bar Nook / breakfast Hearth room
Bonus room Family room Main Floor laundry Open concept floor plan Formal dining room Formal living room
Covered front porch Covered rear porch
Vaulted/Volume/Dramatic ceilings

Reviews

How Much Will It Cost To Build?

Wondering what it will actually cost to bring this home to life? Get an instant, customized estimate based on your chosen plan and location.

GET MY COST TO BUILD ESTIMATE

Modify This Plan

Need changes to the layout or features? Our team can modify any plan to match your vision.

Customize This Plan

House Plan Features

Upstairs Master
Eating bar Nook / breakfast Hearth room
Bonus room Family room Main Floor laundry Open concept floor plan Formal dining room Formal living room
Covered front porch Covered rear porch
Vaulted/Volume/Dramatic ceilings

Need Some Quick Tips Or Advice?

We want to help you design the house of your dreams as best as we can. If you can't find the answers you're looking for here, get in touch with our licensed architect or a designer!