Traditional House Plans - 3 Bed, 2 Bath, 2312 Sq Ft | Plan 77-356 | Monster House Plans

New plans now available on

dreambook-head-logo See all available plans
SHARE ON

All plans are copyrighted by the individual designer.

Photographs may reflect custom changes that were not included in the original design.

3 Bedroom, 2 Bath Traditional House Plan #77-356

Plan Purchase Options

Price: $0

Please uncheck first "Purchase MML without any plan package" under MONSTER MATERIAL LIST

Monster Material List
Optional Add-Ons
guaranted-label.png

Best Price Guarantee

*Payment Plans Now
Available Through

img See if you qualify

Floor Plans

What's included?
  • Main Floor

    Reverse

    Clicking the Reverse button does not mean you are ordering your plan reversed. It is for visualization purposes only. You may reverse the plan by ordering under “Optional Add-ons”.

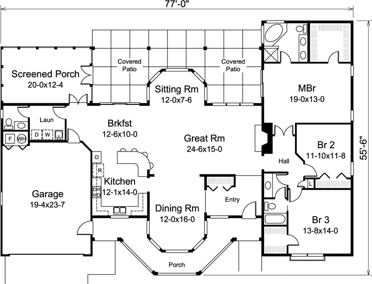
    Main Floor Plan: 77-356

Rear/Alternate Elevations

  • Rear Elevation

    Reverse

    Clicking the Reverse button does not mean you are ordering your plan reversed. It is for visualization purposes only. You may reverse the plan by ordering under “Optional Add-ons”.

    Rear Elevation Plan: 77-356

House Plan Highlights

Extraordinary Design For Entertaining2312 total square feet of living areaSpecial featuresThis fabulous home has many lovely surprises like the unique bay-shaped front porch The spacious great room with warming fireplace features an ideal sitting or piano room that extends into the covered patio areas The well-designed kitchen enjoys a breakfast room and curved snack bar with splendid views to the rear covered patio through 9' wide sliding glass doorsA huge screened porch that is conveniently adjacent to the rear covered patio areas can be accesses through double entry doors from the breakfast room 3 bedrooms 2 12 baths 2-car garageSlab foundation

This floor plan is found in our Traditional house plans section

Full Specs and Features

icon Total Living Area

  • Main floor: 2312
  • Porches: 844
  • Total Finished Sq. Ft.: 2312

icon Beds/Baths

  • Bedrooms: 3
  • Full Baths: 2
  • Half Baths: 1

icon Garage

  • Garage: 483
  • Garage Stalls: 2

icon Levels

  • 1 story

Dimension

  • Width: 77' 0"
  • Depth: 55' 6"
  • Height: 23' 6"

Roof slope

  • 8:12 (primary)

Walls (exterior)

  • 2"x6"

Ceiling heights

  • 9' (Main)

Foundation Options

  • Slab Standard With Plan

How Much Will It Cost To Build?

Wondering what it will actually cost to bring this home to life? Get an instant, customized estimate based on your chosen plan and location.

GET MY COST TO BUILD ESTIMATE

Modify This Plan

"Need Content here about modifying your plan"

Customize This Plan

House Plan Features

Suited for a back view
Nook / breakfast
Great room Open concept floor plan Formal dining room
Covered front porch Covered rear porch Screened porch/sunroom
Photos Available

Reviews

How Much Will It Cost To Build?

Wondering what it will actually cost to bring this home to life? Get an instant, customized estimate based on your chosen plan and location.

GET MY COST TO BUILD ESTIMATE

Modify This Plan

Need changes to the layout or features? Our team can modify any plan to match your vision.

Customize This Plan

House Plan Features

Suited for a back view
Nook / breakfast
Great room Open concept floor plan Formal dining room
Covered front porch Covered rear porch Screened porch/sunroom
Photos Available

Need Some Quick Tips Or Advice?

We want to help you design the house of your dreams as best as we can. If you can't find the answers you're looking for here, get in touch with our licensed architect or a designer!