Traditional House Plans - 3 Bed, 2 Bath, 2360 Sq Ft | Plan 77-377 | Monster House Plans

New plans now available on

dreambook-head-logo See all available plans
SHARE ON

All plans are copyrighted by the individual designer.

Photographs may reflect custom changes that were not included in the original design.

3 Bedroom, 2 Bath Traditional House Plan #77-377

Plan Purchase Options

Price: $0

Please uncheck first "Purchase MML without any plan package" under MONSTER MATERIAL LIST

Monster Material List
Optional Add-Ons
guaranted-label.png

Best Price Guarantee

*Payment Plans Now
Available Through

img See if you qualify

Floor Plans

What's included?
  • Main Floor

    Reverse

    Clicking the Reverse button does not mean you are ordering your plan reversed. It is for visualization purposes only. You may reverse the plan by ordering under “Optional Add-ons”.

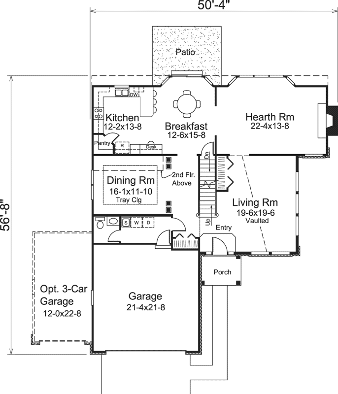
    Main Floor Plan: 77-377
  • Upper/Second Floor

    Reverse

    Clicking the Reverse button does not mean you are ordering your plan reversed. It is for visualization purposes only. You may reverse the plan by ordering under “Optional Add-ons”.

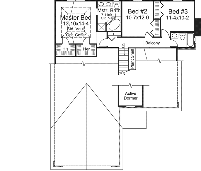
    Upper/Second Floor Plan: 77-377

Rear/Alternate Elevations

  • Rear Elevation

    Reverse

    Clicking the Reverse button does not mean you are ordering your plan reversed. It is for visualization purposes only. You may reverse the plan by ordering under “Optional Add-ons”.

    Rear Elevation Plan: 77-377

House Plan Highlights

Arched Windows Adds Curb Appeal2360 total square feet of living areaSpecial featuresThe enormous hearth room extends off the breakfast area with bay window and features a cozy fireplace on one wall and an oversized bay window on anotherThe U-shaped kitchen features a convenience large walk-in pantry a desk area and an extended counterspace with enough casual dining space for threeThe master bedroom has terrific luxury including his and her walk-in closets and a private bath with a corner spa style tubA balcony overlooks the large living room with an arched window and has views out an active dormer3 bedrooms 2 12 baths 2-car garageBasement foundation1534 square feet on the first floor and 826 square feet on the second floor

This floor plan is found in our Traditional house plans section

Full Specs and Features

icon Total Living Area

  • Main floor: 1534
  • Upper floor: 826
  • Basement: 1383
  • Porches: 53
  • Total Finished Sq. Ft.: 2360

icon Beds/Baths

  • Bedrooms: 3
  • Full Baths: 2
  • Half Baths: 1

icon Garage

  • Garage: 478
  • Garage Stalls: 2

icon Levels

  • 2 stories

Dimension

  • Width: 50' 4"
  • Depth: 56' 8"
  • Height: 29' 3"

Roof slope

  • 8:12 (primary)
  • 10:12 (secondary)

Walls (exterior)

  • 2"x4"

Ceiling heights

  • 9' (Main)
    8' (Upper)

Foundation Options

  • Basement Standard With Plan

How Much Will It Cost To Build?

Wondering what it will actually cost to bring this home to life? Get an instant, customized estimate based on your chosen plan and location.

GET MY COST TO BUILD ESTIMATE

Modify This Plan

"Need Content here about modifying your plan"

Customize This Plan

House Plan Features

Suited for a back view
Upstairs Master
Walk-in pantry Eating bar Nook / breakfast Hearth room
Family room Main Floor laundry Formal dining room Formal living room
Vaulted/Volume/Dramatic ceilings

Reviews

How Much Will It Cost To Build?

Wondering what it will actually cost to bring this home to life? Get an instant, customized estimate based on your chosen plan and location.

GET MY COST TO BUILD ESTIMATE

Modify This Plan

Need changes to the layout or features? Our team can modify any plan to match your vision.

Customize This Plan

House Plan Features

Suited for a back view
Upstairs Master
Walk-in pantry Eating bar Nook / breakfast Hearth room
Family room Main Floor laundry Formal dining room Formal living room
Vaulted/Volume/Dramatic ceilings

Need Some Quick Tips Or Advice?

We want to help you design the house of your dreams as best as we can. If you can't find the answers you're looking for here, get in touch with our licensed architect or a designer!