Traditional House Plans - 4 Bed, 2 Bath, 2388 Sq Ft | Plan 7-616 | Monster House Plans

New plans now available on

dreambook-head-logo See all available plans
SHARE ON

All plans are copyrighted by the individual designer.

Photographs may reflect custom changes that were not included in the original design.

4 Bedroom, 2 Bath Traditional House Plan #7-616

Plan Purchase Options

Price: $0

Please uncheck first "Purchase MML without any plan package" under MONSTER MATERIAL LIST

Monster Material List
Optional Add-Ons
guaranted-label.png

Best Price Guarantee

*Payment Plans Now
Available Through

img See if you qualify

Floor Plans

What's included?
  • Main Floor

    Reverse

    Clicking the Reverse button does not mean you are ordering your plan reversed. It is for visualization purposes only. You may reverse the plan by ordering under “Optional Add-ons”.

    Main Floor Plan: 7-616
  • Upper/Second Floor

    Reverse

    Clicking the Reverse button does not mean you are ordering your plan reversed. It is for visualization purposes only. You may reverse the plan by ordering under “Optional Add-ons”.

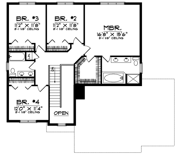
    Upper/Second Floor Plan: 7-616

Rear/Alternate Elevations

  • Rear Elevation

    Reverse

    Clicking the Reverse button does not mean you are ordering your plan reversed. It is for visualization purposes only. You may reverse the plan by ordering under “Optional Add-ons”.

    Rear Elevation Plan: 7-616

House Plan Highlights

With a traditional facade and efficient layout this economical design packs a lot of living space into only 2382 square feet. A two-story entry leads down a gallery hall to the spacious great room built for entertaining with a fireplace flanked by built-ins and abundant natural light. The U-shaped kitchen is situated conveniently between the dining room and sunny nook with outdoor access. Upstairs the master suite is decked out with a private bath and walk-in closet. Twin bedrooms and one slightly larger bedroom all share a full bath which features dual vanities and a linen closet. A three-car garage easily shelters the family fleet.

This floor plan is found in our Traditional house plans section

Full Specs and Features

icon Total Living Area

  • Main floor: 1260
  • Upper floor: 1128
  • Total Finished Sq. Ft.: 2388

icon Beds/Baths

  • Bedrooms: 4
  • Full Baths: 2
  • Half Baths: 1

icon Garage

  • Garage: 633
  • Garage Stalls: 3

icon Levels

  • 2 stories

Dimension

  • Width: 50' 8"
  • Depth: 45' 4"
  • Height: 26' 9"

Roof slope

  • 8:12 (primary)
  • 6:12 (secondary)

Walls (exterior)

  • 2"x6"

Ceiling heights

  • 9' (Main)
    8' (Upper)

Foundation Options

  • Basement Standard With Plan
  • Crawlspace $415
  • Slab $415

How Much Will It Cost To Build?

Wondering what it will actually cost to bring this home to life? Get an instant, customized estimate based on your chosen plan and location.

GET MY COST TO BUILD ESTIMATE

Modify This Plan

"Need Content here about modifying your plan"

Customize This Plan

House Plan Features

Main floor Master Teen suite/Jack & Jill bath
Island Eating bar
Great room Main Floor laundry Open concept floor plan Mud room Formal dining room
Vaulted/Volume/Dramatic ceilings

Reviews

How Much Will It Cost To Build?

Wondering what it will actually cost to bring this home to life? Get an instant, customized estimate based on your chosen plan and location.

GET MY COST TO BUILD ESTIMATE

Modify This Plan

Need changes to the layout or features? Our team can modify any plan to match your vision.

Customize This Plan

House Plan Features

Main floor Master Teen suite/Jack & Jill bath
Island Eating bar
Great room Main Floor laundry Open concept floor plan Mud room Formal dining room
Vaulted/Volume/Dramatic ceilings

Need Some Quick Tips Or Advice?

We want to help you design the house of your dreams as best as we can. If you can't find the answers you're looking for here, get in touch with our licensed architect or a designer!