Traditional House Plans - 3 Bed, 3 Bath, 2481 Sq Ft | Plan 7-810 | Monster House Plans

New plans now available on

dreambook-head-logo See all available plans
SHARE ON

All plans are copyrighted by the individual designer.

Photographs may reflect custom changes that were not included in the original design.

3 Bedroom, 3 Bath Traditional House Plan #7-810

Plan Purchase Options

Price: $0

Please uncheck first "Purchase MML without any plan package" under MONSTER MATERIAL LIST

Monster Material List
Optional Add-Ons
guaranted-label.png

Best Price Guarantee

*Payment Plans Now
Available Through

img See if you qualify

Floor Plans

What's included?
  • Main Floor

    Reverse

    Clicking the Reverse button does not mean you are ordering your plan reversed. It is for visualization purposes only. You may reverse the plan by ordering under “Optional Add-ons”.

    Main Floor Plan: 7-810
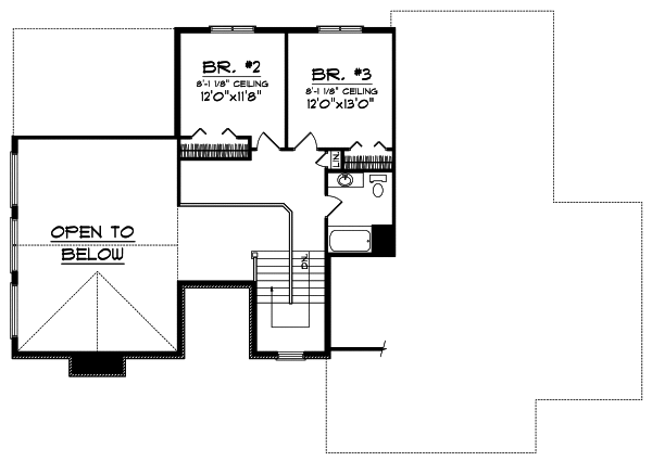
  • Upper/Second Floor

    Reverse

    Clicking the Reverse button does not mean you are ordering your plan reversed. It is for visualization purposes only. You may reverse the plan by ordering under “Optional Add-ons”.

    Upper/Second Floor Plan: 7-810

Rear/Alternate Elevations

  • Rear Elevation

    Reverse

    Clicking the Reverse button does not mean you are ordering your plan reversed. It is for visualization purposes only. You may reverse the plan by ordering under “Optional Add-ons”.

    Rear Elevation Plan: 7-810

House Plan Highlights

Traditional in style this two-story brick and siding home will blend effortlessly into any neighborhood. To your left as you enter the foyer you'll fall in love with the spacious great room with its fireplace large wall of windows and cathedral ceiling. To the back of the home the kitchen nook and dining room all flow easily together to create a living space that is comfortable yet spacious enough for entertaining. The master suite is located on the main level and features a large walk-in closet jacuzzi tub and cathedral ceilings in the bedroom. Upstairs you'll be impressed with the view down into the great room as you discover two additional bedrooms and a full bath. A three-stall garage with extra storage completes this home.

This floor plan is found in our Traditional house plans section

Full Specs and Features

icon Total Living Area

  • Main floor: 1919
  • Upper floor: 562
  • Total Finished Sq. Ft.: 2481

icon Beds/Baths

  • Bedrooms: 3
  • Full Baths: 3

icon Garage

  • Garage: 801
  • Garage Stalls: 3

icon Levels

  • 2 stories

Dimension

  • Width: 71' 0"
  • Depth: 50' 0"
  • Height: 28' 9"

Roof slope

  • 9:12 (primary)
  • 9:12 (secondary)

Walls (exterior)

  • 2"x6"

Ceiling heights

  • 9' (Main)
    8' (Upper)

Foundation Options

  • Basement Standard With Plan
  • Crawlspace $415
  • Slab $415

How Much Will It Cost To Build?

Wondering what it will actually cost to bring this home to life? Get an instant, customized estimate based on your chosen plan and location.

GET MY COST TO BUILD ESTIMATE

Modify This Plan

"Need Content here about modifying your plan"

Customize This Plan

House Plan Features

Suited for a back view
Upstairs Master Split bedrooms
Island Nook / breakfast
Great room Main Floor laundry Open concept floor plan Formal dining room Den / office / computer
Vaulted/Volume/Dramatic ceilings
Oversized garage (3+)

Reviews

How Much Will It Cost To Build?

Wondering what it will actually cost to bring this home to life? Get an instant, customized estimate based on your chosen plan and location.

GET MY COST TO BUILD ESTIMATE

Modify This Plan

Need changes to the layout or features? Our team can modify any plan to match your vision.

Customize This Plan

House Plan Features

Suited for a back view
Upstairs Master Split bedrooms
Island Nook / breakfast
Great room Main Floor laundry Open concept floor plan Formal dining room Den / office / computer
Vaulted/Volume/Dramatic ceilings
Oversized garage (3+)

Need Some Quick Tips Or Advice?

We want to help you design the house of your dreams as best as we can. If you can't find the answers you're looking for here, get in touch with our licensed architect or a designer!