Traditional House Plans - 3 Bed, 2 Bath, 2485 Sq Ft | Plan 4-201 | Monster House Plans

New plans now available on

dreambook-head-logo See all available plans
  • MEMORIAL DAY SALE! - 15% OFF Most Plans

    Some exceptions apply. Prices as marked.

SHARE ON

All plans are copyrighted by the individual designer.

Photographs may reflect custom changes that were not included in the original design.

3 Bedroom, 2 Bath Traditional House Plan #4-201

Plan Purchase Options

Price: $0

Please uncheck first "Purchase MML without any plan package" under MONSTER MATERIAL LIST

Optional Add-Ons
guaranted-label.png

Best Price Guarantee

*Payment Plans Now
Available Through

img See if you qualify

Floor Plans

What's included?
  • Main Floor

    Reverse

    Clicking the Reverse button does not mean you are ordering your plan reversed. It is for visualization purposes only. You may reverse the plan by ordering under “Optional Add-ons”.

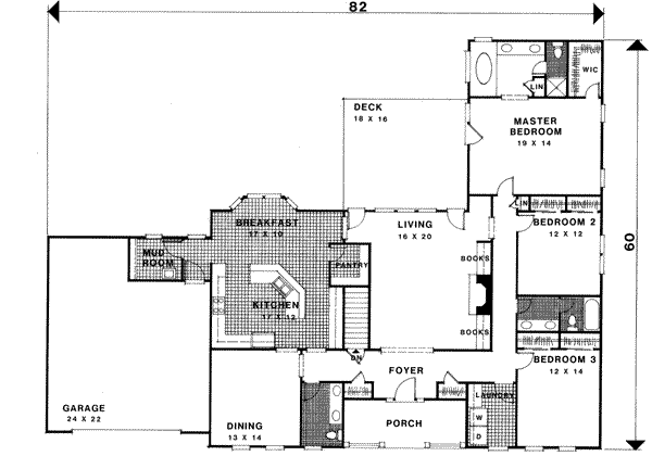
    Main Floor Plan: 4-201

House Plan Highlights

This spacious 2,485 sq.ft. French Provincial ranch features a large foyer with double coat closets. Built-in bookcases are located on both sides of the fireplace in the living room. A "wrap-around" snack bar separates the kitchen and breakfast areas. The kitchen features a walk-in pantry. The laundry room is conveniently located in the bedroom wing. The master suite has a walk-in closet and master bath with double vanities,separate shower and tub, and linen closet. The 18'x16' deck is accessible from the master suite as well as the living room. The two remaining bedrooms have two closets each and share a hall bath with double vanity.

This floor plan is found in our Traditional house plans section

Full Specs and Features

icon Total Living Area

  • Main floor: 2485
  • Total Finished Sq. Ft.: 2485

icon Beds/Baths

  • Bedrooms: 3
  • Full Baths: 2
  • Half Baths: 1

icon Garage

  • Garage Stalls: 2

icon Levels

  • 1 story

Dimension

  • Width: 82' 0"
  • Depth: 60' 0"
  • Height: 24' 6"

Roof slope

  • 7:12 (primary)

Walls (exterior)

  • 2"x4"

Ceiling heights

  • 9' (Main)

Foundation Options

  • Basement Standard With Plan
  • Crawlspace $350
  • Slab $350

How Much Will It Cost To Build?

Wondering what it will actually cost to bring this home to life? Get an instant, customized estimate based on your chosen plan and location.

GET MY COST TO BUILD ESTIMATE

Modify This Plan

"Need Content here about modifying your plan"

Customize This Plan

House Plan Features

Suited for a back view
Island Walk-in pantry Eating bar Nook / breakfast
Family room Mud room Formal dining room
Covered front porch

Reviews

How Much Will It Cost To Build?

Wondering what it will actually cost to bring this home to life? Get an instant, customized estimate based on your chosen plan and location.

GET MY COST TO BUILD ESTIMATE

Modify This Plan

Need changes to the layout or features? Our team can modify any plan to match your vision.

Customize This Plan

House Plan Features

Suited for a back view
Island Walk-in pantry Eating bar Nook / breakfast
Family room Mud room Formal dining room
Covered front porch

Need Some Quick Tips Or Advice?

We want to help you design the house of your dreams as best as we can. If you can't find the answers you're looking for here, get in touch with our licensed architect or a designer!