Traditional House Plans - 4 Bed, 3 Bath, 2553 Sq Ft | Plan 7-958 | Monster House Plans

New plans now available on

dreambook-head-logo See all available plans
SHARE ON

All plans are copyrighted by the individual designer.

Photographs may reflect custom changes that were not included in the original design.

Design Comments

Master Bedroom ceiling - 9' Tray, Living Room, Dining Room, Entry, & Kitchen Vaulted.

4 Bedroom, 3 Bath Traditional House Plan #7-958

Plan Purchase Options

Price: $0

Please uncheck first "Purchase MML without any plan package" under MONSTER MATERIAL LIST

Monster Material List
Optional Add-Ons
guaranted-label.png

Best Price Guarantee

*Payment Plans Now
Available Through

img See if you qualify

Floor Plans

What's included?
  • Main Floor

    Reverse

    Clicking the Reverse button does not mean you are ordering your plan reversed. It is for visualization purposes only. You may reverse the plan by ordering under “Optional Add-ons”.

    Main Floor Plan: 7-958
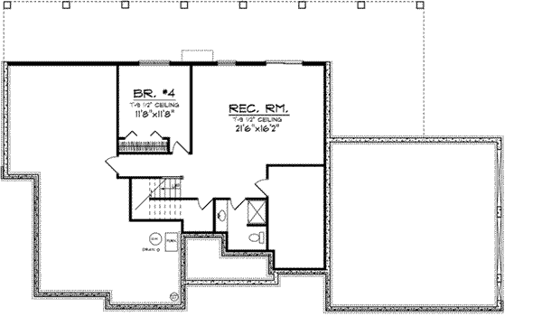
  • Lower Floor

    Reverse

    Clicking the Reverse button does not mean you are ordering your plan reversed. It is for visualization purposes only. You may reverse the plan by ordering under “Optional Add-ons”.

    Lower Floor Plan: 7-958

Rear/Alternate Elevations

  • Rear Elevation

    Reverse

    Clicking the Reverse button does not mean you are ordering your plan reversed. It is for visualization purposes only. You may reverse the plan by ordering under “Optional Add-ons”.

    Rear Elevation Plan: 7-958

House Plan Highlights

Traditional in style with an added touch of country this ranch home is sure to please your family and friends. A vaulted ceiling greets you as you enter and continues on to the living room directly ahead where a fireplace flanked by windows lets in plenty of natural lighting. The kitchen features a unique breakfast bar that overlooks the dining and living rooms to create a daily living area that large enough for many guests. The bedrooms are located to your left off the entry and include a master suite with spacious walk-in closet private bath with whirlpool tub and a step ceiling in the bedroom. The other two bedrooms lie to the front of the home and share a full bath just off the hallway. The lower level includes a large rec room a fourth bedroom and a 34 bath.

This floor plan is found in our Traditional house plans section

Full Specs and Features

icon Total Living Area

  • Main floor: 1797
  • Lower Floor: 756
  • Total Finished Sq. Ft.: 2553

icon Beds/Baths

  • Bedrooms: 4
  • Full Baths: 3
  • Half Baths: 1

icon Garage

  • Garage: 778
  • Garage Stalls: 2

icon Levels

  • 1 story

Dimension

  • Width: 81' 4"
  • Depth: 40' 4"
  • Height: 26' 11"

Roof slope

  • 8:12 (primary)

Walls (exterior)

  • 2"x6"

Ceiling heights

  • 8' (Upper)

Foundation Options

  • Walk-out basement Standard With Plan
  • Crawlspace $415
  • Slab $415

How Much Will It Cost To Build?

Wondering what it will actually cost to bring this home to life? Get an instant, customized estimate based on your chosen plan and location.

GET MY COST TO BUILD ESTIMATE

Modify This Plan

"Need Content here about modifying your plan"

Customize This Plan

House Plan Features

Suited for corner lots Suited for a side-sloping lot Suited for a down-sloping lot
Main floor Master
Island Walk-in pantry Eating bar Nook / breakfast
Family room Main Floor laundry Open concept floor plan Formal living room Den / office / computer
Screened porch/sunroom
Vaulted/Volume/Dramatic ceilings
Oversized garage (3+) Side-entry garage

Reviews

How Much Will It Cost To Build?

Wondering what it will actually cost to bring this home to life? Get an instant, customized estimate based on your chosen plan and location.

GET MY COST TO BUILD ESTIMATE

Modify This Plan

Need changes to the layout or features? Our team can modify any plan to match your vision.

Customize This Plan

House Plan Features

Suited for corner lots Suited for a side-sloping lot Suited for a down-sloping lot
Main floor Master
Island Walk-in pantry Eating bar Nook / breakfast
Family room Main Floor laundry Open concept floor plan Formal living room Den / office / computer
Screened porch/sunroom
Vaulted/Volume/Dramatic ceilings
Oversized garage (3+) Side-entry garage

Need Some Quick Tips Or Advice?

We want to help you design the house of your dreams as best as we can. If you can't find the answers you're looking for here, get in touch with our licensed architect or a designer!