Traditional House Plans - 6 Bed, 4 Bath, 2570 Sq Ft | Plan 12-317 | Monster House Plans

New plans now available on

dreambook-head-logo See all available plans
SHARE ON

All plans are copyrighted by the individual designer.

Photographs may reflect custom changes that were not included in the original design.

6 Bedroom, 4 Bath Traditional House Plan #12-317

Plan Purchase Options

Price: $0

Please uncheck first "Purchase MML without any plan package" under MONSTER MATERIAL LIST

Monster Material List
Optional Add-Ons
guaranted-label.png

Best Price Guarantee

*Payment Plans Now
Available Through

img See if you qualify

Floor Plans

What's included?
  • Main Floor

    Reverse

    Clicking the Reverse button does not mean you are ordering your plan reversed. It is for visualization purposes only. You may reverse the plan by ordering under “Optional Add-ons”.

    Main Floor Plan: 12-317
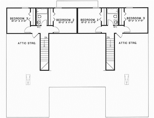
  • Upper/Second Floor

    Reverse

    Clicking the Reverse button does not mean you are ordering your plan reversed. It is for visualization purposes only. You may reverse the plan by ordering under “Optional Add-ons”.

    Upper/Second Floor Plan: 12-317

Rear/Alternate Elevations

  • Rear Elevation

    Reverse

    Clicking the Reverse button does not mean you are ordering your plan reversed. It is for visualization purposes only. You may reverse the plan by ordering under “Optional Add-ons”.

    Rear Elevation Plan: 12-317

House Plan Highlights

You'll enjoy all the comforts of home in this design. Upon entering this southern traditional design, you'll feel warmth in the spacious great room with an angled fireplace. The kitchen is open to a spacious dining room both enjoying windows and a door accessing the back yard. You'll find ultimate seclusion in the master suite with a full bath and huge walk-in closet. The kids will be in a world of their own, upstairs complete with two bedrooms and a full bath.

This floor plan is found in our Traditional house plans section

Full Specs and Features

icon Total Living Area

  • Main floor: 1822
  • Upper floor: 748
  • Porches: 222
  • Total Finished Sq. Ft.: 2570

icon Beds/Baths

  • Bedrooms: 6
  • Full Baths: 4

icon Garage

  • Garage: 752
  • Garage Stalls: 4

icon Levels

  • 2 stories

Dimension

  • Width: 63' 0"
  • Depth: 52' 0"
  • Height: 26' 8"

Roof slope

  • 9:12 (primary)

Walls (exterior)

  • 2"x4"

Ceiling heights

  • 8' (Main)
    8' (Upper)

Foundation Options

  • Basement $299
  • Daylight basement $399
  • Crawlspace Standard With Plan
  • Slab Standard With Plan

How Much Will It Cost To Build?

Wondering what it will actually cost to bring this home to life? Get an instant, customized estimate based on your chosen plan and location.

GET MY COST TO BUILD ESTIMATE

Modify This Plan

"Need Content here about modifying your plan"

Customize This Plan

House Plan Features

Zero lot-line
Main floor Master
Great room Open concept floor plan No formal living/dining
Covered front porch
U

Reviews

How Much Will It Cost To Build?

Wondering what it will actually cost to bring this home to life? Get an instant, customized estimate based on your chosen plan and location.

GET MY COST TO BUILD ESTIMATE

Modify This Plan

Need changes to the layout or features? Our team can modify any plan to match your vision.

Customize This Plan

House Plan Features

Zero lot-line
Main floor Master
Great room Open concept floor plan No formal living/dining
Covered front porch
U

Need Some Quick Tips Or Advice?

We want to help you design the house of your dreams as best as we can. If you can't find the answers you're looking for here, get in touch with our licensed architect or a designer!