Traditional House Plans - 4 Bed, 3 Bath, 2685 Sq Ft | Plan 7-750 | Monster House Plans

New plans now available on

dreambook-head-logo See all available plans
SHARE ON

All plans are copyrighted by the individual designer.

Photographs may reflect custom changes that were not included in the original design.

4 Bedroom, 3 Bath Traditional House Plan #7-750

Plan Purchase Options

Price: $0

Please uncheck first "Purchase MML without any plan package" under MONSTER MATERIAL LIST

Monster Material List
Optional Add-Ons
guaranted-label.png

Best Price Guarantee

*Payment Plans Now
Available Through

img See if you qualify

Floor Plans

What's included?
  • Main Floor

    Reverse

    Clicking the Reverse button does not mean you are ordering your plan reversed. It is for visualization purposes only. You may reverse the plan by ordering under “Optional Add-ons”.

    Main Floor Plan: 7-750
  • Upper/Second Floor

    Reverse

    Clicking the Reverse button does not mean you are ordering your plan reversed. It is for visualization purposes only. You may reverse the plan by ordering under “Optional Add-ons”.

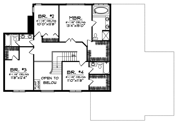
    Upper/Second Floor Plan: 7-750

Rear/Alternate Elevations

  • Rear Elevation

    Reverse

    Clicking the Reverse button does not mean you are ordering your plan reversed. It is for visualization purposes only. You may reverse the plan by ordering under “Optional Add-ons”.

    Rear Elevation Plan: 7-750

House Plan Highlights

A unique blend of stucco and stone make this home appealing to family and friends. The massive columns that grace the front of the porch lead you into a home that was carefully designed to maximize space. The kitchen features a walk-in pantry and an eat-in island and flows directly into the adjacent nook. And youll love the view of the back yard that the family offers with its large wall of windows. The downstairs is rounded out with a formal living room dining room and den. Upstairs you'll find a master suite with large walk-in closet and jacuzzi tub. Three additional bedrooms and a full bath complete the second level. The three-stall garage features an additional area that perfect for a golf cart or additional storage of any kind.

This floor plan is found in our Traditional house plans section

Full Specs and Features

icon Total Living Area

  • Main floor: 1426
  • Upper floor: 1259
  • Total Finished Sq. Ft.: 2685

icon Beds/Baths

  • Bedrooms: 4
  • Full Baths: 3
  • Half Baths: 1

icon Garage

  • Garage: 1112
  • Garage Stalls: 3

icon Levels

  • 2 stories

Dimension

  • Width: 70' 0"
  • Depth: 48' 0"
  • Height: 29' 0"

Roof slope

  • 9:12 (primary)
  • 7:12 (secondary)

Walls (exterior)

  • 2"x6"

Ceiling heights

  • 8' (Main)
    8' (Upper)

Foundation Options

  • Basement Standard With Plan
  • Crawlspace $415
  • Slab $415

How Much Will It Cost To Build?

Wondering what it will actually cost to bring this home to life? Get an instant, customized estimate based on your chosen plan and location.

GET MY COST TO BUILD ESTIMATE

Modify This Plan

"Need Content here about modifying your plan"

Customize This Plan

House Plan Features

Suited for a down-sloping lot Suited for a narrow lot
Family room Hobby / rec-room Open concept floor plan No formal living/dining
Covered front porch Screened porch/sunroom
Vaulted/Volume/Dramatic ceilings
Oversized garage (3+)

Reviews

How Much Will It Cost To Build?

Wondering what it will actually cost to bring this home to life? Get an instant, customized estimate based on your chosen plan and location.

GET MY COST TO BUILD ESTIMATE

Modify This Plan

Need changes to the layout or features? Our team can modify any plan to match your vision.

Customize This Plan

House Plan Features

Suited for a down-sloping lot Suited for a narrow lot
Family room Hobby / rec-room Open concept floor plan No formal living/dining
Covered front porch Screened porch/sunroom
Vaulted/Volume/Dramatic ceilings
Oversized garage (3+)

Need Some Quick Tips Or Advice?

We want to help you design the house of your dreams as best as we can. If you can't find the answers you're looking for here, get in touch with our licensed architect or a designer!