Traditional House Plans - 5 Bed, 3 Bath, 2690 Sq Ft | Plan 7-707 | Monster House Plans

New plans now available on

dreambook-head-logo See all available plans
SHARE ON

All plans are copyrighted by the individual designer.

Photographs may reflect custom changes that were not included in the original design.

5 Bedroom, 3 Bath Traditional House Plan #7-707

Plan Purchase Options

Price: $0

Please uncheck first "Purchase MML without any plan package" under MONSTER MATERIAL LIST

Monster Material List
Optional Add-Ons
guaranted-label.png

Best Price Guarantee

*Payment Plans Now
Available Through

img See if you qualify

Floor Plans

What's included?
  • Main Floor

    Reverse

    Clicking the Reverse button does not mean you are ordering your plan reversed. It is for visualization purposes only. You may reverse the plan by ordering under “Optional Add-ons”.

    Main Floor Plan: 7-707
  • Lower Floor

    Reverse

    Clicking the Reverse button does not mean you are ordering your plan reversed. It is for visualization purposes only. You may reverse the plan by ordering under “Optional Add-ons”.

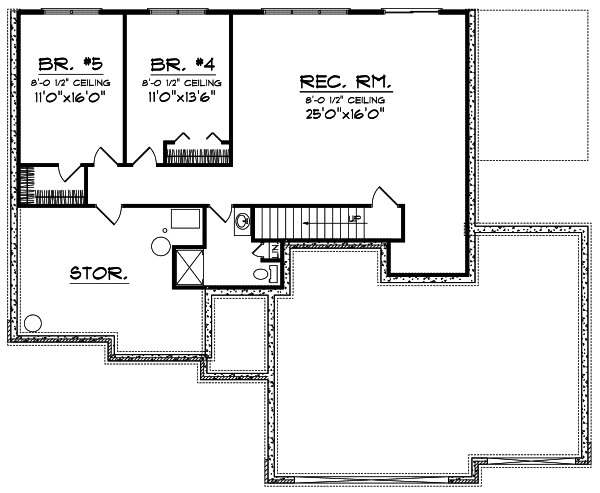
    Lower Floor Plan: 7-707

Rear/Alternate Elevations

  • Rear Elevation

    Reverse

    Clicking the Reverse button does not mean you are ordering your plan reversed. It is for visualization purposes only. You may reverse the plan by ordering under “Optional Add-ons”.

    Rear Elevation Plan: 7-707

House Plan Highlights

This traditional ranch home features a blend of brick and siding that is attractive yet affordable for today's homeowner. Upon entering the home you'll be impressed with the large living room its vaulted ceiling and the corner fireplace. The plan opens up to the dining room and kitchen to the right with the bedroom areas off to the left. In the kitchen youll enjoy a breakfast bar that flows into the dining room making entertaining easy for any size group. The master bedroom ceiling is unique with its tray ceiling and youll love the spacious bathroom and walk-in closet. Two additional bedrooms can be found on the main floor along with a full bath. Downstairs you love the large recreation room two more bedrooms and another full bath making this a five bedroom home.

This floor plan is found in our Traditional house plans section

Full Specs and Features

icon Total Living Area

  • Main floor: 1552
  • Lower Floor: 1138
  • Total Finished Sq. Ft.: 2690

icon Beds/Baths

  • Bedrooms: 5
  • Full Baths: 3

icon Garage

  • Garage: 700
  • Garage Stalls: 3

icon Levels

  • 1 story

Dimension

  • Width: 61' 4"
  • Depth: 50' 0"
  • Height: 21' 2"

Roof slope

  • 7:12 (primary)
  • 6:12 (secondary)

Walls (exterior)

  • 2"x6"

Ceiling heights

  • 8' (Main)

Foundation Options

  • Daylight basement Standard With Plan
  • Crawlspace $415
  • Slab $415

How Much Will It Cost To Build?

Wondering what it will actually cost to bring this home to life? Get an instant, customized estimate based on your chosen plan and location.

GET MY COST TO BUILD ESTIMATE

Modify This Plan

"Need Content here about modifying your plan"

Customize This Plan

House Plan Features

Suited for a back view Suited for a narrow lot
Family room Hobby / rec-room Open concept floor plan No formal living/dining
Screened porch/sunroom
Vaulted/Volume/Dramatic ceilings
Oversized garage (3+)

Reviews

How Much Will It Cost To Build?

Wondering what it will actually cost to bring this home to life? Get an instant, customized estimate based on your chosen plan and location.

GET MY COST TO BUILD ESTIMATE

Modify This Plan

Need changes to the layout or features? Our team can modify any plan to match your vision.

Customize This Plan

House Plan Features

Suited for a back view Suited for a narrow lot
Family room Hobby / rec-room Open concept floor plan No formal living/dining
Screened porch/sunroom
Vaulted/Volume/Dramatic ceilings
Oversized garage (3+)

Need Some Quick Tips Or Advice?

We want to help you design the house of your dreams as best as we can. If you can't find the answers you're looking for here, get in touch with our licensed architect or a designer!