Traditional House Plans - 4 Bed, 4 Bath, 2698 Sq Ft | Plan 4-214 | Monster House Plans

New plans now available on

dreambook-head-logo See all available plans
SHARE ON

All plans are copyrighted by the individual designer.

Photographs may reflect custom changes that were not included in the original design.

4 Bedroom, 4 Bath Traditional House Plan #4-214

Plan Purchase Options

Price: $0

Please uncheck first "Purchase MML without any plan package" under MONSTER MATERIAL LIST

Optional Add-Ons
guaranted-label.png

Best Price Guarantee

*Payment Plans Now
Available Through

img See if you qualify

Floor Plans

What's included?
  • Main Floor

    Reverse

    Clicking the Reverse button does not mean you are ordering your plan reversed. It is for visualization purposes only. You may reverse the plan by ordering under “Optional Add-ons”.

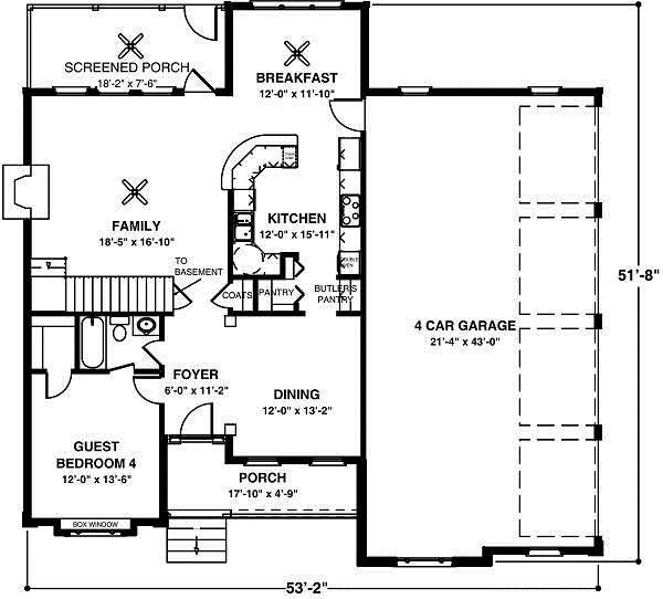
    Main Floor Plan: 4-214
  • Upper/Second Floor

    Reverse

    Clicking the Reverse button does not mean you are ordering your plan reversed. It is for visualization purposes only. You may reverse the plan by ordering under “Optional Add-ons”.

    Upper/Second Floor Plan: 4-214

Rear/Alternate Elevations

  • Rear Elevation

    Reverse

    Clicking the Reverse button does not mean you are ordering your plan reversed. It is for visualization purposes only. You may reverse the plan by ordering under “Optional Add-ons”.

    Rear Elevation Plan: 4-214

House Plan Highlights

Invited by the quaint front porch, you will enter to enjoy this spacious and well designed two story home with 4 bedrooms and 4 baths. This affordable 2698 square foot home offers an extraordinary abundance of features. Venture inside through the spacious foyer to discover direct access to an elegant dining area and a comfortable guest suite. Beyond the stairs, you will find a grand two story family room which opens to the kitchen and breakfast area. We think you will be pleased with the enormous 4 car garage providing plentiful space for todayпїЅs пїЅmobileпїЅ family. In the 2 bedrooms upstairs, you will find private baths and abundant closet space. The Library features a morning kitchen and built in bookshelves. Once you enter the grand master suite, you will enjoy such features as a vaulted ceiling and a his and hers walk-in closet with an expansion area available to virtually triple its size. The his and hers baths feature a vaulted ceiling with a radiused window above to provide plenty of light. Lower level ceiling heights are 9пїЅ, except for the family room which is 18пїЅ. The upper level ceilings are 8пїЅ high except for the vaulted master areas.

This floor plan is found in our Traditional house plans section

Full Specs and Features

icon Total Living Area

  • Main floor: 1244
  • Upper floor: 1454
  • Total Finished Sq. Ft.: 2698

icon Beds/Baths

  • Bedrooms: 4
  • Full Baths: 4

icon Garage

  • Garage Stalls: 4

icon Levels

  • 2 stories

Dimension

  • Width: 53' 2"
  • Depth: 51' 8"
  • Height: 31' 0"

Roof slope

  • 8:12 (primary)
  • 10:12 (secondary)

Walls (exterior)

  • 2"x4"

Ceiling heights

  • 9' (Main)
    8' (Upper)

Foundation Options

  • Basement Standard With Plan
  • Crawlspace $350
  • Slab $350

How Much Will It Cost To Build?

Wondering what it will actually cost to bring this home to life? Get an instant, customized estimate based on your chosen plan and location.

GET MY COST TO BUILD ESTIMATE

Modify This Plan

"Need Content here about modifying your plan"

Customize This Plan

House Plan Features

Suited for a back view Suited for a side-sloping lot
Upstairs Master Guest suite Teen suite/Jack & Jill bath
Walk-in pantry Eating bar Nook / breakfast
Family room Upstairs laundry Loft / balcony Library Formal dining room
Covered front porch Covered rear porch Screened porch/sunroom
Vaulted/Volume/Dramatic ceilings 3D Model Available
Oversized garage (3+) Side-entry garage

Reviews

How Much Will It Cost To Build?

Wondering what it will actually cost to bring this home to life? Get an instant, customized estimate based on your chosen plan and location.

GET MY COST TO BUILD ESTIMATE

Modify This Plan

Need changes to the layout or features? Our team can modify any plan to match your vision.

Customize This Plan

House Plan Features

Suited for a back view Suited for a side-sloping lot
Upstairs Master Guest suite Teen suite/Jack & Jill bath
Walk-in pantry Eating bar Nook / breakfast
Family room Upstairs laundry Loft / balcony Library Formal dining room
Covered front porch Covered rear porch Screened porch/sunroom
Vaulted/Volume/Dramatic ceilings 3D Model Available
Oversized garage (3+) Side-entry garage

Need Some Quick Tips Or Advice?

We want to help you design the house of your dreams as best as we can. If you can't find the answers you're looking for here, get in touch with our licensed architect or a designer!