Traditional House Plans - 4 Bed, 2 Bath, 2772 Sq Ft | Plan 7-165 | Monster House Plans

New plans now available on

dreambook-head-logo See all available plans
SHARE ON

All plans are copyrighted by the individual designer.

Photographs may reflect custom changes that were not included in the original design.

4 Bedroom, 2 Bath Traditional House Plan #7-165

Plan Purchase Options

Price: $0

Please uncheck first "Purchase MML without any plan package" under MONSTER MATERIAL LIST

Monster Material List
Optional Add-Ons
guaranted-label.png

Best Price Guarantee

*Payment Plans Now
Available Through

img See if you qualify

Floor Plans

What's included?
  • Main Floor

    Reverse

    Clicking the Reverse button does not mean you are ordering your plan reversed. It is for visualization purposes only. You may reverse the plan by ordering under “Optional Add-ons”.

    Main Floor Plan: 7-165
  • Upper/Second Floor

    Reverse

    Clicking the Reverse button does not mean you are ordering your plan reversed. It is for visualization purposes only. You may reverse the plan by ordering under “Optional Add-ons”.

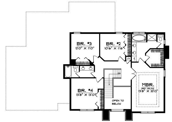
    Upper/Second Floor Plan: 7-165

Rear/Alternate Elevations

  • Rear Elevation

    Reverse

    Clicking the Reverse button does not mean you are ordering your plan reversed. It is for visualization purposes only. You may reverse the plan by ordering under “Optional Add-ons”.

    Rear Elevation Plan: 7-165

House Plan Highlights

This amazing two-story traditional home is ideal for a growing family. This home features a two-story foyer that provides access to formal living and dining rooms great for entertaining. When planning a meal in the large airy kitchen which features an island and a pantry you can converse with your family or friends relaxing in the sunroom or family room. The family room offers a cozy fireplace and the sunroom with its cathedral ceilings and access to the large screened porch adds charm to this lovely home. This home also offers three bedrooms and a master suite on the second floor. The master suite features tray ceilings and a huge master bath with a whirlpool tub and roomy walk-in closet. The other three bedrooms share a full bathroom. Other amenities in this home include a two-stall garage a laundry room with a closet and a main floor powder room.

This floor plan is found in our Traditional house plans section

Full Specs and Features

icon Total Living Area

  • Main floor: 1560
  • Upper floor: 1212
  • Total Finished Sq. Ft.: 2772

icon Beds/Baths

  • Bedrooms: 4
  • Full Baths: 2
  • Half Baths: 1

icon Garage

  • Garage: 689
  • Garage Stalls: 2

icon Levels

  • 2 stories

Dimension

  • Width: 68' 8"
  • Depth: 50' 0"
  • Height: 30' 8"

Roof slope

  • 10:12 (primary)

Walls (exterior)

  • 2"x6"

Ceiling heights

  • 9' (Main)
    8' (Upper)

Foundation Options

  • Basement Standard With Plan
  • Crawlspace $415
  • Slab $415

How Much Will It Cost To Build?

Wondering what it will actually cost to bring this home to life? Get an instant, customized estimate based on your chosen plan and location.

GET MY COST TO BUILD ESTIMATE

Modify This Plan

"Need Content here about modifying your plan"

Customize This Plan

House Plan Features

Suited for corner lots Suited for a back view
Split bedrooms Teen suite/Jack & Jill bath
Island Butler's pantry Eating bar Nook / breakfast
Great room Formal dining room Den / office / computer
Covered rear porch
Vaulted/Volume/Dramatic ceilings 3D Model Available
Oversized garage (3+) Side-entry garage

Reviews

How Much Will It Cost To Build?

Wondering what it will actually cost to bring this home to life? Get an instant, customized estimate based on your chosen plan and location.

GET MY COST TO BUILD ESTIMATE

Modify This Plan

Need changes to the layout or features? Our team can modify any plan to match your vision.

Customize This Plan

House Plan Features

Suited for corner lots Suited for a back view
Split bedrooms Teen suite/Jack & Jill bath
Island Butler's pantry Eating bar Nook / breakfast
Great room Formal dining room Den / office / computer
Covered rear porch
Vaulted/Volume/Dramatic ceilings 3D Model Available
Oversized garage (3+) Side-entry garage

Need Some Quick Tips Or Advice?

We want to help you design the house of your dreams as best as we can. If you can't find the answers you're looking for here, get in touch with our licensed architect or a designer!