Traditional House Plans - 3 Bed, 2 Bath, 2787 Sq Ft | Plan 7-426 | Monster House Plans

New plans now available on

dreambook-head-logo See all available plans
SHARE ON

All plans are copyrighted by the individual designer.

Photographs may reflect custom changes that were not included in the original design.

3 Bedroom, 2 Bath Traditional House Plan #7-426

Plan Purchase Options

Price: $0

Please uncheck first "Purchase MML without any plan package" under MONSTER MATERIAL LIST

Monster Material List
Optional Add-Ons
guaranted-label.png

Best Price Guarantee

*Payment Plans Now
Available Through

img See if you qualify

Floor Plans

What's included?
  • Main Floor

    Reverse

    Clicking the Reverse button does not mean you are ordering your plan reversed. It is for visualization purposes only. You may reverse the plan by ordering under “Optional Add-ons”.

    Main Floor Plan: 7-426
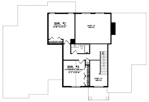
  • Upper/Second Floor

    Reverse

    Clicking the Reverse button does not mean you are ordering your plan reversed. It is for visualization purposes only. You may reverse the plan by ordering under “Optional Add-ons”.

    Upper/Second Floor Plan: 7-426

Rear/Alternate Elevations

  • Rear Elevation

    Reverse

    Clicking the Reverse button does not mean you are ordering your plan reversed. It is for visualization purposes only. You may reverse the plan by ordering under “Optional Add-ons”.

    Rear Elevation Plan: 7-426

House Plan Highlights

Everything about this two-story home will surpass your expectations. The entry features a graceful vaulted ceiling and leads to the family room which offers a fireplace surrounded by built-in cabinets and two-story windows that overlook the back yard. For entertaining look no farther than the formal living and dining rooms. The kitchen will impress you with its efficient design island large pantry and attached nook that leads to a three-season porch and a deck. The unique tray ceiling in the master bedroom is only the start it also features an extra-large walk-in closet and a private bath. Upstairs two additional bedrooms share a full bath. This plan also provides a laundry room half bath lots of closet space and a three-car garage with a built-in workbench.

This floor plan is found in our Traditional house plans section

Full Specs and Features

icon Total Living Area

  • Main floor: 2125
  • Upper floor: 662
  • Total Finished Sq. Ft.: 2787

icon Beds/Baths

  • Bedrooms: 3
  • Full Baths: 2
  • Half Baths: 1

icon Garage

  • Garage: 816
  • Garage Stalls: 3

icon Levels

  • 2 stories

Dimension

  • Width: 77' 0"
  • Depth: 52' 0"
  • Height: 28' 1"

Roof slope

  • 8:12 (primary)
  • 5:12 (secondary)

Walls (exterior)

  • 2"x6"

Ceiling heights

  • 9' (Main)
    8' (Upper)

Foundation Options

  • Basement Standard With Plan
  • Crawlspace $415
  • Slab $415

How Much Will It Cost To Build?

Wondering what it will actually cost to bring this home to life? Get an instant, customized estimate based on your chosen plan and location.

GET MY COST TO BUILD ESTIMATE

Modify This Plan

"Need Content here about modifying your plan"

Customize This Plan

House Plan Features

Suited for a back view Suited for a down-sloping lot Suited for a narrow lot
Split bedrooms
Island Eating bar
Hobby / rec-room Open concept floor plan No formal living/dining Den / office / computer
Screened porch/sunroom
Vaulted/Volume/Dramatic ceilings
Oversized garage (3+)

Reviews

How Much Will It Cost To Build?

Wondering what it will actually cost to bring this home to life? Get an instant, customized estimate based on your chosen plan and location.

GET MY COST TO BUILD ESTIMATE

Modify This Plan

Need changes to the layout or features? Our team can modify any plan to match your vision.

Customize This Plan

House Plan Features

Suited for a back view Suited for a down-sloping lot Suited for a narrow lot
Split bedrooms
Island Eating bar
Hobby / rec-room Open concept floor plan No formal living/dining Den / office / computer
Screened porch/sunroom
Vaulted/Volume/Dramatic ceilings
Oversized garage (3+)

Need Some Quick Tips Or Advice?

We want to help you design the house of your dreams as best as we can. If you can't find the answers you're looking for here, get in touch with our licensed architect or a designer!