Traditional House Plans - 4 Bed, 2 Bath, 2855 Sq Ft | Plan 7-972 | Monster House Plans

New plans now available on

dreambook-head-logo See all available plans
SHARE ON

All plans are copyrighted by the individual designer.

Photographs may reflect custom changes that were not included in the original design.

Design Comments

Great Room & Entry ceilings - 2 Story, Master Bedroom 13' Step. Dining/Den 12'.

4 Bedroom, 2 Bath Traditional House Plan #7-972

Plan Purchase Options

Price: $0

Please uncheck first "Purchase MML without any plan package" under MONSTER MATERIAL LIST

Monster Material List
Optional Add-Ons
guaranted-label.png

Best Price Guarantee

*Payment Plans Now
Available Through

img See if you qualify

Floor Plans

What's included?
  • Main Floor

    Reverse

    Clicking the Reverse button does not mean you are ordering your plan reversed. It is for visualization purposes only. You may reverse the plan by ordering under “Optional Add-ons”.

    Main Floor Plan: 7-972
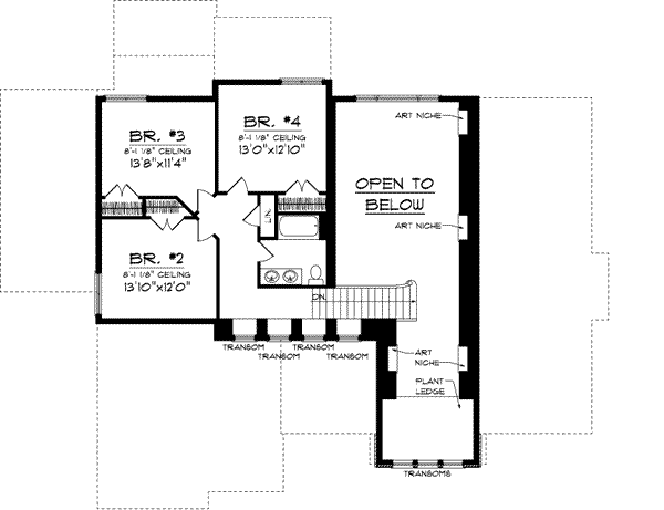
  • Upper/Second Floor

    Reverse

    Clicking the Reverse button does not mean you are ordering your plan reversed. It is for visualization purposes only. You may reverse the plan by ordering under “Optional Add-ons”.

    Upper/Second Floor Plan: 7-972

Rear/Alternate Elevations

  • Rear Elevation

    Reverse

    Clicking the Reverse button does not mean you are ordering your plan reversed. It is for visualization purposes only. You may reverse the plan by ordering under “Optional Add-ons”.

    Rear Elevation Plan: 7-972

House Plan Highlights

A tiled roof stucco siding and stone accents give this two-story home a modern flair with a country twist. A two-story entry welcomes you and draws you directly ahead into the large great room where the two-story ceiling continues. Here a fireplace flanked by built-in cabinets and a wall of window add extra volume to the main living space. The well-appointed kitchen features a working island that overlooks the great room and defines the adjacent nook. The pampering master suite is located on the main level and includes a spacious walk-in closet private bath with whirlpool tub and a step ceiling. Three bedrooms and a full bath a view of the great room below are located upstairs where transom windows illuminate the floor. A three-stall split-load garage completes the home.

This floor plan is found in our Traditional house plans section

Full Specs and Features

icon Total Living Area

  • Main floor: 2084
  • Upper floor: 771
  • Total Finished Sq. Ft.: 2855

icon Beds/Baths

  • Bedrooms: 4
  • Full Baths: 2
  • Half Baths: 1

icon Garage

  • Garage: 965
  • Garage Stalls: 3

icon Levels

  • 2 stories

Dimension

  • Width: 73' 0"
  • Depth: 59' 0"
  • Height: 28' 11"

Roof slope

  • 6:12 (primary)
  • 3:12 (secondary)

Walls (exterior)

  • 2"x6"

Ceiling heights

  • 8' (Upper)

Foundation Options

  • Basement Standard With Plan
  • Crawlspace $415
  • Slab $415

How Much Will It Cost To Build?

Wondering what it will actually cost to bring this home to life? Get an instant, customized estimate based on your chosen plan and location.

GET MY COST TO BUILD ESTIMATE

Modify This Plan

"Need Content here about modifying your plan"

Customize This Plan

House Plan Features

Suited for corner lots Suited for a back view
Split bedrooms Teen suite/Jack & Jill bath
Island Butler's pantry Eating bar Nook / breakfast
Great room Open concept floor plan Formal dining room Den / office / computer
Vaulted/Volume/Dramatic ceilings
Oversized garage (3+) Side-entry garage

Reviews

How Much Will It Cost To Build?

Wondering what it will actually cost to bring this home to life? Get an instant, customized estimate based on your chosen plan and location.

GET MY COST TO BUILD ESTIMATE

Modify This Plan

Need changes to the layout or features? Our team can modify any plan to match your vision.

Customize This Plan

House Plan Features

Suited for corner lots Suited for a back view
Split bedrooms Teen suite/Jack & Jill bath
Island Butler's pantry Eating bar Nook / breakfast
Great room Open concept floor plan Formal dining room Den / office / computer
Vaulted/Volume/Dramatic ceilings
Oversized garage (3+) Side-entry garage

Need Some Quick Tips Or Advice?

We want to help you design the house of your dreams as best as we can. If you can't find the answers you're looking for here, get in touch with our licensed architect or a designer!