Traditional House Plans - 4 Bed, 3 Bath, 3025 Sq Ft | Plan 7-606 | Monster House Plans

New plans now available on

dreambook-head-logo See all available plans
SHARE ON

All plans are copyrighted by the individual designer.

Photographs may reflect custom changes that were not included in the original design.

4 Bedroom, 3 Bath Traditional House Plan #7-606

Plan Purchase Options

Price: $0

Please uncheck first "Purchase MML without any plan package" under MONSTER MATERIAL LIST

Monster Material List
Optional Add-Ons
guaranted-label.png

Best Price Guarantee

*Payment Plans Now
Available Through

img See if you qualify

Floor Plans

What's included?
  • Main Floor

    Reverse

    Clicking the Reverse button does not mean you are ordering your plan reversed. It is for visualization purposes only. You may reverse the plan by ordering under “Optional Add-ons”.

    Main Floor Plan: 7-606
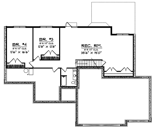
  • Lower Floor

    Reverse

    Clicking the Reverse button does not mean you are ordering your plan reversed. It is for visualization purposes only. You may reverse the plan by ordering under “Optional Add-ons”.

    Lower Floor Plan: 7-606

Rear/Alternate Elevations

  • Rear Elevation

    Reverse

    Clicking the Reverse button does not mean you are ordering your plan reversed. It is for visualization purposes only. You may reverse the plan by ordering under “Optional Add-ons”.

    Rear Elevation Plan: 7-606

House Plan Highlights

A classic blend of brick and stucco make this traditional ranch a welcome addition to just about any neighborhood. Extra amenities such as tray and cathedral ceilings and art niches add to this homes charm. The kitchen features an eat-in island and flows easily into the nook and great room to create a living area that spacious yet comfortable. The master suite is sure to please with tray ceilings in the bedroom a spacious walk-in closet and a Jacuzzi tub in the bathroom. The second bedroom can double for a den and is located just off the entry to your left as you enter. Downstairs youll find two additional bedrooms a full bath and an oversized recreation room. A three-stall garage with plenty of storage makes this ranch home attractive to a wide audience.

This floor plan is found in our Traditional house plans section

Full Specs and Features

icon Total Living Area

  • Main floor: 1723
  • Lower Floor: 1302
  • Total Finished Sq. Ft.: 3025

icon Beds/Baths

  • Bedrooms: 4
  • Full Baths: 3

icon Garage

  • Garage: 868
  • Garage Stalls: 2

icon Levels

  • 1 story

Dimension

  • Width: 71' 0"
  • Depth: 50' 0"
  • Height: 24' 11"

Roof slope

  • 10:12 (primary)
  • 8:12 (secondary)

Walls (exterior)

  • 2"x6"

Ceiling heights

  • 8' (Main)

Foundation Options

  • Basement Standard With Plan
  • Crawlspace $415
  • Slab $415

How Much Will It Cost To Build?

Wondering what it will actually cost to bring this home to life? Get an instant, customized estimate based on your chosen plan and location.

GET MY COST TO BUILD ESTIMATE

Modify This Plan

"Need Content here about modifying your plan"

Customize This Plan

House Plan Features

Suited for a back view
Upstairs Master
Island Eating bar Nook / breakfast
Main Floor laundry Open concept floor plan Formal dining room Formal living room
Screened porch/sunroom
Workshop

Reviews

How Much Will It Cost To Build?

Wondering what it will actually cost to bring this home to life? Get an instant, customized estimate based on your chosen plan and location.

GET MY COST TO BUILD ESTIMATE

Modify This Plan

Need changes to the layout or features? Our team can modify any plan to match your vision.

Customize This Plan

House Plan Features

Suited for a back view
Upstairs Master
Island Eating bar Nook / breakfast
Main Floor laundry Open concept floor plan Formal dining room Formal living room
Screened porch/sunroom
Workshop

Need Some Quick Tips Or Advice?

We want to help you design the house of your dreams as best as we can. If you can't find the answers you're looking for here, get in touch with our licensed architect or a designer!