Traditional House Plans - 4 Bed, 3 Bath, 3052 Sq Ft | Plan 12-1045 | Monster House Plans

New plans now available on

dreambook-head-logo See all available plans
SHARE ON

All plans are copyrighted by the individual designer.

Photographs may reflect custom changes that were not included in the original design.

4 Bedroom, 3 Bath Traditional House Plan #12-1045

Plan Purchase Options

Price: $0

Please uncheck first "Purchase MML without any plan package" under MONSTER MATERIAL LIST

Monster Material List
Optional Add-Ons
guaranted-label.png

Best Price Guarantee

*Payment Plans Now
Available Through

img See if you qualify

Floor Plans

What's included?
  • Main Floor

    Reverse

    Clicking the Reverse button does not mean you are ordering your plan reversed. It is for visualization purposes only. You may reverse the plan by ordering under “Optional Add-ons”.

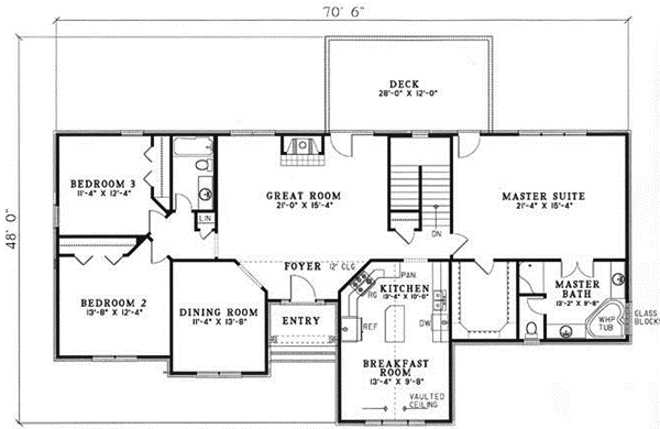
    Main Floor Plan: 12-1045
  • Lower Floor

    Reverse

    Clicking the Reverse button does not mean you are ordering your plan reversed. It is for visualization purposes only. You may reverse the plan by ordering under “Optional Add-ons”.

    Lower Floor Plan: 12-1045

House Plan Highlights

The Brick arched entry of this French Traditional home presents an air of grandeur. As you enter the Foyer with its twelve-foot ceilings, true ambiance engulfs you. The Great Room offers a Grand fireplace for gathering around glowing embers and atrium doors that guests may pass through to the rear deck. The Kitchen and Breakfast Rooms with vaulted ceilings exemplify this stately gesture. The Master Suite offers an expansive walk-in closet and access to rear deck. Enter the Master Bath via french doors, step into the whirlpool tub accented with glass blocks as the steam envelopes you. As you travel to the lower floor you will find a Game Room with a cozy fireplace for entertaining options and an additional bedroom with full bath for your overnight guests.

This floor plan is found in our Traditional house plans section

Full Specs and Features

icon Total Living Area

  • Main floor: 2005
  • Basement: 1047
  • Total Finished Sq. Ft.: 3052

icon Beds/Baths

  • Bedrooms: 4
  • Full Baths: 3

icon Garage

  • Garage Stalls: 2

icon Levels

  • 2 stories

Dimension

  • Width: 70' 7"
  • Depth: 48' 0"
  • Height: 19' 0"

Walls (exterior)

  • 2"x4"

Foundation Options

  • Basement $299
  • Daylight basement $399
  • Crawlspace Standard With Plan
  • Slab Standard With Plan

How Much Will It Cost To Build?

Wondering what it will actually cost to bring this home to life? Get an instant, customized estimate based on your chosen plan and location.

GET MY COST TO BUILD ESTIMATE

Modify This Plan

"Need Content here about modifying your plan"

Customize This Plan

House Plan Features

Suited for corner lots Suited for a back view Suited for a down-sloping lot
Split bedrooms
Island Eating bar Nook / breakfast
Hobby / rec-room Great room Formal dining room
Vaulted/Volume/Dramatic ceilings Photos Available
Side-entry garage Garage under

Reviews

How Much Will It Cost To Build?

Wondering what it will actually cost to bring this home to life? Get an instant, customized estimate based on your chosen plan and location.

GET MY COST TO BUILD ESTIMATE

Modify This Plan

Need changes to the layout or features? Our team can modify any plan to match your vision.

Customize This Plan

House Plan Features

Suited for corner lots Suited for a back view Suited for a down-sloping lot
Split bedrooms
Island Eating bar Nook / breakfast
Hobby / rec-room Great room Formal dining room
Vaulted/Volume/Dramatic ceilings Photos Available
Side-entry garage Garage under

Need Some Quick Tips Or Advice?

We want to help you design the house of your dreams as best as we can. If you can't find the answers you're looking for here, get in touch with our licensed architect or a designer!