Traditional House Plans - 6 Bed, 4 Bath, 3056 Sq Ft | Plan 77-315 | Monster House Plans

New plans now available on

dreambook-head-logo See all available plans
SHARE ON

All plans are copyrighted by the individual designer.

Photographs may reflect custom changes that were not included in the original design.

6 Bedroom, 4 Bath Traditional House Plan #77-315

Plan Purchase Options

Price: $0

Please uncheck first "Purchase MML without any plan package" under MONSTER MATERIAL LIST

Monster Material List
Optional Add-Ons
guaranted-label.png

Best Price Guarantee

*Payment Plans Now
Available Through

img See if you qualify

Floor Plans

What's included?
  • Main Floor

    Reverse

    Clicking the Reverse button does not mean you are ordering your plan reversed. It is for visualization purposes only. You may reverse the plan by ordering under “Optional Add-ons”.

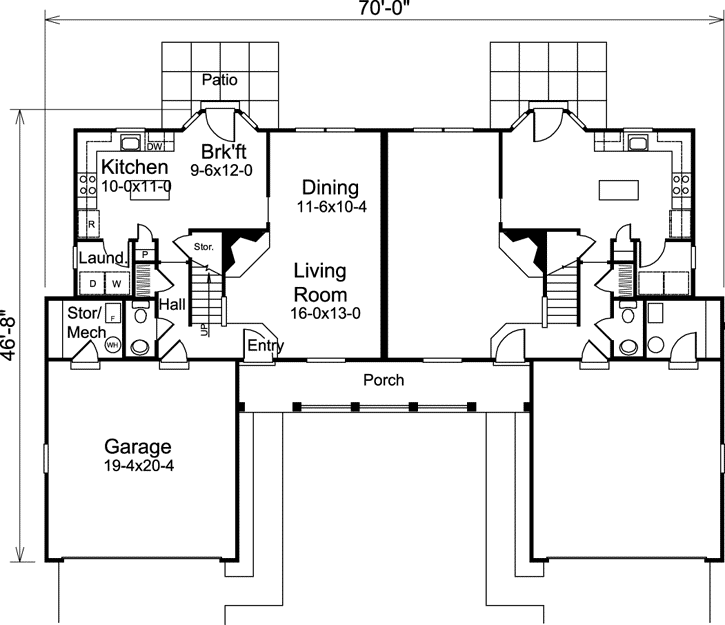
    Main Floor Plan: 77-315
  • Upper/Second Floor

    Reverse

    Clicking the Reverse button does not mean you are ordering your plan reversed. It is for visualization purposes only. You may reverse the plan by ordering under “Optional Add-ons”.

    Upper/Second Floor Plan: 77-315

Rear/Alternate Elevations

  • Rear Elevation

    Reverse

    Clicking the Reverse button does not mean you are ordering your plan reversed. It is for visualization purposes only. You may reverse the plan by ordering under “Optional Add-ons”.

    Rear Elevation Plan: 77-315

House Plan Highlights

Traditional Two-Story Duplex3056 total square feet of living areaSpecial featuresThe gorgeous exterior of this home is comprised of multiple gables a hipped roof and an elongated porch A corner fireplace warms the spacious living room that is open to a sizable dining areaThe efficient kitchen boasts a built-in pantry island cabinetry and is just steps away from the convenient laundry roomEach unit has 3 bedrooms 2 12 baths 2-car garageCrawl space foundationDuplex has 749 square feet per unit on the first floor and 779 square feet per unit on the second floor with 1528 square feet of living space per unit1498 square feet on the first floor and 1558 square feet on the second floor

This floor plan is found in our Traditional house plans section

Full Specs and Features

icon Total Living Area

  • Main floor: 1498
  • Upper floor: 1558
  • Porches: 150
  • Total Finished Sq. Ft.: 3056

icon Beds/Baths

  • Bedrooms: 6
  • Full Baths: 4
  • Half Baths: 2

icon Garage

  • Garage: 828
  • Garage Stalls: 4

icon Levels

  • 2 stories

Dimension

  • Width: 70' 0"
  • Depth: 46' 8"
  • Height: 26' 2"

Roof slope

  • 8:12 (primary)

Walls (exterior)

  • 2"x4"

Ceiling heights

  • 8' (Main)
    8' (Upper)

Foundation Options

  • Crawlspace Standard With Plan

How Much Will It Cost To Build?

Wondering what it will actually cost to bring this home to life? Get an instant, customized estimate based on your chosen plan and location.

GET MY COST TO BUILD ESTIMATE

Modify This Plan

"Need Content here about modifying your plan"

Customize This Plan

House Plan Features

Zero lot-line
Upstairs Master
Island Nook / breakfast
Main Floor laundry
Covered front porch

Reviews

How Much Will It Cost To Build?

Wondering what it will actually cost to bring this home to life? Get an instant, customized estimate based on your chosen plan and location.

GET MY COST TO BUILD ESTIMATE

Modify This Plan

Need changes to the layout or features? Our team can modify any plan to match your vision.

Customize This Plan

House Plan Features

Zero lot-line
Upstairs Master
Island Nook / breakfast
Main Floor laundry
Covered front porch

Need Some Quick Tips Or Advice?

We want to help you design the house of your dreams as best as we can. If you can't find the answers you're looking for here, get in touch with our licensed architect or a designer!