Traditional House Plans - 4 Bed, 2 Bath, 3078 Sq Ft | Plan 7-112 | Monster House Plans

New plans now available on

dreambook-head-logo See all available plans
SHARE ON

All plans are copyrighted by the individual designer.

Photographs may reflect custom changes that were not included in the original design.

4 Bedroom, 2 Bath Traditional House Plan #7-112

Plan Purchase Options

Price: $0

Please uncheck first "Purchase MML without any plan package" under MONSTER MATERIAL LIST

Monster Material List
Optional Add-Ons
guaranted-label.png

Best Price Guarantee

*Payment Plans Now
Available Through

img See if you qualify

Floor Plans

What's included?
  • Main Floor

    Reverse

    Clicking the Reverse button does not mean you are ordering your plan reversed. It is for visualization purposes only. You may reverse the plan by ordering under “Optional Add-ons”.

    Main Floor Plan: 7-112
  • Upper/Second Floor

    Reverse

    Clicking the Reverse button does not mean you are ordering your plan reversed. It is for visualization purposes only. You may reverse the plan by ordering under “Optional Add-ons”.

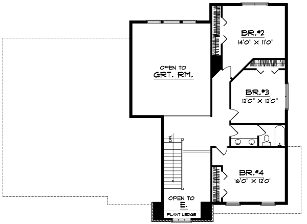
    Upper/Second Floor Plan: 7-112

Rear/Alternate Elevations

  • Rear Elevation

    Reverse

    Clicking the Reverse button does not mean you are ordering your plan reversed. It is for visualization purposes only. You may reverse the plan by ordering under “Optional Add-ons”.

    Rear Elevation Plan: 7-112

House Plan Highlights

This beautiful two-story home has a delightful combination of brick stone and siding facade. The kitchen has an island great for eating a quick meal on and opens into a spacious nook. The great room is large with two-story ceiling and huge windows that allow an abundance of light in. To the right of the great room is the sunroom or den a great atmosphere for relaxing or for after hour work. The master bedroom is located on the main floor and offers a walk in closet with full bathroom. When walking up stairs you will be taken back by the breathtaking view of the great room and the entrance below. While touring upstairs you will enjoy three sizable bedrooms and a full bathroom great for the children or overnight guests.

This floor plan is found in our Traditional house plans section

Full Specs and Features

icon Total Living Area

  • Main floor: 2226
  • Upper floor: 852
  • Total Finished Sq. Ft.: 3078

icon Beds/Baths

  • Bedrooms: 4
  • Full Baths: 2
  • Half Baths: 1

icon Garage

  • Garage: 504
  • Garage Stalls: 2

icon Levels

  • 2 stories

Dimension

  • Width: 68' 0"
  • Depth: 49' 8"
  • Height: 29' 7"

Roof slope

  • 5:12 (primary)
  • 10:12 (secondary)

Walls (exterior)

  • 2"x6"

Ceiling heights

  • 9' (Main)
    9' (Upper)

Foundation Options

  • Basement Standard With Plan
  • Crawlspace $415
  • Slab $415

How Much Will It Cost To Build?

Wondering what it will actually cost to bring this home to life? Get an instant, customized estimate based on your chosen plan and location.

GET MY COST TO BUILD ESTIMATE

Modify This Plan

"Need Content here about modifying your plan"

Customize This Plan

House Plan Features

Suited for a narrow lot Zero lot-line
Upstairs Master
Island Walk-in pantry Eating bar
Great room Main Floor laundry Open concept floor plan No formal living/dining

Reviews

How Much Will It Cost To Build?

Wondering what it will actually cost to bring this home to life? Get an instant, customized estimate based on your chosen plan and location.

GET MY COST TO BUILD ESTIMATE

Modify This Plan

Need changes to the layout or features? Our team can modify any plan to match your vision.

Customize This Plan

House Plan Features

Suited for a narrow lot Zero lot-line
Upstairs Master
Island Walk-in pantry Eating bar
Great room Main Floor laundry Open concept floor plan No formal living/dining

Need Some Quick Tips Or Advice?

We want to help you design the house of your dreams as best as we can. If you can't find the answers you're looking for here, get in touch with our licensed architect or a designer!