Traditional House Plans - 4 Bed, 3 Bath, 3130 Sq Ft | Plan 7-342 | Monster House Plans

New plans now available on

dreambook-head-logo See all available plans
SHARE ON

All plans are copyrighted by the individual designer.

Photographs may reflect custom changes that were not included in the original design.

4 Bedroom, 3 Bath Traditional House Plan #7-342

Plan Purchase Options

Price: $0

Please uncheck first "Purchase MML without any plan package" under MONSTER MATERIAL LIST

Monster Material List
Optional Add-Ons
guaranted-label.png

Best Price Guarantee

*Payment Plans Now
Available Through

img See if you qualify

Floor Plans

What's included?
  • Main Floor

    Reverse

    Clicking the Reverse button does not mean you are ordering your plan reversed. It is for visualization purposes only. You may reverse the plan by ordering under “Optional Add-ons”.

    Main Floor Plan: 7-342
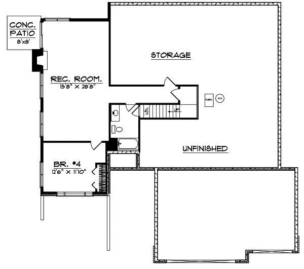
  • Lower Floor

    Reverse

    Clicking the Reverse button does not mean you are ordering your plan reversed. It is for visualization purposes only. You may reverse the plan by ordering under “Optional Add-ons”.

    Lower Floor Plan: 7-342

Rear/Alternate Elevations

  • Rear Elevation

    Reverse

    Clicking the Reverse button does not mean you are ordering your plan reversed. It is for visualization purposes only. You may reverse the plan by ordering under “Optional Add-ons”.

    Rear Elevation Plan: 7-342

House Plan Highlights

This graceful home features an open and welcoming floor plan and a useful lower level. For entertaining look no farther than the formal living and dining rooms. Your loved ones will gravitate toward the family room which features a fireplace and two walls of windows one of which looks out on the rear deck. The spacious kitchen has wrap-around counters and an eating bar and is open to the vaulted sunny breakfast nook. The master bedroom has two walk-in closets and a private bath. There are two additional bedrooms on this floor one of which can be used as a den if you prefer. This floor also offers a three-car garage and a laundry room. Downstairs enjoy a fourth bedroom a full bathroom and a large recreation room. You will love all the storage space downstairs.

This floor plan is found in our Traditional house plans section

Full Specs and Features

icon Total Living Area

  • Main floor: 2282
  • Lower Floor: 848
  • Total Finished Sq. Ft.: 3130

icon Beds/Baths

  • Bedrooms: 4
  • Full Baths: 3

icon Garage

  • Garage: 725
  • Garage Stalls: 3

icon Levels

  • 1 story

Dimension

  • Width: 63' 0"
  • Depth: 63' 8"
  • Height: 25' 6"

Roof slope

  • 8:12 (primary)

Walls (exterior)

  • 2"x6"

Ceiling heights

  • 9' (Main)

Foundation Options

  • Basement Standard With Plan
  • Crawlspace $415
  • Slab $415

How Much Will It Cost To Build?

Wondering what it will actually cost to bring this home to life? Get an instant, customized estimate based on your chosen plan and location.

GET MY COST TO BUILD ESTIMATE

Modify This Plan

"Need Content here about modifying your plan"

Customize This Plan

House Plan Features

Suited for a back view
Main floor Master Teen suite/Jack & Jill bath
Island Walk-in pantry Eating bar Nook / breakfast
Great room Main Floor laundry Open concept floor plan Mud room Formal dining room Den / office / computer
Covered front porch Screened porch/sunroom
Vaulted/Volume/Dramatic ceilings
Oversized garage (3+)

Reviews

How Much Will It Cost To Build?

Wondering what it will actually cost to bring this home to life? Get an instant, customized estimate based on your chosen plan and location.

GET MY COST TO BUILD ESTIMATE

Modify This Plan

Need changes to the layout or features? Our team can modify any plan to match your vision.

Customize This Plan

House Plan Features

Suited for a back view
Main floor Master Teen suite/Jack & Jill bath
Island Walk-in pantry Eating bar Nook / breakfast
Great room Main Floor laundry Open concept floor plan Mud room Formal dining room Den / office / computer
Covered front porch Screened porch/sunroom
Vaulted/Volume/Dramatic ceilings
Oversized garage (3+)

Need Some Quick Tips Or Advice?

We want to help you design the house of your dreams as best as we can. If you can't find the answers you're looking for here, get in touch with our licensed architect or a designer!