Traditional House Plans - 4 Bed, 3 Bath, 3187 Sq Ft | Plan 7-1292 | Monster House Plans

New plans now available on

dreambook-head-logo See all available plans
SHARE ON

All plans are copyrighted by the individual designer.

Photographs may reflect custom changes that were not included in the original design.

4 Bedroom, 3 Bath Traditional House Plan #7-1292

Plan Purchase Options

Price: $0

Please uncheck first "Purchase MML without any plan package" under MONSTER MATERIAL LIST

Monster Material List
Optional Add-Ons
guaranted-label.png

Best Price Guarantee

*Payment Plans Now
Available Through

img See if you qualify

Floor Plans

What's included?
  • Main Floor

    Reverse

    Clicking the Reverse button does not mean you are ordering your plan reversed. It is for visualization purposes only. You may reverse the plan by ordering under “Optional Add-ons”.

    Main Floor Plan: 7-1292
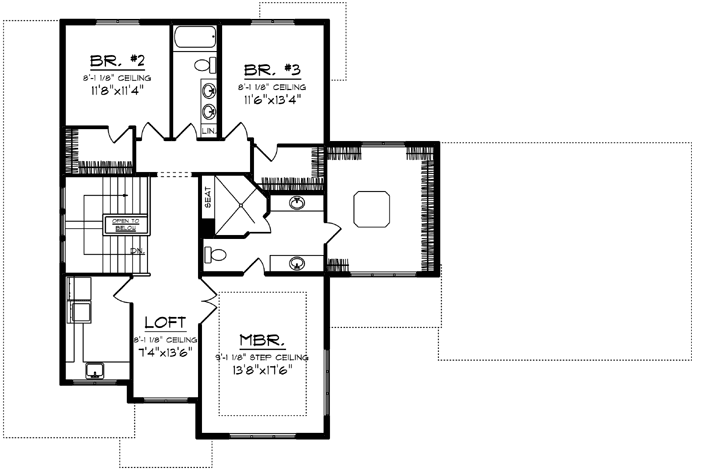
  • Upper/Second Floor

    Reverse

    Clicking the Reverse button does not mean you are ordering your plan reversed. It is for visualization purposes only. You may reverse the plan by ordering under “Optional Add-ons”.

    Upper/Second Floor Plan: 7-1292

Rear/Alternate Elevations

  • Rear Elevation

    Reverse

    Clicking the Reverse button does not mean you are ordering your plan reversed. It is for visualization purposes only. You may reverse the plan by ordering under “Optional Add-ons”.

    Rear Elevation Plan: 7-1292

House Plan Highlights

ul li This modern home features an updated open concept floor plan with a mother-in-laws suite located just off the entry to the left.lili The formal dining area is found off the right of the entry and is accessed from the kitchen through a butlers pantry.lili The spacious kitchen is a chefs dream with large central island and access to both the formal dining room and everyday nook.lili The large great room includes a central fireplace flanked by windows that allow natural light into the living area.lili The master suite is located upstairs and is sure to please mom with a step ceiling dual sinks and spacious walk-in closet.lili Two additional bedrooms a loft full bath and laundry are also located on the second floor.li ul

This floor plan is found in our Traditional house plans section

Full Specs and Features

icon Total Living Area

  • Main floor: 1789
  • Upper floor: 1398
  • Porches: 245
  • Total Finished Sq. Ft.: 3187

icon Beds/Baths

  • Bedrooms: 4
  • Full Baths: 3

icon Garage

  • Garage: 687
  • Garage Stalls: 2

icon Levels

  • 2 stories

Dimension

  • Width: 77' 0"
  • Depth: 52' 0"
  • Height: 24' 8"

Roof slope

  • 4:12 (primary)
  • 4:12 (secondary)

Walls (exterior)

  • 2"x6"

Ceiling heights

  • 9' (Main)
    8' (Upper)
    9' (Lower)

Exterior Finish

  • Combination

Roof Framing

  • Truss

Foundation Options

  • Basement Standard With Plan
  • Crawlspace $415
  • Slab $415

How Much Will It Cost To Build?

Wondering what it will actually cost to bring this home to life? Get an instant, customized estimate based on your chosen plan and location.

GET MY COST TO BUILD ESTIMATE

Modify This Plan

"Need Content here about modifying your plan"

Customize This Plan

House Plan Features

Suited for corner lots Suited for a back view
Main floor Master Teen suite/Jack & Jill bath
Island Walk-in pantry Eating bar Nook / breakfast
Great room Open concept floor plan Formal dining room Den / office / computer
Covered front porch Covered rear porch
Circular / dual staircases Vaulted/Volume/Dramatic ceilings
Oversized garage (3+) Side-entry garage

Reviews

How Much Will It Cost To Build?

Wondering what it will actually cost to bring this home to life? Get an instant, customized estimate based on your chosen plan and location.

GET MY COST TO BUILD ESTIMATE

Modify This Plan

Need changes to the layout or features? Our team can modify any plan to match your vision.

Customize This Plan

House Plan Features

Suited for corner lots Suited for a back view
Main floor Master Teen suite/Jack & Jill bath
Island Walk-in pantry Eating bar Nook / breakfast
Great room Open concept floor plan Formal dining room Den / office / computer
Covered front porch Covered rear porch
Circular / dual staircases Vaulted/Volume/Dramatic ceilings
Oversized garage (3+) Side-entry garage

Need Some Quick Tips Or Advice?

We want to help you design the house of your dreams as best as we can. If you can't find the answers you're looking for here, get in touch with our licensed architect or a designer!