Traditional House Plans - 8 Bed, 4 Bath, 3316 Sq Ft | Plan 12-686 | Monster House Plans

New plans now available on

dreambook-head-logo See all available plans
SHARE ON

All plans are copyrighted by the individual designer.

Photographs may reflect custom changes that were not included in the original design.

Design Comments

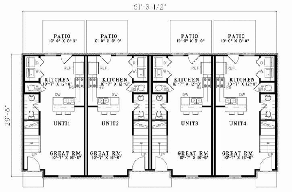
829 sq. ft. /unit four-plex

8 Bedroom, 4 Bath Traditional House Plan #12-686

Plan Purchase Options

Price: $0

Please uncheck first "Purchase MML without any plan package" under MONSTER MATERIAL LIST

Monster Material List
Optional Add-Ons
guaranted-label.png

Best Price Guarantee

*Payment Plans Now
Available Through

img See if you qualify

Floor Plans

What's included?
  • Main Floor

    Reverse

    Clicking the Reverse button does not mean you are ordering your plan reversed. It is for visualization purposes only. You may reverse the plan by ordering under “Optional Add-ons”.

    Main Floor Plan: 12-686
  • Upper/Second Floor

    Reverse

    Clicking the Reverse button does not mean you are ordering your plan reversed. It is for visualization purposes only. You may reverse the plan by ordering under “Optional Add-ons”.

    Upper/Second Floor Plan: 12-686

House Plan Highlights

This multi-family design from features four housing units. On the main floor of each unit, the generous great room merges with the kitchen area. A half bath, laundry area, and rear patio complete the main floor of each home. Two bedrooms and a full bath are available on the upper floor of each unit, along with access to an attic storage area. This design may be just the multi-family plan youпїЅve been looking for.

This floor plan is found in our Traditional house plans section

Full Specs and Features

icon Total Living Area

  • Main floor: 1740
  • Upper floor: 1576
  • Total Finished Sq. Ft.: 3316

icon Beds/Baths

  • Bedrooms: 8
  • Full Baths: 4
  • Half Baths: 4

icon Levels

  • 2 stories

Dimension

  • Width: 61' 3"
  • Depth: 29' 6"
  • Height: 25' 4"

Roof slope

  • 7:12 (primary)

Walls (exterior)

  • 2"x4"

Ceiling heights

  • 8' (Main)
    8' (Upper)

Foundation Options

  • Basement $299
  • Daylight basement $399
  • Crawlspace Standard With Plan
  • Slab Standard With Plan

How Much Will It Cost To Build?

Wondering what it will actually cost to bring this home to life? Get an instant, customized estimate based on your chosen plan and location.

GET MY COST TO BUILD ESTIMATE

Modify This Plan

"Need Content here about modifying your plan"

Customize This Plan

House Plan Features

Eating bar
Great room Main Floor laundry Open concept floor plan No formal living/dining
Photos Available

Reviews

How Much Will It Cost To Build?

Wondering what it will actually cost to bring this home to life? Get an instant, customized estimate based on your chosen plan and location.

GET MY COST TO BUILD ESTIMATE

Modify This Plan

Need changes to the layout or features? Our team can modify any plan to match your vision.

Customize This Plan

House Plan Features

Eating bar
Great room Main Floor laundry Open concept floor plan No formal living/dining
Photos Available

Need Some Quick Tips Or Advice?

We want to help you design the house of your dreams as best as we can. If you can't find the answers you're looking for here, get in touch with our licensed architect or a designer!