Traditional House Plan - 4 Bedrooms, 4 Bath, 3346 Sq Ft Plan 7-1158

New plans now available on

dreambook-head-logo See all available plans
SHARE ON

All plans are copyrighted by the individual designer.

Photographs may reflect custom changes that were not included in the original design.

Design Comments

Entry/Great Rm 2-Story, Master Bdrm 9' Step

4 Bedroom, 4 Bath Traditional House Plan #7-1158

Plan Purchase Options

Price: $0

Please uncheck first "Purchase MML without any plan package" under MONSTER MATERIAL LIST

Monster Material List
Optional Add-Ons
guaranted-label.png

Best Price Guarantee

*Payment Plans Now
Available Through

img See if you qualify

Floor Plans

What's included?
  • Main Floor

    Reverse

    Clicking the Reverse button does not mean you are ordering your plan reversed. It is for visualization purposes only. You may reverse the plan by ordering under “Optional Add-ons”.

    Main Floor Plan: 7-1158
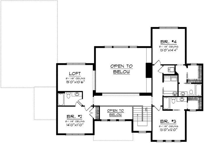
  • Upper/Second Floor

    Reverse

    Clicking the Reverse button does not mean you are ordering your plan reversed. It is for visualization purposes only. You may reverse the plan by ordering under “Optional Add-ons”.

    Upper/Second Floor Plan: 7-1158

Rear/Alternate Elevations

  • Rear Elevation

    Reverse

    Clicking the Reverse button does not mean you are ordering your plan reversed. It is for visualization purposes only. You may reverse the plan by ordering under “Optional Add-ons”.

    Rear Elevation Plan: 7-1158

House Plan Highlights

This impressive two-story design features craftsman touches with classic lines to create a curb appeal that many buyers will love. As you enter the home youll be drawn forward into the great room by all of the natural light streaming in through the two-story wall of windows. The kitchen lies to the left of the entry at the front of the home and features a center island that overlooks the dining room to the back. The master suite is located on the right of the main floor where a spacious walk-in closet dual sinks and easy laundry access is sure to please. Upstairs youll not only be impressed with the view of the great room below but youll also love the three bedrooms loft area and second laundry. A three-stall side load garage completes this home.

This floor plan is found in our Traditional house plans section

Full Specs and Features

icon Total Living Area

  • Main floor: 2017
  • Upper floor: 1329
  • Porches: 125
  • Total Finished Sq. Ft.: 3346

icon Beds/Baths

  • Bedrooms: 4
  • Full Baths: 4
  • Half Baths: 1

icon Garage

  • Garage: 787
  • Garage Stalls: 3

icon Levels

  • 2 stories

Dimension

  • Width: 80' 10"
  • Depth: 56' 6"
  • Height: 32' 10"

Roof slope

  • 10:12 (primary)
  • 10:12 (secondary)

Walls (exterior)

  • 2"x6"

Ceiling heights

  • 9' (Main)
    8' (Upper)

Foundation Options

  • Basement Standard With Plan
  • Crawlspace $415
  • Slab $415

How Much Will It Cost To Build?

Wondering what it will actually cost to bring this home to life? Get an instant, customized estimate based on your chosen plan and location.

GET MY COST TO BUILD ESTIMATE

Modify This Plan

"Need Content here about modifying your plan"

Customize This Plan

House Plan Features

Suited for a back view Suited for a down-sloping lot
Island Walk-in pantry Nook / breakfast
Family room Great room Formal dining room Den / office / computer
Covered rear porch Screened porch/sunroom
Oversized garage (3+)

Reviews

How Much Will It Cost To Build?

Wondering what it will actually cost to bring this home to life? Get an instant, customized estimate based on your chosen plan and location.

GET MY COST TO BUILD ESTIMATE

Modify This Plan

Need changes to the layout or features? Our team can modify any plan to match your vision.

Customize This Plan

House Plan Features

Suited for a back view Suited for a down-sloping lot
Island Walk-in pantry Nook / breakfast
Family room Great room Formal dining room Den / office / computer
Covered rear porch Screened porch/sunroom
Oversized garage (3+)

Need Some Quick Tips Or Advice?

We want to help you design the house of your dreams as best as we can. If you can't find the answers you're looking for here, get in touch with our licensed architect or a designer!