Traditional House Plan - 3 Bedrooms, 3 Bath, 3692 Sq Ft Plan 7-936

New plans now available on

dreambook-head-logo See all available plans
SHARE ON

All plans are copyrighted by the individual designer.

Photographs may reflect custom changes that were not included in the original design.

Design Comments

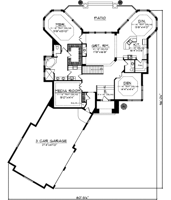
Entry ceiling - 15'. Den, Dining Rm., Media Rm., MBR. 11' Tray. Great Rm. 14'.

3 Bedroom, 3 Bath Traditional House Plan #7-936

Plan Purchase Options

Price: $0

Please uncheck first "Purchase MML without any plan package" under MONSTER MATERIAL LIST

Monster Material List
Optional Add-Ons
guaranted-label.png

Best Price Guarantee

*Payment Plans Now
Available Through

img See if you qualify

Floor Plans

What's included?
  • Main Floor

    Reverse

    Clicking the Reverse button does not mean you are ordering your plan reversed. It is for visualization purposes only. You may reverse the plan by ordering under “Optional Add-ons”.

    Main Floor Plan: 7-936
  • Lower Floor

    Reverse

    Clicking the Reverse button does not mean you are ordering your plan reversed. It is for visualization purposes only. You may reverse the plan by ordering under “Optional Add-ons”.

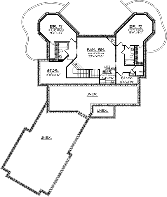
    Lower Floor Plan: 7-936

Rear/Alternate Elevations

  • Rear Elevation

    Reverse

    Clicking the Reverse button does not mean you are ordering your plan reversed. It is for visualization purposes only. You may reverse the plan by ordering under “Optional Add-ons”.

    Rear Elevation Plan: 7-936

House Plan Highlights

A unique floor plan will help you take advantage of every view out the back of this home. With stone and stucco the curb appeal of this ranch makes a statement that is reminiscent of Florida style homes. As you enter the media room with tray ceiling is found to your left and a den also with tray ceiling is to your right. Directly ahead soaring windows let plenty of light into the comfortable great room where you'll discover a central fireplace and built-ins. The adjacent kitchen features a large walk-in pantry and a breakfast bar that overlooks an angled horizontal dining room. The master suite on the opposite side of the home mirrors the dining room in shape and features a spacious walk-in closet corner whirlpool tub and direct access to the laundry room. The finished lower level includes two additional bedrooms each with a walk-in closet and private bath a wet bar and a large family room. A three-stall angled garage completes the home.

This floor plan is found in our Traditional house plans section

Full Specs and Features

icon Total Living Area

  • Main floor: 2394
  • Lower Floor: 1298
  • Total Finished Sq. Ft.: 3692

icon Beds/Baths

  • Bedrooms: 3
  • Full Baths: 3
  • Half Baths: 1

icon Garage

  • Garage: 1144
  • Garage Stalls: 3

icon Levels

  • 1 story

Dimension

  • Width: 80' 6"
  • Depth: 96' 3"
  • Height: 24' 3"

Roof slope

  • 8:12 (primary)

Walls (exterior)

  • 2"x6"

Ceiling heights

  • 10' (Main)
    9' (Upper)

Foundation Options

  • Basement Standard With Plan
  • Crawlspace $415
  • Slab $415

How Much Will It Cost To Build?

Wondering what it will actually cost to bring this home to life? Get an instant, customized estimate based on your chosen plan and location.

GET MY COST TO BUILD ESTIMATE

Modify This Plan

"Need Content here about modifying your plan"

Customize This Plan

House Plan Features

Suited for a back view
Teen suite/Jack & Jill bath
Island Walk-in pantry Eating bar
Great room Main Floor laundry Loft / balcony Open concept floor plan Mud room No formal living/dining Den / office / computer
Covered front porch Covered rear porch Screened porch/sunroom
Oversized garage (3+)

Reviews

How Much Will It Cost To Build?

Wondering what it will actually cost to bring this home to life? Get an instant, customized estimate based on your chosen plan and location.

GET MY COST TO BUILD ESTIMATE

Modify This Plan

Need changes to the layout or features? Our team can modify any plan to match your vision.

Customize This Plan

House Plan Features

Suited for a back view
Teen suite/Jack & Jill bath
Island Walk-in pantry Eating bar
Great room Main Floor laundry Loft / balcony Open concept floor plan Mud room No formal living/dining Den / office / computer
Covered front porch Covered rear porch Screened porch/sunroom
Oversized garage (3+)

Need Some Quick Tips Or Advice?

We want to help you design the house of your dreams as best as we can. If you can't find the answers you're looking for here, get in touch with our licensed architect or a designer!