Traditional House Plans - 3 Bed, 3 Bath, 3745 Sq Ft | Plan 7-1123 | Monster House Plans

New plans now available on

dreambook-head-logo See all available plans
SHARE ON

All plans are copyrighted by the individual designer.

Photographs may reflect custom changes that were not included in the original design.

Design Comments

Entry/Grt Rm S-Story, Sun Rm/Master Bdrm 12' Step,

3 Bedroom, 3 Bath Traditional House Plan #7-1123

Plan Purchase Options

Price: $0

Please uncheck first "Purchase MML without any plan package" under MONSTER MATERIAL LIST

Monster Material List
Optional Add-Ons
guaranted-label.png

Best Price Guarantee

*Payment Plans Now
Available Through

img See if you qualify

Floor Plans

What's included?
  • Main Floor

    Reverse

    Clicking the Reverse button does not mean you are ordering your plan reversed. It is for visualization purposes only. You may reverse the plan by ordering under “Optional Add-ons”.

    Main Floor Plan: 7-1123
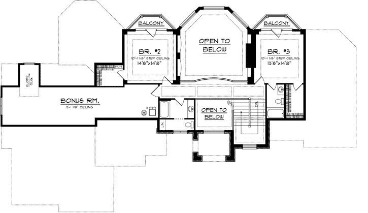
  • Upper/Second Floor

    Reverse

    Clicking the Reverse button does not mean you are ordering your plan reversed. It is for visualization purposes only. You may reverse the plan by ordering under “Optional Add-ons”.

    Upper/Second Floor Plan: 7-1123

Rear/Alternate Elevations

  • Rear Elevation

    Reverse

    Clicking the Reverse button does not mean you are ordering your plan reversed. It is for visualization purposes only. You may reverse the plan by ordering under “Optional Add-ons”.

    Rear Elevation Plan: 7-1123

House Plan Highlights

This elegant two-story home has a country French influence that makes this home a favorite among todays buyers. The entire back of the home is made up of bay windows providing beautiful views to the back yard. A two-story entry leads you into the great room directly ahead where an open concept floor plan is created from a careful blend of the kitchen dining sun and great rooms. A master suite with step ceiling is located on the right of the home and feature his and hers sinks and a large walk-in closet. Upstairs youll find amazing views out the back of the home and into the great room below as well as two bedrooms each with walk-in closet and tray ceiling in the bedroom. A three-stall side-load garage with extra storage space completes the home.

This floor plan is found in our Traditional house plans section

Full Specs and Features

icon Total Living Area

  • Main floor: 2858
  • Upper floor: 887
  • Bonus: 517
  • Porches: 91
  • Total Finished Sq. Ft.: 3745

icon Beds/Baths

  • Bedrooms: 3
  • Full Baths: 3
  • Half Baths: 1

icon Garage

  • Garage: 1104
  • Garage Stalls: 3

icon Levels

  • 2 stories

Dimension

  • Width: 101' 0"
  • Depth: 60' 0"
  • Height: 33' 7"

Roof slope

  • 12:12 (primary)
  • 10:12 (secondary)

Walls (exterior)

  • 2"x6"

Ceiling heights

  • 10' (Main)

Foundation Options

  • Basement Standard With Plan
  • Crawlspace $415
  • Slab $415

How Much Will It Cost To Build?

Wondering what it will actually cost to bring this home to life? Get an instant, customized estimate based on your chosen plan and location.

GET MY COST TO BUILD ESTIMATE

Modify This Plan

"Need Content here about modifying your plan"

Customize This Plan

House Plan Features

Suited for corner lots Suited for a back view
Main floor Master Teen suite/Jack & Jill bath
Island Walk-in pantry Eating bar
Hobby / rec-room Great room Main Floor laundry Open concept floor plan Mud room No formal living/dining Den / office / computer
Vaulted/Volume/Dramatic ceilings
Oversized garage (3+) Side-entry garage

Reviews

How Much Will It Cost To Build?

Wondering what it will actually cost to bring this home to life? Get an instant, customized estimate based on your chosen plan and location.

GET MY COST TO BUILD ESTIMATE

Modify This Plan

Need changes to the layout or features? Our team can modify any plan to match your vision.

Customize This Plan

House Plan Features

Suited for corner lots Suited for a back view
Main floor Master Teen suite/Jack & Jill bath
Island Walk-in pantry Eating bar
Hobby / rec-room Great room Main Floor laundry Open concept floor plan Mud room No formal living/dining Den / office / computer
Vaulted/Volume/Dramatic ceilings
Oversized garage (3+) Side-entry garage

Need Some Quick Tips Or Advice?

We want to help you design the house of your dreams as best as we can. If you can't find the answers you're looking for here, get in touch with our licensed architect or a designer!