Traditional House Plans - 3 Bed, 3 Bath, 3751 Sq Ft | Plan 63-122 | Monster House Plans

New plans now available on

dreambook-head-logo See all available plans
SHARE ON

All plans are copyrighted by the individual designer.

Photographs may reflect custom changes that were not included in the original design.

3 Bedroom, 3 Bath Traditional House Plan #63-122

Plan Purchase Options

Price: $0

Please uncheck first "Purchase MML without any plan package" under MONSTER MATERIAL LIST

Monster Material List
Optional Add-Ons
guaranted-label.png

Best Price Guarantee

*Payment Plans Now
Available Through

img See if you qualify

Floor Plans

What's included?
  • Main Floor

    Reverse

    Clicking the Reverse button does not mean you are ordering your plan reversed. It is for visualization purposes only. You may reverse the plan by ordering under “Optional Add-ons”.

    Main Floor Plan: 63-122
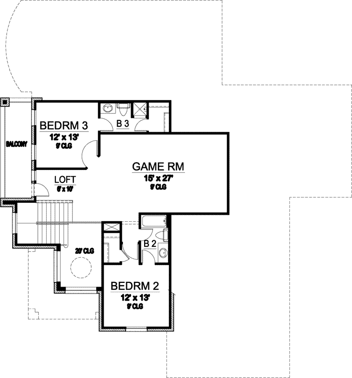
  • Upper/Second Floor

    Reverse

    Clicking the Reverse button does not mean you are ordering your plan reversed. It is for visualization purposes only. You may reverse the plan by ordering under “Optional Add-ons”.

    Upper/Second Floor Plan: 63-122

House Plan Highlights

You are greeted by a welcoming corner porch with 11' ceilings in this classic design. Step inside and the 20' ceilings in the entry make a great statement. Through the arched passageway you'll find the family room with wet bar, fireplace with built-ins and access to the side patio. The pass-through kitchen keeps the cook involved with guests while hiding clutter. The dining room is open to the family room. Built-ins are a nice touch. The study has a tray ceiling and is quietly situated away from the main portion of the home. Off the kitchen and breakfast room, the den makes for another quiet retreat. The master suite with double tray ceilings features a large walk-in wardrobe. Upstairs, a loft and game room compliment two bedroom suites, one with access to an outdoor balcony.

This floor plan is found in our Traditional house plans section

Full Specs and Features

icon Total Living Area

  • Main floor: 2687
  • Upper floor: 1064
  • Porches: 112
  • Total Finished Sq. Ft.: 3751

icon Beds/Baths

  • Bedrooms: 3
  • Full Baths: 3
  • Half Baths: 1

icon Garage

  • Garage: 717
  • Garage Stalls: 3

icon Levels

  • 2 stories

Dimension

  • Width: 67' 8"
  • Depth: 72' 10"
  • Height: 32' 1"

Roof slope

  • 9:12 (primary)

Walls (exterior)

  • 2"x4"

Ceiling heights

  • 10' (Main)
    9' (Upper)

Foundation Options

  • Slab Standard With Plan

How Much Will It Cost To Build?

Wondering what it will actually cost to bring this home to life? Get an instant, customized estimate based on your chosen plan and location.

GET MY COST TO BUILD ESTIMATE

Modify This Plan

"Need Content here about modifying your plan"

Customize This Plan

House Plan Features

Suited for corner lots
Main floor Master Teen suite/Jack & Jill bath
Island Walk-in pantry Butler's pantry Eating bar Nook / breakfast
Family room Hobby / rec-room Main Floor laundry Loft / balcony Open concept floor plan No formal living/dining Den / office / computer
Photos Available
Oversized garage (3+) Side-entry garage

Reviews

How Much Will It Cost To Build?

Wondering what it will actually cost to bring this home to life? Get an instant, customized estimate based on your chosen plan and location.

GET MY COST TO BUILD ESTIMATE

Modify This Plan

Need changes to the layout or features? Our team can modify any plan to match your vision.

Customize This Plan

House Plan Features

Suited for corner lots
Main floor Master Teen suite/Jack & Jill bath
Island Walk-in pantry Butler's pantry Eating bar Nook / breakfast
Family room Hobby / rec-room Main Floor laundry Loft / balcony Open concept floor plan No formal living/dining Den / office / computer
Photos Available
Oversized garage (3+) Side-entry garage

Need Some Quick Tips Or Advice?

We want to help you design the house of your dreams as best as we can. If you can't find the answers you're looking for here, get in touch with our licensed architect or a designer!