Traditional House Plans - 3 Bed, 3 Bath, 3794 Sq Ft | Plan 7-1124 | Monster House Plans

New plans now available on

dreambook-head-logo See all available plans
SHARE ON

All plans are copyrighted by the individual designer.

Photographs may reflect custom changes that were not included in the original design.

Design Comments

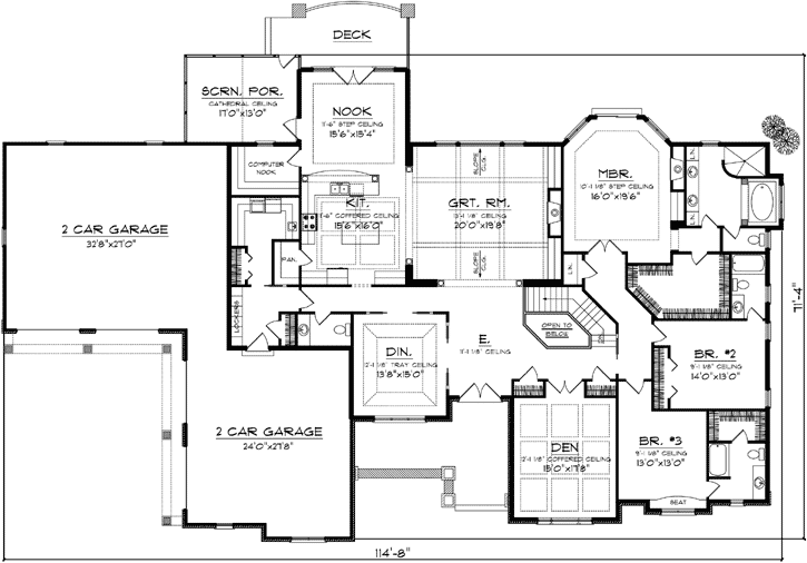
Entry 11', Din Rm 12' Tray, Kitch 11'-6" Coffered, Nook 11'-6" Step, Grt Rm 13' Flat, Master Bdrm 10' Step

3 Bedroom, 3 Bath Traditional House Plan #7-1124

Plan Purchase Options

Price: $0

Please uncheck first "Purchase MML without any plan package" under MONSTER MATERIAL LIST

Monster Material List
Optional Add-Ons
guaranted-label.png

Best Price Guarantee

*Payment Plans Now
Available Through

img See if you qualify

Floor Plans

What's included?
  • Main Floor

    Reverse

    Clicking the Reverse button does not mean you are ordering your plan reversed. It is for visualization purposes only. You may reverse the plan by ordering under “Optional Add-ons”.

    Main Floor Plan: 7-1124

Rear/Alternate Elevations

  • Rear Elevation

    Reverse

    Clicking the Reverse button does not mean you are ordering your plan reversed. It is for visualization purposes only. You may reverse the plan by ordering under “Optional Add-ons”.

    Rear Elevation Plan: 7-1124

House Plan Highlights

Wooden beams and columns grace the outside of this country Frenchcraftsman inspired ranch home. Details that grab your attention abound in this home and start as soon as you enter with a direct view into the great room. Here youll be impressed with the beamed ceiling fireplace and open floor plan that allows direct access to the kitchen. A formal dining room with tray ceiling is found to the left of the entry while a spacious den with coffered ceilings is located to the right. The bedroom wing is found on the right side of the home and includes a large master suite with spacious walk-in closet and Jacuzzi tub. Two additional bedrooms each with private bathroom is located to the front of the home. A four-stall split-load garage completes the home.

This floor plan is found in our Traditional house plans section

Full Specs and Features

icon Total Living Area

  • Main floor: 3794
  • Porches: 569
  • Total Finished Sq. Ft.: 3794

icon Beds/Baths

  • Bedrooms: 3
  • Full Baths: 3
  • Half Baths: 1

icon Garage

  • Garage: 1595
  • Garage Stalls: 4

icon Levels

  • 1 story

Dimension

  • Width: 114' 8"
  • Depth: 71' 4"
  • Height: 29' 0"

Roof slope

  • 10:12 (primary)
  • 8:12 (secondary)

Walls (exterior)

  • 2"x6"

Ceiling heights

  • 9' (Main)

Foundation Options

  • Basement Standard With Plan
  • Crawlspace $415
  • Slab $415

How Much Will It Cost To Build?

Wondering what it will actually cost to bring this home to life? Get an instant, customized estimate based on your chosen plan and location.

GET MY COST TO BUILD ESTIMATE

Modify This Plan

"Need Content here about modifying your plan"

Customize This Plan

House Plan Features

Suited for a back view Suited for a down-sloping lot Zero lot-line
Island Nook / breakfast
Great room Formal dining room
Covered rear porch Screened porch/sunroom
Vaulted/Volume/Dramatic ceilings

Reviews

How Much Will It Cost To Build?

Wondering what it will actually cost to bring this home to life? Get an instant, customized estimate based on your chosen plan and location.

GET MY COST TO BUILD ESTIMATE

Modify This Plan

Need changes to the layout or features? Our team can modify any plan to match your vision.

Customize This Plan

House Plan Features

Suited for a back view Suited for a down-sloping lot Zero lot-line
Island Nook / breakfast
Great room Formal dining room
Covered rear porch Screened porch/sunroom
Vaulted/Volume/Dramatic ceilings

Need Some Quick Tips Or Advice?

We want to help you design the house of your dreams as best as we can. If you can't find the answers you're looking for here, get in touch with our licensed architect or a designer!