Traditional House Plans - 4 Bed, 3 Bath, 3943 Sq Ft | Plan 4-243 | Monster House Plans

New plans now available on

dreambook-head-logo See all available plans
SHARE ON

All plans are copyrighted by the individual designer.

Photographs may reflect custom changes that were not included in the original design.

4 Bedroom, 3 Bath Traditional House Plan #4-243

Plan Purchase Options

Price: $0

Please uncheck first "Purchase MML without any plan package" under MONSTER MATERIAL LIST

Optional Add-Ons
guaranted-label.png

Best Price Guarantee

*Payment Plans Now
Available Through

img See if you qualify

Floor Plans

What's included?
  • Main Floor

    Reverse

    Clicking the Reverse button does not mean you are ordering your plan reversed. It is for visualization purposes only. You may reverse the plan by ordering under “Optional Add-ons”.

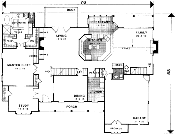
    Main Floor Plan: 4-243
  • Upper/Second Floor

    Reverse

    Clicking the Reverse button does not mean you are ordering your plan reversed. It is for visualization purposes only. You may reverse the plan by ordering under “Optional Add-ons”.

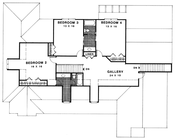
    Upper/Second Floor Plan: 4-243

House Plan Highlights

This 3,943 sq. ft. design is a two-story traditional with English Tudor details. The exterior consists of stucco and stacked stone with rough-sawn columns. Featuring 4 bedrooms and 3-1/2 baths, this plan includes front and rear stairs for access to the upper level. The 20'x19' family room is high- lighted by a fireplace, built-in desk and wet bar. The family room also features a vaulted ceiling. Measuring 17'x20', the living room features built-in bookcases on either side of the fireplace. The master suite, located on the lower level, is truly an owner's retreat. It features two walk-in closets and a built-in bookcase. The master bath, with vaulted ceiling and skylights, has separate garden tub and shower, separate vanities and a linen closet. Located just off of the master suite is a study measuring 14'x13' which could also serve as a nursery. Completing the lower level is a 16'x13' dining room, large gourmet kitchen and steps leading down to the basement can be eliminated and replaced by a utility closet in areas which do not permit a basement.


The upper level features 3 bedrooms and a gallery. Bedroom 2 measures 16'x16' and has a private bath. Bedrooms 3 and 4 each measure 13'x16' and share a private bath. The gallery measures 24'x10' and makes a comfortable sitting area.

This floor plan is found in our Traditional house plans section

Full Specs and Features

icon Total Living Area

  • Main floor: 2646
  • Upper floor: 1297
  • Total Finished Sq. Ft.: 3943

icon Beds/Baths

  • Bedrooms: 4
  • Full Baths: 3
  • Half Baths: 1

icon Garage

  • Garage Stalls: 2

icon Levels

  • 2 stories

Dimension

  • Width: 76' 0"
  • Depth: 58' 0"
  • Height: 48' 0"

Roof slope

  • 10:12 (primary)

Walls (exterior)

  • 2"x4"

Ceiling heights

  • 9' (Main)
    8' (Upper)

Foundation Options

  • Basement Standard With Plan
  • Crawlspace $350
  • Slab $350

How Much Will It Cost To Build?

Wondering what it will actually cost to bring this home to life? Get an instant, customized estimate based on your chosen plan and location.

GET MY COST TO BUILD ESTIMATE

Modify This Plan

"Need Content here about modifying your plan"

Customize This Plan

House Plan Features

Suited for corner lots Suited for a back view
Main floor Master Master sitting area/Nursery Teen suite/Jack & Jill bath
Island Butler's pantry Eating bar Nook / breakfast
Family room Great room Main Floor laundry Loft / balcony Formal dining room Den / office / computer
Covered front porch
Circular / dual staircases Vaulted/Volume/Dramatic ceilings
Side-entry garage

Reviews

How Much Will It Cost To Build?

Wondering what it will actually cost to bring this home to life? Get an instant, customized estimate based on your chosen plan and location.

GET MY COST TO BUILD ESTIMATE

Modify This Plan

Need changes to the layout or features? Our team can modify any plan to match your vision.

Customize This Plan

House Plan Features

Suited for corner lots Suited for a back view
Main floor Master Master sitting area/Nursery Teen suite/Jack & Jill bath
Island Butler's pantry Eating bar Nook / breakfast
Family room Great room Main Floor laundry Loft / balcony Formal dining room Den / office / computer
Covered front porch
Circular / dual staircases Vaulted/Volume/Dramatic ceilings
Side-entry garage

Need Some Quick Tips Or Advice?

We want to help you design the house of your dreams as best as we can. If you can't find the answers you're looking for here, get in touch with our licensed architect or a designer!