Traditional House Plans - 3 Bed, 3 Bath, 3999 Sq Ft | Plan 7-1066 | Monster House Plans

New plans now available on

dreambook-head-logo See all available plans
SHARE ON

All plans are copyrighted by the individual designer.

Photographs may reflect custom changes that were not included in the original design.

Design Comments

Entry 13' Step, Grt Rm 14' Step, Den 12', Master Bdrm 11' Step

3 Bedroom, 3 Bath Traditional House Plan #7-1066

Plan Purchase Options

Price: $0

Please uncheck first "Purchase MML without any plan package" under MONSTER MATERIAL LIST

Monster Material List
Optional Add-Ons
guaranted-label.png

Best Price Guarantee

*Payment Plans Now
Available Through

img See if you qualify

Floor Plans

What's included?
  • Main Floor

    Reverse

    Clicking the Reverse button does not mean you are ordering your plan reversed. It is for visualization purposes only. You may reverse the plan by ordering under “Optional Add-ons”.

    Main Floor Plan: 7-1066
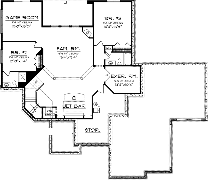
  • Lower Floor

    Reverse

    Clicking the Reverse button does not mean you are ordering your plan reversed. It is for visualization purposes only. You may reverse the plan by ordering under “Optional Add-ons”.

    Lower Floor Plan: 7-1066

Rear/Alternate Elevations

  • Rear Elevation

    Reverse

    Clicking the Reverse button does not mean you are ordering your plan reversed. It is for visualization purposes only. You may reverse the plan by ordering under “Optional Add-ons”.

    Rear Elevation Plan: 7-1066

House Plan Highlights

Traditional in style but updated with todays popular materials this walkout ranch home is the perfect addition to your neighborhood. A uniquely detailed entry ceiling will impress you as you enter the home where the den is located to the front on your right and the great room lies directly ahead. A step ceiling and fireplace with built-ins will impress you as you encounter the main living area of the home. To your left a kitchen with central island that provides extra seating as well as a view of the great room and an adjacent dining room complete the area. The master suite lies to the right of the great room and includes a step ceiling walk-in closet and on-suite bath. Downstairs youll be impressed with the use of space where youll find two additional bedrooms a large family room wet bar and game room. A split-load three-stall garage completes the home.

This floor plan is found in our Traditional house plans section

Full Specs and Features

icon Total Living Area

  • Main floor: 2203
  • Lower Floor: 1796
  • Porches: 343
  • Total Finished Sq. Ft.: 3999

icon Beds/Baths

  • Bedrooms: 3
  • Full Baths: 3
  • Half Baths: 1

icon Garage

  • Garage: 1096
  • Garage Stalls: 3

icon Levels

  • 1 story

Dimension

  • Width: 79' 4"
  • Depth: 68' 0"
  • Height: 27' 10"

Roof slope

  • 10:12 (primary)
  • 8:12 (secondary)

Walls (exterior)

  • 2"x6"

Ceiling heights

  • 10' (Main)

Foundation Options

  • Basement $295
  • Walk-out basement Standard With Plan
  • Crawlspace $415
  • Slab $415

How Much Will It Cost To Build?

Wondering what it will actually cost to bring this home to life? Get an instant, customized estimate based on your chosen plan and location.

GET MY COST TO BUILD ESTIMATE

Modify This Plan

"Need Content here about modifying your plan"

Customize This Plan

House Plan Features

Suited for a back view Suited for a down-sloping lot
Upstairs Master Multi-generational design
Island Eating bar
Family room Great room Upstairs laundry Loft / balcony Open concept floor plan Mud room No formal living/dining Den / office / computer Unfinished/future space
Covered front porch Covered rear porch Screened porch/sunroom
Vaulted/Volume/Dramatic ceilings
Oversized garage (3+)

Reviews

How Much Will It Cost To Build?

Wondering what it will actually cost to bring this home to life? Get an instant, customized estimate based on your chosen plan and location.

GET MY COST TO BUILD ESTIMATE

Modify This Plan

Need changes to the layout or features? Our team can modify any plan to match your vision.

Customize This Plan

House Plan Features

Suited for a back view Suited for a down-sloping lot
Upstairs Master Multi-generational design
Island Eating bar
Family room Great room Upstairs laundry Loft / balcony Open concept floor plan Mud room No formal living/dining Den / office / computer Unfinished/future space
Covered front porch Covered rear porch Screened porch/sunroom
Vaulted/Volume/Dramatic ceilings
Oversized garage (3+)

Need Some Quick Tips Or Advice?

We want to help you design the house of your dreams as best as we can. If you can't find the answers you're looking for here, get in touch with our licensed architect or a designer!