Traditional House Plans - 5 Bed, 4 Bath, 4095 Sq Ft | Plan 85-222 | Monster House Plans

New plans now available on

dreambook-head-logo See all available plans
SHARE ON

All plans are copyrighted by the individual designer.

Photographs may reflect custom changes that were not included in the original design.

Design Comments

Plans include a multiple build license. Additional foundations available for $175

5 Bedroom, 4 Bath Traditional House Plan #85-222

Plan Purchase Options

Price: $0

Please uncheck first "Purchase MML without any plan package" under MONSTER MATERIAL LIST

Monster Material List
Optional Add-Ons
guaranted-label.png

Best Price Guarantee

*Payment Plans Now
Available Through

img See if you qualify

Floor Plans

What's included?
  • Main Floor

    Reverse

    Clicking the Reverse button does not mean you are ordering your plan reversed. It is for visualization purposes only. You may reverse the plan by ordering under “Optional Add-ons”.

    Main Floor Plan: 85-222
  • Upper/Second Floor

    Reverse

    Clicking the Reverse button does not mean you are ordering your plan reversed. It is for visualization purposes only. You may reverse the plan by ordering under “Optional Add-ons”.

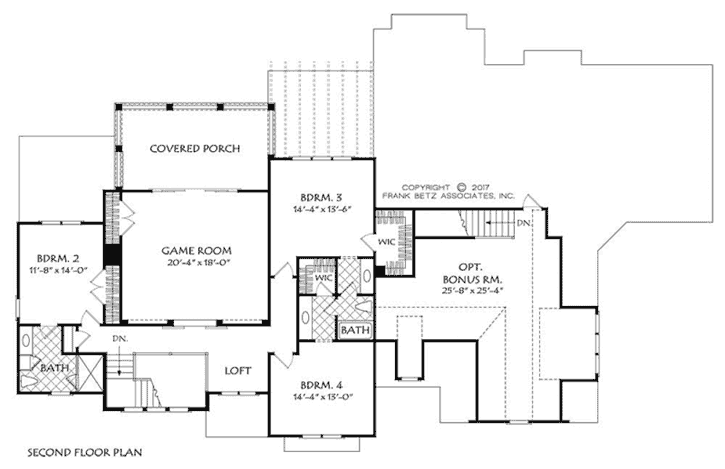
    Upper/Second Floor Plan: 85-222

House Plan Highlights

Steeply pitched gables and a mixed use of exterior materials unite to create an interesting, modern design. Classic fieldstone adorns the main elements of the elevation while clapboard and board-and-batten sidings complete the cladding. Large window groupings, a boxed bay window and a pair of covered stoops provide the finishing touches on the exterior. The main floor is loaded with features and amenities to satisfy even the most discerning tastes. The island kitchen anchors the living spaces and is open to the grand room and breakfast areas. The master suite is secluded and is perfectly located to take full advantage of rear facing views. The master bath has a free standing tub and a large shower as well as large walk-in closets for him and her. The guest suite has a private bath and can also double as a home work space. The outdoor decks and covered porches provide additional space to enjoy and entertain when the weather permits. The upper level contains three additional bedrooms for a growing family. The game room is the perfect space for game tables, media and large lounging furnishings and also opens onto an upper level covered porch. The bonus room has its own access via a rear stairway and could be adapted into an au pair suite or other purposes.

This floor plan is found in our Traditional house plans section

Full Specs and Features

icon Total Living Area

  • Main floor: 2590
  • Upper floor: 1505
  • Basement: 2590
  • Bonus: 579
  • Total Finished Sq. Ft.: 4095

icon Beds/Baths

  • Bedrooms: 5
  • Full Baths: 4
  • Half Baths: 2

icon Garage

  • Garage: 932
  • Garage Stalls: 3

icon Levels

  • 2 stories

Dimension

  • Width: 61' 0"
  • Depth: 97' 0"
  • Height: 34' 9"

Roof slope

  • 10:12 (primary)

Walls (exterior)

  • 2"x4"

Ceiling heights

  • 10' (Main)
    9' (Upper)

Exterior Finish

  • Combination

Roof Framing

  • Stick Frame

Foundation Options

  • Walk-out basement Standard With Plan
  • Crawlspace Standard With Plan

How Much Will It Cost To Build?

Wondering what it will actually cost to bring this home to life? Get an instant, customized estimate based on your chosen plan and location.

GET MY COST TO BUILD ESTIMATE

Modify This Plan

"Need Content here about modifying your plan"

Customize This Plan

House Plan Features

Suited for a back view Suited for a side-sloping lot
Main floor Master Teen suite/Jack & Jill bath
Island Walk-in pantry Eating bar Nook / breakfast
Bonus room Hobby / rec-room Great room Main Floor laundry Loft / balcony Open concept floor plan Mud room Formal dining room Den / office / computer Unfinished/future space
Covered rear porch
Photos Available
Oversized garage (3+) Side-entry garage

Reviews

How Much Will It Cost To Build?

Wondering what it will actually cost to bring this home to life? Get an instant, customized estimate based on your chosen plan and location.

GET MY COST TO BUILD ESTIMATE

Modify This Plan

Need changes to the layout or features? Our team can modify any plan to match your vision.

Customize This Plan

House Plan Features

Suited for a back view Suited for a side-sloping lot
Main floor Master Teen suite/Jack & Jill bath
Island Walk-in pantry Eating bar Nook / breakfast
Bonus room Hobby / rec-room Great room Main Floor laundry Loft / balcony Open concept floor plan Mud room Formal dining room Den / office / computer Unfinished/future space
Covered rear porch
Photos Available
Oversized garage (3+) Side-entry garage

Need Some Quick Tips Or Advice?

We want to help you design the house of your dreams as best as we can. If you can't find the answers you're looking for here, get in touch with our licensed architect or a designer!