Traditional House Plan - 6 Bedrooms, 6 Bath, 4194 Sq Ft Plan 12-648

New plans now available on

dreambook-head-logo See all available plans
SHARE ON

All plans are copyrighted by the individual designer.

Photographs may reflect custom changes that were not included in the original design.

Design Comments

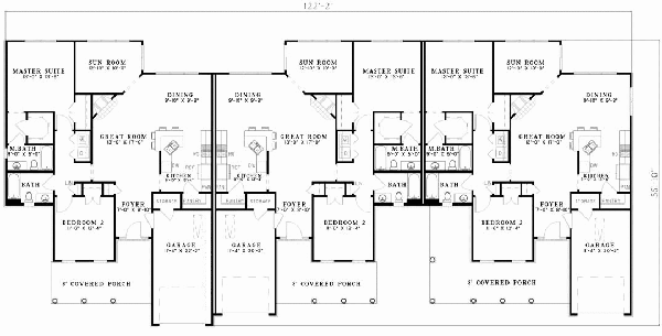
1398 sq. ft. / unit tri-plex
Unit 1 & 2 porch 185 sq. ft.
Unit 3 porch - 337 sq. ft.

6 Bedroom, 6 Bath Traditional House Plan #12-648

Plan Purchase Options

Price: $0

Please uncheck first "Purchase MML without any plan package" under MONSTER MATERIAL LIST

Monster Material List
Optional Add-Ons
guaranted-label.png

Best Price Guarantee

*Payment Plans Now
Available Through

img See if you qualify

Floor Plans

What's included?
  • Main Floor

    Reverse

    Clicking the Reverse button does not mean you are ordering your plan reversed. It is for visualization purposes only. You may reverse the plan by ordering under “Optional Add-ons”.

    Main Floor Plan: 12-648

House Plan Highlights

Columns and dormers adorn the front of this triplex unit. Each home features an eight foot covered front porch, the perfect place for a rocking chair or two. The kitchen merges with the great and dining rooms, lending an airy and open feel to this layout. Each home has a fireplace and a sun room so you can correspond with the seasons. The master suites are situated towards the rear with the additional bedrooms provided near the front of each home. A convenient laundry room is tucked in the hallway and plenty of storage space can be found in each home in this triplex design.

This floor plan is found in our Traditional house plans section

Full Specs and Features

icon Total Living Area

  • Main floor: 4194
  • Porches: 707
  • Total Finished Sq. Ft.: 4194

icon Beds/Baths

  • Bedrooms: 6
  • Full Baths: 6

icon Garage

  • Garage: 858
  • Garage Stalls: 3

icon Levels

  • 1 story

Dimension

  • Width: 122' 2"
  • Depth: 55' 10"
  • Height: 26' 9"

Roof slope

  • 9:12 (primary)
  • 3:12 (secondary)

Walls (exterior)

  • 2"x4"

Ceiling heights

  • 9' (Main)

Foundation Options

  • Basement $299
  • Daylight basement $299
  • Crawlspace Standard With Plan
  • Slab Standard With Plan

How Much Will It Cost To Build?

Wondering what it will actually cost to bring this home to life? Get an instant, customized estimate based on your chosen plan and location.

GET MY COST TO BUILD ESTIMATE

Modify This Plan

"Need Content here about modifying your plan"

Customize This Plan

House Plan Features

Suited for a back view
Walk-in pantry Eating bar
Great room Open concept floor plan No formal living/dining
Covered front porch Screened porch/sunroom

Reviews

How Much Will It Cost To Build?

Wondering what it will actually cost to bring this home to life? Get an instant, customized estimate based on your chosen plan and location.

GET MY COST TO BUILD ESTIMATE

Modify This Plan

Need changes to the layout or features? Our team can modify any plan to match your vision.

Customize This Plan

House Plan Features

Suited for a back view
Walk-in pantry Eating bar
Great room Open concept floor plan No formal living/dining
Covered front porch Screened porch/sunroom

Need Some Quick Tips Or Advice?

We want to help you design the house of your dreams as best as we can. If you can't find the answers you're looking for here, get in touch with our licensed architect or a designer!