Traditional House Plans - 4 Bed, 2 Bath, 4384 Sq Ft | Plan 7-1320 | Monster House Plans

New plans now available on

dreambook-head-logo See all available plans
SHARE ON

All plans are copyrighted by the individual designer.

Photographs may reflect custom changes that were not included in the original design.

Design Comments

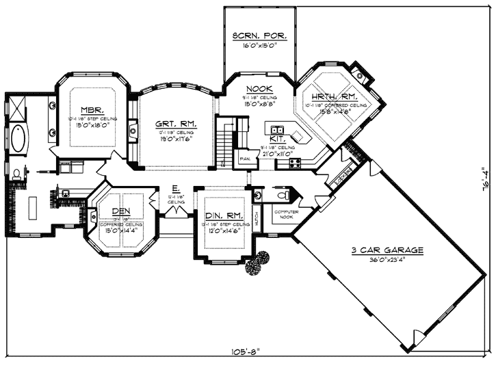
Entry/Great Rm 12'. Den 13' Coffered, Hearth Rm 10' Coffered, Dining Rm 13' Step, Master Bdrm 10' Step.

4 Bedroom, 2 Bath Traditional House Plan #7-1320

Plan Purchase Options

Price: $0

Please uncheck first "Purchase MML without any plan package" under MONSTER MATERIAL LIST

Monster Material List
Optional Add-Ons
guaranted-label.png

Best Price Guarantee

*Payment Plans Now
Available Through

img See if you qualify

Floor Plans

What's included?
  • Main Floor

    Reverse

    Clicking the Reverse button does not mean you are ordering your plan reversed. It is for visualization purposes only. You may reverse the plan by ordering under “Optional Add-ons”.

    Main Floor Plan: 7-1320
  • Lower Floor

    Reverse

    Clicking the Reverse button does not mean you are ordering your plan reversed. It is for visualization purposes only. You may reverse the plan by ordering under “Optional Add-ons”.

    Lower Floor Plan: 7-1320

Rear/Alternate Elevations

  • Rear Elevation

    Reverse

    Clicking the Reverse button does not mean you are ordering your plan reversed. It is for visualization purposes only. You may reverse the plan by ordering under “Optional Add-ons”.

    Rear Elevation Plan: 7-1320

House Plan Highlights

ul li This traditional style design has many additional rooms that is great for a big family.li li It includes many separate living areas with a separate den as well.li li The master bedroom suite features dual sinks a large walk-in closet and a washer and dryer.li li On the lower level floor three additional bedrooms are located.li li All three bedrooms share a full bathroom right off of the hallway.li li A large entertaining area including a bar and game room tops of the lower level. li liThe design is completed with a three car garage located in the front.li ul

This floor plan is found in our Traditional house plans section

Full Specs and Features

icon Total Living Area

  • Main floor: 2669
  • Lower Floor: 1715
  • Porches: 280
  • Total Finished Sq. Ft.: 4384

icon Beds/Baths

  • Bedrooms: 4
  • Full Baths: 2
  • Half Baths: 1

icon Garage

  • Garage: 872
  • Garage Stalls: 3

icon Levels

  • 1 story

Dimension

  • Width: 105' 8"
  • Depth: 76' 4"
  • Height: 25' 2"

Roof slope

  • 12:12 (primary)
  • 10:12 (secondary)

Walls (exterior)

  • 2"x6"

Ceiling heights

  • 9' (Main)

Exterior Finish

  • Combination

Roof Framing

  • Truss

Foundation Options

  • Walk-out basement Standard With Plan
  • Crawlspace $415
  • Slab $415

How Much Will It Cost To Build?

Wondering what it will actually cost to bring this home to life? Get an instant, customized estimate based on your chosen plan and location.

GET MY COST TO BUILD ESTIMATE

Modify This Plan

"Need Content here about modifying your plan"

Customize This Plan

House Plan Features

Suited for a down-sloping lot
Island Walk-in pantry Eating bar
Bonus room Family room Hobby / rec-room Great room Mud room Den / office / computer Unfinished/future space
Covered front porch Covered rear porch
Circular / dual staircases Vaulted/Volume/Dramatic ceilings
Workshop Oversized garage (3+)

Reviews

How Much Will It Cost To Build?

Wondering what it will actually cost to bring this home to life? Get an instant, customized estimate based on your chosen plan and location.

GET MY COST TO BUILD ESTIMATE

Modify This Plan

Need changes to the layout or features? Our team can modify any plan to match your vision.

Customize This Plan

House Plan Features

Suited for a down-sloping lot
Island Walk-in pantry Eating bar
Bonus room Family room Hobby / rec-room Great room Mud room Den / office / computer Unfinished/future space
Covered front porch Covered rear porch
Circular / dual staircases Vaulted/Volume/Dramatic ceilings
Workshop Oversized garage (3+)

Need Some Quick Tips Or Advice?

We want to help you design the house of your dreams as best as we can. If you can't find the answers you're looking for here, get in touch with our licensed architect or a designer!