Traditional House Plans - 3 Bed, 3 Bath, 4496 Sq Ft | Plan 6-1258 | Monster House Plans

New plans now available on

dreambook-head-logo See all available plans
SHARE ON

All plans are copyrighted by the individual designer.

Photographs may reflect custom changes that were not included in the original design.

3 Bedroom, 3 Bath Traditional House Plan #6-1258

Plan Purchase Options

Price: $0

Please uncheck first "Purchase MML without any plan package" under MONSTER MATERIAL LIST

Monster Material List
Optional Add-Ons
guaranted-label.png

Best Price Guarantee

*Payment Plans Now
Available Through

img See if you qualify

Floor Plans

What's included?
  • Main Floor

    Reverse

    Clicking the Reverse button does not mean you are ordering your plan reversed. It is for visualization purposes only. You may reverse the plan by ordering under “Optional Add-ons”.

    Main Floor Plan: 6-1258
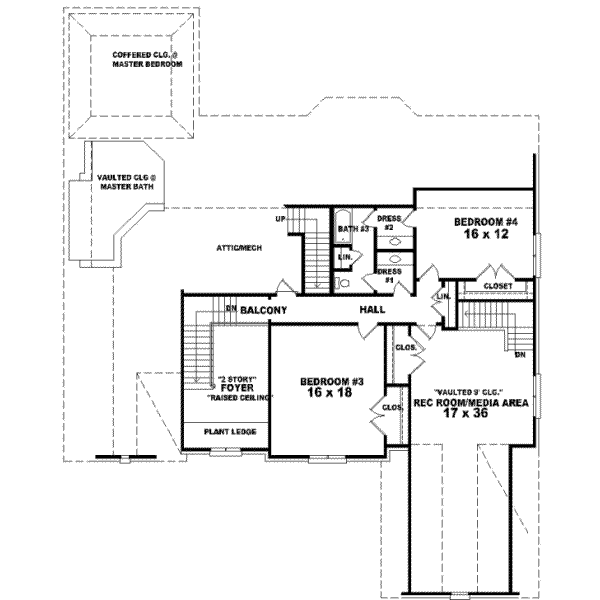
  • Upper/Second Floor

    Reverse

    Clicking the Reverse button does not mean you are ordering your plan reversed. It is for visualization purposes only. You may reverse the plan by ordering under “Optional Add-ons”.

    Upper/Second Floor Plan: 6-1258

House Plan Highlights

Full Specs and Features

icon Total Living Area

  • Main floor: 3015
  • Upper floor: 1481
  • Total Finished Sq. Ft.: 4496

icon Beds/Baths

  • Bedrooms: 3
  • Full Baths: 3
  • Half Baths: 1

icon Garage

  • Garage: 600
  • Garage Stalls: 3

icon Levels

  • 2 stories

Dimension

  • Width: 65' 0"
  • Depth: 81' 0"

Walls (exterior)

  • 2"x4"

Foundation Options

  • Slab Standard With Plan

How Much Will It Cost To Build?

Wondering what it will actually cost to bring this home to life? Get an instant, customized estimate based on your chosen plan and location.

GET MY COST TO BUILD ESTIMATE

Modify This Plan

"Need Content here about modifying your plan"

Customize This Plan

House Plan Features

Suited for corner lots Suited for a back view
Main floor Master Guest suite Teen suite/Jack & Jill bath
Island Walk-in pantry Eating bar Nook / breakfast Hearth room
Bonus room Hobby / rec-room Great room Main Floor laundry Media room Formal dining room Den / office / computer
Circular / dual staircases Vaulted/Volume/Dramatic ceilings
Oversized garage (3+) Side-entry garage

Reviews

How Much Will It Cost To Build?

Wondering what it will actually cost to bring this home to life? Get an instant, customized estimate based on your chosen plan and location.

GET MY COST TO BUILD ESTIMATE

Modify This Plan

Need changes to the layout or features? Our team can modify any plan to match your vision.

Customize This Plan

House Plan Features

Suited for corner lots Suited for a back view
Main floor Master Guest suite Teen suite/Jack & Jill bath
Island Walk-in pantry Eating bar Nook / breakfast Hearth room
Bonus room Hobby / rec-room Great room Main Floor laundry Media room Formal dining room Den / office / computer
Circular / dual staircases Vaulted/Volume/Dramatic ceilings
Oversized garage (3+) Side-entry garage

Need Some Quick Tips Or Advice?

We want to help you design the house of your dreams as best as we can. If you can't find the answers you're looking for here, get in touch with our licensed architect or a designer!