Traditional House Plans - 6 Bed, 6 Bath, 4578 Sq Ft | Plan 7-883 | Monster House Plans

New plans now available on

dreambook-head-logo See all available plans
SHARE ON

All plans are copyrighted by the individual designer.

Photographs may reflect custom changes that were not included in the original design.

Design Comments

Unit A - 2,302sq. ft. Unit B - 2,276 sq. ft.

6 Bedroom, 6 Bath Traditional House Plan #7-883

Plan Purchase Options

Price: $0

Please uncheck first "Purchase MML without any plan package" under MONSTER MATERIAL LIST

Monster Material List
Optional Add-Ons
guaranted-label.png

Best Price Guarantee

*Payment Plans Now
Available Through

img See if you qualify

Floor Plans

What's included?
  • Main Floor

    Reverse

    Clicking the Reverse button does not mean you are ordering your plan reversed. It is for visualization purposes only. You may reverse the plan by ordering under “Optional Add-ons”.

    Main Floor Plan: 7-883
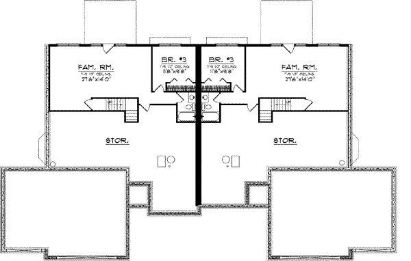
  • Lower Floor

    Reverse

    Clicking the Reverse button does not mean you are ordering your plan reversed. It is for visualization purposes only. You may reverse the plan by ordering under “Optional Add-ons”.

    Lower Floor Plan: 7-883

Rear/Alternate Elevations

  • Rear Elevation

    Reverse

    Clicking the Reverse button does not mean you are ordering your plan reversed. It is for visualization purposes only. You may reverse the plan by ordering under “Optional Add-ons”.

    Rear Elevation Plan: 7-883

House Plan Highlights

Shuttered windows enhance the front of this traditional duplex giving it an added charm that is sure to please. Two nearly identical units are found in this duplex and each has extra charm that is sure to attract attention. A bay window in the nook allows plenty of light into the attached kitchen for cozy entertaining. The formal dining and great rooms lie beyond the kitchennook area and include ten-foot ceilings and a fireplace with built-in cabinets. The master suite has a private bath while the second bedroom has access to the main floor bath off the hallway. The lower level of each unit is finished to include a spacious family room a third bedroom and a full bath. Finally a three-stall garage with plenty of storage completes each unit.

This floor plan is found in our Traditional house plans section

Full Specs and Features

icon Total Living Area

  • Main floor: 3206
  • Lower Floor: 1372
  • Total Finished Sq. Ft.: 4578

icon Beds/Baths

  • Bedrooms: 6
  • Full Baths: 6

icon Garage

  • Garage: 1566
  • Garage Stalls: 6

icon Levels

  • 1 story

Dimension

  • Width: 106' 4"
  • Depth: 59' 8"
  • Height: 20' 10"

Roof slope

  • 8:12 (primary)
  • 6:12 (secondary)

Walls (exterior)

  • 2"x6"

Ceiling heights

  • 9' (Main)

Foundation Options

  • Walk-out basement Standard With Plan
  • Crawlspace $695
  • Slab $695

How Much Will It Cost To Build?

Wondering what it will actually cost to bring this home to life? Get an instant, customized estimate based on your chosen plan and location.

GET MY COST TO BUILD ESTIMATE

Modify This Plan

"Need Content here about modifying your plan"

Customize This Plan

House Plan Features

Suited for a side-sloping lot Suited for a down-sloping lot Suited for a narrow lot
Island
Great room Open concept floor plan No formal living/dining
Covered rear porch Screened porch/sunroom
Vaulted/Volume/Dramatic ceilings

Reviews

How Much Will It Cost To Build?

Wondering what it will actually cost to bring this home to life? Get an instant, customized estimate based on your chosen plan and location.

GET MY COST TO BUILD ESTIMATE

Modify This Plan

Need changes to the layout or features? Our team can modify any plan to match your vision.

Customize This Plan

House Plan Features

Suited for a side-sloping lot Suited for a down-sloping lot Suited for a narrow lot
Island
Great room Open concept floor plan No formal living/dining
Covered rear porch Screened porch/sunroom
Vaulted/Volume/Dramatic ceilings

Need Some Quick Tips Or Advice?

We want to help you design the house of your dreams as best as we can. If you can't find the answers you're looking for here, get in touch with our licensed architect or a designer!