Traditional House Plans - 4 Bed, 4 Bath, 5217 Sq Ft | Plan 7-875 | Monster House Plans

New plans now available on

dreambook-head-logo See all available plans
SHARE ON

All plans are copyrighted by the individual designer.

Photographs may reflect custom changes that were not included in the original design.

Design Comments

Unit A - 2,696sq. ft. Unit B - 2,521 sq. ft.

4 Bedroom, 4 Bath Traditional House Plan #7-875

Plan Purchase Options

Price: $0

Please uncheck first "Purchase MML without any plan package" under MONSTER MATERIAL LIST

Monster Material List
Optional Add-Ons
guaranted-label.png

Best Price Guarantee

*Payment Plans Now
Available Through

img See if you qualify

Floor Plans

What's included?
  • Main Floor

    Reverse

    Clicking the Reverse button does not mean you are ordering your plan reversed. It is for visualization purposes only. You may reverse the plan by ordering under “Optional Add-ons”.

    Main Floor Plan: 7-875
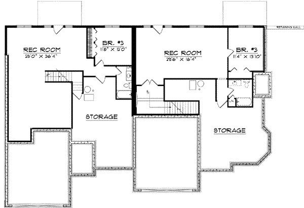
  • Lower Floor

    Reverse

    Clicking the Reverse button does not mean you are ordering your plan reversed. It is for visualization purposes only. You may reverse the plan by ordering under “Optional Add-ons”.

    Lower Floor Plan: 7-875

Rear/Alternate Elevations

  • Rear Elevation

    Reverse

    Clicking the Reverse button does not mean you are ordering your plan reversed. It is for visualization purposes only. You may reverse the plan by ordering under “Optional Add-ons”.

    Rear Elevation Plan: 7-875

House Plan Highlights

Traditional and Country French details blend together to create a unique facade on this duplex to compliment any neighborhood. With two completely different units this duplex offers variety for many buyers. Unit A includes a bay window in the kitchen nook area a breakfast bar that flows into the formal dining area and a fireplace in the great room. Its master suite includes a spacious walk-in closet and private bath while the second bedroom accesses the main bath off the hall. Unit B features a unique dining room with windows on three sides just off the kitchen. Arched openings look from this area into the great room where you'll also find a fireplace and access to the back deck. The master suite also features a bay window private bath and walk-in closet. A second bedroom and a den complete the main level of this unit. Both lower levels are finished to include a large recreation room a third bedroom and a full bath.

This floor plan is found in our Traditional house plans section

Full Specs and Features

icon Total Living Area

  • Main floor: 3255
  • Lower Floor: 1962
  • Total Finished Sq. Ft.: 5217

icon Beds/Baths

  • Bedrooms: 4
  • Full Baths: 4

icon Garage

  • Garage: 902
  • Garage Stalls: 4

icon Levels

  • 1 story

Dimension

  • Width: 87' 8"
  • Depth: 59' 8"
  • Height: 26' 8"

Roof slope

  • 8:12 (primary)
  • 8:12 (secondary)

Walls (exterior)

  • 2"x6"

Ceiling heights

  • 9' (Main)

Foundation Options

  • Walk-out basement Standard With Plan
  • Crawlspace $695
  • Slab $695

How Much Will It Cost To Build?

Wondering what it will actually cost to bring this home to life? Get an instant, customized estimate based on your chosen plan and location.

GET MY COST TO BUILD ESTIMATE

Modify This Plan

"Need Content here about modifying your plan"

Customize This Plan

House Plan Features

Suited for a narrow lot
Eating bar
Great room Open concept floor plan Mud room No formal living/dining
Covered front porch Covered rear porch
Oversized garage (3+)

Reviews

How Much Will It Cost To Build?

Wondering what it will actually cost to bring this home to life? Get an instant, customized estimate based on your chosen plan and location.

GET MY COST TO BUILD ESTIMATE

Modify This Plan

Need changes to the layout or features? Our team can modify any plan to match your vision.

Customize This Plan

House Plan Features

Suited for a narrow lot
Eating bar
Great room Open concept floor plan Mud room No formal living/dining
Covered front porch Covered rear porch
Oversized garage (3+)

Need Some Quick Tips Or Advice?

We want to help you design the house of your dreams as best as we can. If you can't find the answers you're looking for here, get in touch with our licensed architect or a designer!