Traditional House Plans - 8 Bed, 8 Bath, 6014 Sq Ft | Plan 7-841 | Monster House Plans

New plans now available on

dreambook-head-logo See all available plans
SHARE ON

All plans are copyrighted by the individual designer.

Photographs may reflect custom changes that were not included in the original design.

Design Comments

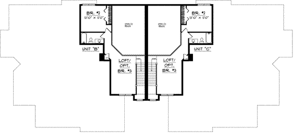
Units A & D - 1,290 sq ft Units B & C - 1,717 sq ft

8 Bedroom, 8 Bath Traditional House Plan #7-841

Plan Purchase Options

Price: $0

Please uncheck first "Purchase MML without any plan package" under MONSTER MATERIAL LIST

Monster Material List
Optional Add-Ons
guaranted-label.png

Best Price Guarantee

*Payment Plans Now
Available Through

img See if you qualify

Floor Plans

What's included?
  • Main Floor

    Reverse

    Clicking the Reverse button does not mean you are ordering your plan reversed. It is for visualization purposes only. You may reverse the plan by ordering under “Optional Add-ons”.

    Main Floor Plan: 7-841
  • Upper/Second Floor

    Reverse

    Clicking the Reverse button does not mean you are ordering your plan reversed. It is for visualization purposes only. You may reverse the plan by ordering under “Optional Add-ons”.

    Upper/Second Floor Plan: 7-841

Rear/Alternate Elevations

  • Rear Elevation

    Reverse

    Clicking the Reverse button does not mean you are ordering your plan reversed. It is for visualization purposes only. You may reverse the plan by ordering under “Optional Add-ons”.

    Rear Elevation Plan: 7-841

House Plan Highlights

This prairie style multi-unit home features two two-story units and two ranch units all in 6014 square feet. The two outside units are two-bedroom ranches with open floor plans that combine the kitchen living and dining rooms into a living space that maximizes square footage. The master bedroom of the ranch units feature a spacious bathroom and walk-in closet and the second bedroom can be found to the front of the home. The two-story units feature a main floor master with a second bedroom and loftden area upstairs. You'll also be impressed with the two-story ceiling in the living and dining rooms that creates volume for the living area of these units. Each unit has a two-stall front load-garage and a large deck off the back of the home.

This floor plan is found in our Traditional house plans section

Full Specs and Features

icon Total Living Area

  • Main floor: 4922
  • Upper floor: 1092
  • Total Finished Sq. Ft.: 6014

icon Beds/Baths

  • Bedrooms: 8
  • Full Baths: 8
  • Half Baths: 2

icon Garage

  • Garage: 1728
  • Garage Stalls: 8

icon Levels

  • 2 stories

Dimension

  • Width: 133' 0"
  • Depth: 60' 0"
  • Height: 29' 4"

Roof slope

  • 6:12 (primary)

Walls (exterior)

  • 2"x6"

Ceiling heights

  • 9' (Main)
    8' (Upper)

Foundation Options

  • Walk-out basement Standard With Plan
  • Crawlspace $695
  • Slab $695

How Much Will It Cost To Build?

Wondering what it will actually cost to bring this home to life? Get an instant, customized estimate based on your chosen plan and location.

GET MY COST TO BUILD ESTIMATE

Modify This Plan

"Need Content here about modifying your plan"

Customize This Plan

House Plan Features

Suited for a narrow lot
Main floor Master
Island
Family room Main Floor laundry Open concept floor plan No formal living/dining
Vaulted/Volume/Dramatic ceilings

Reviews

How Much Will It Cost To Build?

Wondering what it will actually cost to bring this home to life? Get an instant, customized estimate based on your chosen plan and location.

GET MY COST TO BUILD ESTIMATE

Modify This Plan

Need changes to the layout or features? Our team can modify any plan to match your vision.

Customize This Plan

House Plan Features

Suited for a narrow lot
Main floor Master
Island
Family room Main Floor laundry Open concept floor plan No formal living/dining
Vaulted/Volume/Dramatic ceilings

Need Some Quick Tips Or Advice?

We want to help you design the house of your dreams as best as we can. If you can't find the answers you're looking for here, get in touch with our licensed architect or a designer!