Traditional House Plans - 8 Bed, 6 Bath, 6044 Sq Ft | Plan 12-765 | Monster House Plans

New plans now available on

dreambook-head-logo See all available plans
SHARE ON

All plans are copyrighted by the individual designer.

Photographs may reflect custom changes that were not included in the original design.

8 Bedroom, 6 Bath Traditional House Plan #12-765

Plan Purchase Options

Price: $0

Please uncheck first "Purchase MML without any plan package" under MONSTER MATERIAL LIST

Monster Material List
Optional Add-Ons
guaranted-label.png

Best Price Guarantee

*Payment Plans Now
Available Through

img See if you qualify

Floor Plans

What's included?
  • Main Floor

    Reverse

    Clicking the Reverse button does not mean you are ordering your plan reversed. It is for visualization purposes only. You may reverse the plan by ordering under “Optional Add-ons”.

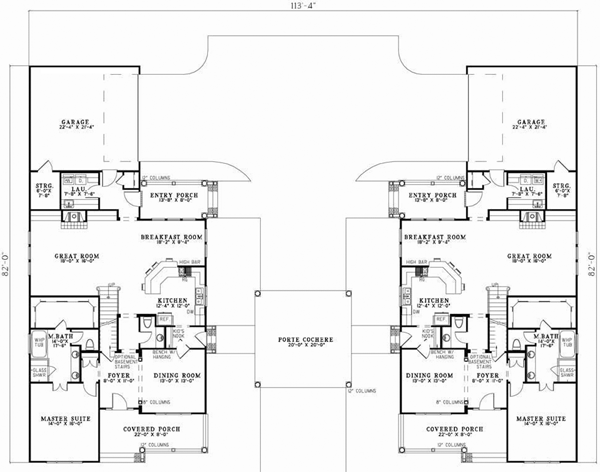
    Main Floor Plan: 12-765
  • Upper/Second Floor

    Reverse

    Clicking the Reverse button does not mean you are ordering your plan reversed. It is for visualization purposes only. You may reverse the plan by ordering under “Optional Add-ons”.

    Upper/Second Floor Plan: 12-765

House Plan Highlights

There's room to do a lot of living without taking up a lot of space in this traditional dual family plan from Nelson Design Group. The charming Porte Cochere is a focal point of this mirrored twin design. Other exterior highlights include a covered front porch and an entry porch in the rear of the home. Inside features a main floor master suite with a giant walk closet and master bath with both a separate whirlpool bath and shower. The stairs from the foyer leads to three more bedrooms, a home theater/game room, and a unique bonus room.

This floor plan is found in our Traditional house plans section

Full Specs and Features

icon Total Living Area

  • Main floor: 3592
  • Upper floor: 2452
  • Porches: 351
  • Total Finished Sq. Ft.: 6044

icon Beds/Baths

  • Bedrooms: 8
  • Full Baths: 6
  • Half Baths: 2

icon Garage

  • Garage: 549
  • Garage Stalls: 4

icon Levels

  • 2 stories

Dimension

  • Width: 113' 4"
  • Depth: 82' 0"
  • Height: 34' 4"

Roof slope

  • 12:12 (primary)

Walls (exterior)

  • 2"x4"

Ceiling heights

  • 9' (Main)
    8' (Upper)

Foundation Options

  • Basement $299
  • Daylight basement $399
  • Crawlspace Standard With Plan
  • Slab Standard With Plan

How Much Will It Cost To Build?

Wondering what it will actually cost to bring this home to life? Get an instant, customized estimate based on your chosen plan and location.

GET MY COST TO BUILD ESTIMATE

Modify This Plan

"Need Content here about modifying your plan"

Customize This Plan

House Plan Features

Main floor Master Teen suite/Jack & Jill bath
Eating bar Nook / breakfast
Bonus room Hobby / rec-room Great room Main Floor laundry Media room Open concept floor plan Formal dining room Unfinished/future space
Covered front porch Covered rear porch Porte Cochere
Vaulted/Volume/Dramatic ceilings
Rear garage Side-entry garage

Reviews

How Much Will It Cost To Build?

Wondering what it will actually cost to bring this home to life? Get an instant, customized estimate based on your chosen plan and location.

GET MY COST TO BUILD ESTIMATE

Modify This Plan

Need changes to the layout or features? Our team can modify any plan to match your vision.

Customize This Plan

House Plan Features

Main floor Master Teen suite/Jack & Jill bath
Eating bar Nook / breakfast
Bonus room Hobby / rec-room Great room Main Floor laundry Media room Open concept floor plan Formal dining room Unfinished/future space
Covered front porch Covered rear porch Porte Cochere
Vaulted/Volume/Dramatic ceilings
Rear garage Side-entry garage

Need Some Quick Tips Or Advice?

We want to help you design the house of your dreams as best as we can. If you can't find the answers you're looking for here, get in touch with our licensed architect or a designer!