Tudor House Plans - 4 Bed, 3 Bath, 2541 Sq Ft | Plan 77-340 | Monster House Plans

New plans now available on

dreambook-head-logo See all available plans
SHARE ON

All plans are copyrighted by the individual designer.

Photographs may reflect custom changes that were not included in the original design.

4 Bedroom, 3 Bath Tudor House Plan #77-340

Plan Purchase Options

Price: $0

Please uncheck first "Purchase MML without any plan package" under MONSTER MATERIAL LIST

Monster Material List
Optional Add-Ons
guaranted-label.png

Best Price Guarantee

*Payment Plans Now
Available Through

img See if you qualify

Floor Plans

What's included?
  • Main Floor

    Reverse

    Clicking the Reverse button does not mean you are ordering your plan reversed. It is for visualization purposes only. You may reverse the plan by ordering under “Optional Add-ons”.

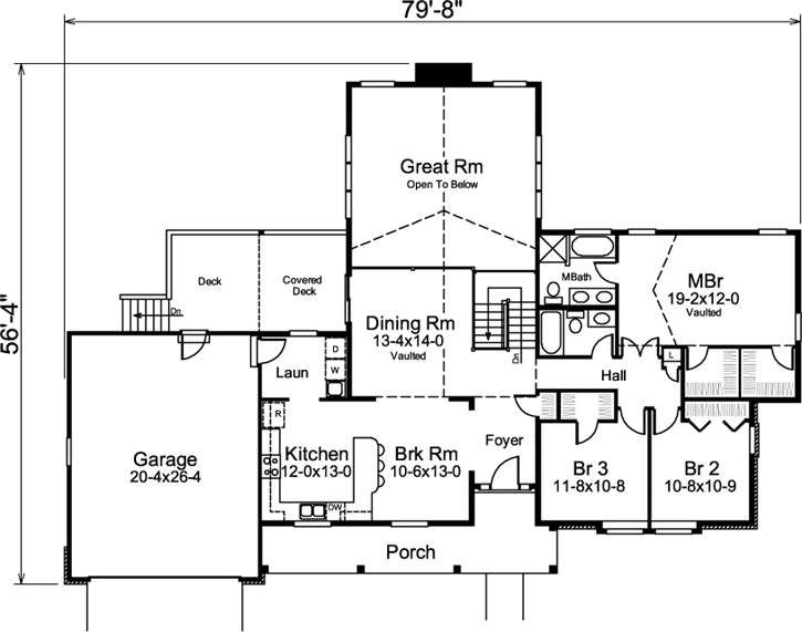
    Main Floor Plan: 77-340
  • Lower Floor

    Reverse

    Clicking the Reverse button does not mean you are ordering your plan reversed. It is for visualization purposes only. You may reverse the plan by ordering under “Optional Add-ons”.

    Lower Floor Plan: 77-340

Rear/Alternate Elevations

  • Rear Elevation

    Reverse

    Clicking the Reverse button does not mean you are ordering your plan reversed. It is for visualization purposes only. You may reverse the plan by ordering under “Optional Add-ons”.

    Rear Elevation Plan: 77-340

House Plan Highlights

Magnificent Great Room In A Classic Tudor2541 total square feet of living areaSpecial featuresStucco stone wood trim and decorative lightning rods atop multiple gables combine to form this sophisticated exterior with Old English details The immense vaulted living areas with a handcrafted staircase and upper dining overlook can be accessed from the large porch that leads to the foyer A two-story vaulted ceiling tall stone fireplace game room glass doors to patio multiple windows kitchen and bar are featured in the lower level great room The bedroom wing has two secondary bedrooms with bath and offers a vaulted master bedroom with lavish bath two walk-in closets and double entry doors 4 bedrooms 3 baths 2-car garageWalk-out basement foundation1618 square feet on the first floor and 923 square feet on the lower level

This floor plan is found in our Tudor house plans section

Full Specs and Features

icon Total Living Area

  • Main floor: 1618
  • Lower Floor: 923
  • Basement: 572
  • Porches: 294
  • Total Finished Sq. Ft.: 2541

icon Beds/Baths

  • Bedrooms: 4
  • Full Baths: 3

icon Garage

  • Garage: 535
  • Garage Stalls: 2

icon Levels

  • 1 story

Dimension

  • Width: 79' 8"
  • Depth: 56' 4"
  • Height: 26' 0"

Roof slope

  • 10:12 (primary)
  • 12:12 (secondary)

Walls (exterior)

  • 2"x6"

Ceiling heights

  • 9' (Main)

Foundation Options

  • Walk-out basement Standard With Plan

How Much Will It Cost To Build?

Wondering what it will actually cost to bring this home to life? Get an instant, customized estimate based on your chosen plan and location.

GET MY COST TO BUILD ESTIMATE

Modify This Plan

"Need Content here about modifying your plan"

Customize This Plan

House Plan Features

Suited for a down-sloping lot
Eating bar Nook / breakfast
Great room Media room Unfinished/future space
Covered front porch Covered rear porch
Vaulted/Volume/Dramatic ceilings Photos Available

Reviews

How Much Will It Cost To Build?

Wondering what it will actually cost to bring this home to life? Get an instant, customized estimate based on your chosen plan and location.

GET MY COST TO BUILD ESTIMATE

Modify This Plan

Need changes to the layout or features? Our team can modify any plan to match your vision.

Customize This Plan

House Plan Features

Suited for a down-sloping lot
Eating bar Nook / breakfast
Great room Media room Unfinished/future space
Covered front porch Covered rear porch
Vaulted/Volume/Dramatic ceilings Photos Available

Need Some Quick Tips Or Advice?

We want to help you design the house of your dreams as best as we can. If you can't find the answers you're looking for here, get in touch with our licensed architect or a designer!