Tudor House Plans - 4 Bed, 4 Bath, 3214 Sq Ft | Plan 85-238 | Monster House Plans

New plans now available on

dreambook-head-logo See all available plans
SHARE ON

All plans are copyrighted by the individual designer.

Photographs may reflect custom changes that were not included in the original design.

Design Comments

Plans include a multiple build license. Additional foundations available for $175

4 Bedroom, 4 Bath Tudor House Plan #85-238

Plan Purchase Options

Price: $0

Please uncheck first "Purchase MML without any plan package" under MONSTER MATERIAL LIST

Monster Material List
Optional Add-Ons
guaranted-label.png

Best Price Guarantee

*Payment Plans Now
Available Through

img See if you qualify

Floor Plans

What's included?
  • Main Floor

    Reverse

    Clicking the Reverse button does not mean you are ordering your plan reversed. It is for visualization purposes only. You may reverse the plan by ordering under “Optional Add-ons”.

    Main Floor Plan: 85-238
  • Upper/Second Floor

    Reverse

    Clicking the Reverse button does not mean you are ordering your plan reversed. It is for visualization purposes only. You may reverse the plan by ordering under “Optional Add-ons”.

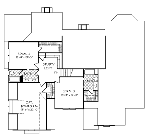
    Upper/Second Floor Plan: 85-238

House Plan Highlights

Arched windows and a brick exterior make the façade of this classic home memorable. Copper detail, window boxes and craftsman gable ends give it personality. A vaulted family room and separate keeping room – both with fireplaces – provide cozy rooms to visit. The large kitchen is adorned with a curved island and breakfast area looking onto the covered back porch and extended deck. A main level master bedroom is found across the home, and comes with a lovely en suite and generous walk-in closet. Upstairs, a study loft with a built-in desk area is waiting to be used. Two additional bedrooms, each with their own full bath, are located on either side of the hall. An optional bonus room is available on this floor as well for a fourth bedroom or possible game area.

This floor plan is found in our Tudor house plans section

Full Specs and Features

icon Total Living Area

  • Main floor: 2415
  • Upper floor: 799
  • Basement: 2415
  • Bonus: 368
  • Total Finished Sq. Ft.: 3214

icon Beds/Baths

  • Bedrooms: 4
  • Full Baths: 4
  • Half Baths: 1

icon Garage

  • Garage: 485
  • Garage Stalls: 2

icon Levels

  • 2 stories

Dimension

  • Width: 66' 0"
  • Depth: 59' 4"
  • Height: 30' 0"

Roof slope

  • 10:12 (primary)

Walls (exterior)

  • 2"x4"

Ceiling heights

  • 9' (Main)
    9' (Upper)

Foundation Options

  • Walk-out basement Standard With Plan
  • Crawlspace Standard With Plan
  • Slab Standard With Plan

How Much Will It Cost To Build?

Wondering what it will actually cost to bring this home to life? Get an instant, customized estimate based on your chosen plan and location.

GET MY COST TO BUILD ESTIMATE

Modify This Plan

"Need Content here about modifying your plan"

Customize This Plan

House Plan Features

Suited for corner lots
Main floor Master Guest suite Teen suite/Jack & Jill bath
Island Walk-in pantry Eating bar Nook / breakfast Hearth room
Bonus room Family room Main Floor laundry Loft / balcony Formal dining room Den / office / computer Unfinished/future space
Vaulted/Volume/Dramatic ceilings

Reviews

How Much Will It Cost To Build?

Wondering what it will actually cost to bring this home to life? Get an instant, customized estimate based on your chosen plan and location.

GET MY COST TO BUILD ESTIMATE

Modify This Plan

Need changes to the layout or features? Our team can modify any plan to match your vision.

Customize This Plan

House Plan Features

Suited for corner lots
Main floor Master Guest suite Teen suite/Jack & Jill bath
Island Walk-in pantry Eating bar Nook / breakfast Hearth room
Bonus room Family room Main Floor laundry Loft / balcony Formal dining room Den / office / computer Unfinished/future space
Vaulted/Volume/Dramatic ceilings

Need Some Quick Tips Or Advice?

We want to help you design the house of your dreams as best as we can. If you can't find the answers you're looking for here, get in touch with our licensed architect or a designer!