Tuscan House Plans - 3 Bed, 2 Bath, 2369 Sq Ft | Plan 12-875 | Monster House Plans

New plans now available on

dreambook-head-logo See all available plans
SHARE ON

All plans are copyrighted by the individual designer.

Photographs may reflect custom changes that were not included in the original design.

3 Bedroom, 2 Bath Tuscan House Plan #12-875

Plan Purchase Options

Price: $0

Please uncheck first "Purchase MML without any plan package" under MONSTER MATERIAL LIST

Monster Material List
Optional Add-Ons
guaranted-label.png

Best Price Guarantee

*Payment Plans Now
Available Through

img See if you qualify

Floor Plans

What's included?
  • Main Floor

    Reverse

    Clicking the Reverse button does not mean you are ordering your plan reversed. It is for visualization purposes only. You may reverse the plan by ordering under “Optional Add-ons”.

    Main Floor Plan: 12-875
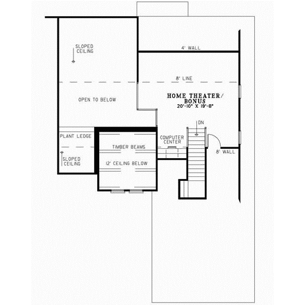
  • Upper/Second Floor

    Reverse

    Clicking the Reverse button does not mean you are ordering your plan reversed. It is for visualization purposes only. You may reverse the plan by ordering under “Optional Add-ons”.

    Upper/Second Floor Plan: 12-875

House Plan Highlights

This elegant design is named after my grandmother Vittoria from Italy. She was the most wonderful lady IпїЅve ever known. We visited her each summer and she would take me to town and tell me stories of how she and my Grandpa met at the farmerпїЅs market. He farmed and sold vegetables with his family and my grandmother said that their tomatoes were always the sweetest...I guess grandpa thought she was the best catch too.

This floor plan is found in our Tuscan house plans section

Full Specs and Features

icon Total Living Area

  • Main floor: 1963
  • Upper floor: 406
  • Porches: 214
  • Total Finished Sq. Ft.: 2369

icon Beds/Baths

  • Bedrooms: 3
  • Full Baths: 2

icon Garage

  • Garage: 496
  • Garage Stalls: 2

icon Levels

  • 2 stories

Dimension

  • Width: 53' 0"
  • Depth: 73' 6"
  • Height: 24' 9"

Roof slope

  • 8:12 (primary)

Walls (exterior)

  • 2"x4"

Ceiling heights

  • 10' (Main)
    8' (Upper)

Foundation Options

  • Basement $299
  • Daylight basement $399
  • Crawlspace Standard With Plan
  • Slab Standard With Plan

How Much Will It Cost To Build?

Wondering what it will actually cost to bring this home to life? Get an instant, customized estimate based on your chosen plan and location.

GET MY COST TO BUILD ESTIMATE

Modify This Plan

"Need Content here about modifying your plan"

Customize This Plan

House Plan Features

Suited for a back view
Main floor Master Split bedrooms
Eating bar Nook / breakfast
Bonus room Great room Main Floor laundry Media room Open concept floor plan No formal living/dining
Covered rear porch Grilling porch/outdoor kitchen
Vaulted/Volume/Dramatic ceilings
Side-entry garage

Reviews

How Much Will It Cost To Build?

Wondering what it will actually cost to bring this home to life? Get an instant, customized estimate based on your chosen plan and location.

GET MY COST TO BUILD ESTIMATE

Modify This Plan

Need changes to the layout or features? Our team can modify any plan to match your vision.

Customize This Plan

House Plan Features

Suited for a back view
Main floor Master Split bedrooms
Eating bar Nook / breakfast
Bonus room Great room Main Floor laundry Media room Open concept floor plan No formal living/dining
Covered rear porch Grilling porch/outdoor kitchen
Vaulted/Volume/Dramatic ceilings
Side-entry garage

Need Some Quick Tips Or Advice?

We want to help you design the house of your dreams as best as we can. If you can't find the answers you're looking for here, get in touch with our licensed architect or a designer!