Tuscan House Plans - 2 Bed, 2 Bath, 3214 Sq Ft | Plan 7-1120 | Monster House Plans

New plans now available on

dreambook-head-logo See all available plans
SHARE ON

All plans are copyrighted by the individual designer.

Photographs may reflect custom changes that were not included in the original design.

Design Comments

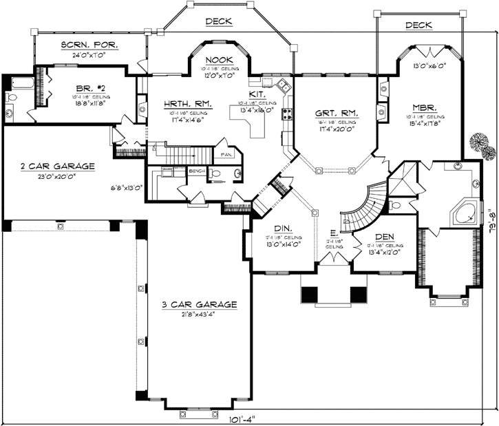
Din/Den 12', Grt Rm 16'

2 Bedroom, 2 Bath Tuscan House Plan #7-1120

Plan Purchase Options

Price: $0

Please uncheck first "Purchase MML without any plan package" under MONSTER MATERIAL LIST

Monster Material List
Optional Add-Ons
guaranted-label.png

Best Price Guarantee

*Payment Plans Now
Available Through

img See if you qualify

Floor Plans

What's included?
  • Main Floor

    Reverse

    Clicking the Reverse button does not mean you are ordering your plan reversed. It is for visualization purposes only. You may reverse the plan by ordering under “Optional Add-ons”.

    Main Floor Plan: 7-1120

Rear/Alternate Elevations

  • Rear Elevation

    Reverse

    Clicking the Reverse button does not mean you are ordering your plan reversed. It is for visualization purposes only. You may reverse the plan by ordering under “Optional Add-ons”.

    Rear Elevation Plan: 7-1120

House Plan Highlights

Tuscan in design this ranch features a traditional plan with extra details that are sure to please beginning with a curved staircase leading to the second floor just to the right of the entry. The great room directly ahead and the dining room to the left of the entry are both defined by gracious columns that carry you into the main living area of the home. The kitchen hearth room and nook are combined into an open floor plan concept to create a large daily living area while still having access to the great room. A spacious master suite includes double French doors that lead to a private deck Jacuzzi tub and spacious walk-in closet. A second bedroom is tucked behind the garage and has a private bath. A five-stall split-load garage provides ample parking and storage space.

This floor plan is found in our Tuscan house plans section

Full Specs and Features

icon Total Living Area

  • Main floor: 3214
  • Porches: 275
  • Total Finished Sq. Ft.: 3214

icon Beds/Baths

  • Bedrooms: 2
  • Full Baths: 2
  • Half Baths: 1

icon Garage

  • Garage: 1495
  • Garage Stalls: 5

icon Levels

  • 1 story

Dimension

  • Width: 101' 4"
  • Depth: 79' 8"
  • Height: 23' 0"

Roof slope

  • 6:12 (primary)
  • 6:12 (secondary)

Walls (exterior)

  • 2"x6"

Ceiling heights

  • 10' (Main)

Foundation Options

  • Basement Standard With Plan
  • Crawlspace $415
  • Slab $415

How Much Will It Cost To Build?

Wondering what it will actually cost to bring this home to life? Get an instant, customized estimate based on your chosen plan and location.

GET MY COST TO BUILD ESTIMATE

Modify This Plan

"Need Content here about modifying your plan"

Customize This Plan

House Plan Features

Suited for a back view Suited for a down-sloping lot
Split bedrooms
Island Walk-in pantry Eating bar
Family room Hobby / rec-room Open concept floor plan No formal living/dining Den / office / computer
Covered front porch Covered rear porch
Vaulted/Volume/Dramatic ceilings
Oversized garage (3+)

Reviews

How Much Will It Cost To Build?

Wondering what it will actually cost to bring this home to life? Get an instant, customized estimate based on your chosen plan and location.

GET MY COST TO BUILD ESTIMATE

Modify This Plan

Need changes to the layout or features? Our team can modify any plan to match your vision.

Customize This Plan

House Plan Features

Suited for a back view Suited for a down-sloping lot
Split bedrooms
Island Walk-in pantry Eating bar
Family room Hobby / rec-room Open concept floor plan No formal living/dining Den / office / computer
Covered front porch Covered rear porch
Vaulted/Volume/Dramatic ceilings
Oversized garage (3+)

Need Some Quick Tips Or Advice?

We want to help you design the house of your dreams as best as we can. If you can't find the answers you're looking for here, get in touch with our licensed architect or a designer!