Contemporary House Plans - 4 Bed, 3 Bath, 4012 Sq Ft | Plan 31-138 | Monster House Plans

New plans now available on

dreambook-head-logo See all available plans
SHARE ON

All plans are copyrighted by the individual designer.

Photographs may reflect custom changes that were not included in the original design.

Design Comments

Ceiling Heights other than standard 8':
Main Floor: 9'-0"
Great Room & Dining: 15'-0" at ridge
Basement: 8'-9"

4 Bedroom, 3 Bath Contemporary House Plan #31-138

Plan Purchase Options

Price: $0

Please uncheck first "Purchase MML without any plan package" under MONSTER MATERIAL LIST

Monster Material List
Optional Add-Ons
guaranted-label.png

Best Price Guarantee

*Payment Plans Now
Available Through

img See if you qualify

Floor Plans

What's included?
  • Main Floor

    Reverse

    Clicking the Reverse button does not mean you are ordering your plan reversed. It is for visualization purposes only. You may reverse the plan by ordering under “Optional Add-ons”.

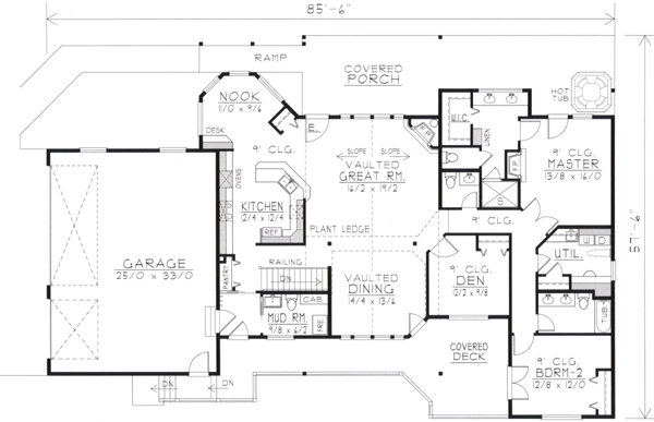
    Main Floor Plan: 31-138
  • Lower Floor

    Reverse

    Clicking the Reverse button does not mean you are ordering your plan reversed. It is for visualization purposes only. You may reverse the plan by ordering under “Optional Add-ons”.

    Lower Floor Plan: 31-138

Rear/Alternate Elevations

  • Rear Elevation

    Reverse

    Clicking the Reverse button does not mean you are ordering your plan reversed. It is for visualization purposes only. You may reverse the plan by ordering under “Optional Add-ons”.

    Rear Elevation Plan: 31-138

House Plan Highlights

- Perfect for a country setting this attractive design is sure to please with its covered Decks and Porch.- Vaulted ceilings adorn the Great Room and Dining Room separated by columns and a plant ledge.- Fantastic Kitchen with an eating bar double ovens and a large pantry.- A Half Bath and Mud Room are located off the Garage for convenience. - The Laundry facilities are located next to the Master Bedroom and include a sewing counter and ironing board.- The Master Bedroom features a fireplace walk-in closet double sinks linen cabinet and a large mud-set shower.- The Basement provides a huge Family Room 2 Bedrooms a Full Bath and a ton of Storage and a concrete Vault in addition to its 8'-9 high ceilings.

This floor plan is found in our Contemporary house plans section

Full Specs and Features

icon Total Living Area

  • Main floor: 2302
  • Lower Floor: 1710
  • Basement: 592
  • Porches: 869
  • Total Finished Sq. Ft.: 4012

icon Beds/Baths

  • Bedrooms: 4
  • Full Baths: 3
  • Half Baths: 1

icon Garage

  • Garage: 508
  • Garage Stalls: 3

icon Levels

  • 1 story

Dimension

  • Width: 85' 6"
  • Depth: 57' 6"
  • Height: 24' 8"

Roof slope

  • 6:12 (primary)
  • 12:12 (secondary)

Walls (exterior)

  • 2"x6"

Ceiling heights

  • 9' (Main)

Foundation Options

  • Basement $275
  • Walk-out basement Standard With Plan
  • Crawlspace $275
  • Slab $275

How Much Will It Cost To Build?

Wondering what it will actually cost to bring this home to life? Get an instant, customized estimate based on your chosen plan and location.

GET MY COST TO BUILD ESTIMATE

Modify This Plan

"Need Content here about modifying your plan"

Customize This Plan

House Plan Features

Suited for corner lots Suited for a back view Suited for a side-sloping lot Suited for a down-sloping lot
Eating bar Nook / breakfast
Family room Great room Mud room Formal dining room Den / office / computer
Covered front porch Covered rear porch
Vaulted/Volume/Dramatic ceilings
Oversized garage (3+) Side-entry garage

Reviews

How Much Will It Cost To Build?

Wondering what it will actually cost to bring this home to life? Get an instant, customized estimate based on your chosen plan and location.

GET MY COST TO BUILD ESTIMATE

Modify This Plan

Need changes to the layout or features? Our team can modify any plan to match your vision.

Customize This Plan

House Plan Features

Suited for corner lots Suited for a back view Suited for a side-sloping lot Suited for a down-sloping lot
Eating bar Nook / breakfast
Family room Great room Mud room Formal dining room Den / office / computer
Covered front porch Covered rear porch
Vaulted/Volume/Dramatic ceilings
Oversized garage (3+) Side-entry garage

Need Some Quick Tips Or Advice?

We want to help you design the house of your dreams as best as we can. If you can't find the answers you're looking for here, get in touch with our licensed architect or a designer!