Cottage House Plans - 3 Bed, 3 Bath, 3020 Sq Ft | Plan 88-102 | Monster House Plans

New plans now available on

dreambook-head-logo See all available plans
SHARE ON

All plans are copyrighted by the individual designer.

Photographs may reflect custom changes that were not included in the original design.

Design Comments

Additional fees apply when building in Washington State. Please contact us for details. Please note: An electrical schematic is not included.

3 Bedroom, 3 Bath Cottage House Plan #88-102

Plan Purchase Options

Price: $0

Please uncheck first "Purchase MML without any plan package" under MONSTER MATERIAL LIST

Monster Material List
Optional Add-Ons
guaranted-label.png

Best Price Guarantee

*Payment Plans Now
Available Through

img See if you qualify

Floor Plans

What's included?
  • Main Floor

    Reverse

    Clicking the Reverse button does not mean you are ordering your plan reversed. It is for visualization purposes only. You may reverse the plan by ordering under “Optional Add-ons”.

    Main Floor Plan: 88-102
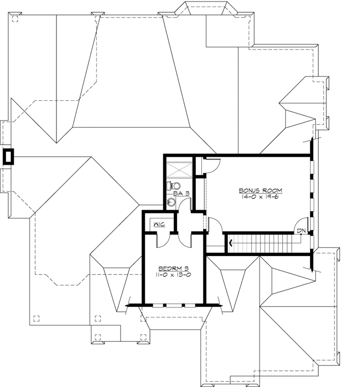
  • Upper/Second Floor

    Reverse

    Clicking the Reverse button does not mean you are ordering your plan reversed. It is for visualization purposes only. You may reverse the plan by ordering under “Optional Add-ons”.

    Upper/Second Floor Plan: 88-102

Rear/Alternate Elevations

  • Rear Elevation

    Reverse

    Clicking the Reverse button does not mean you are ordering your plan reversed. It is for visualization purposes only. You may reverse the plan by ordering under “Optional Add-ons”.

    Rear Elevation Plan: 88-102

House Plan Highlights

Timber–frame accents highlight the winsome façade of this popular design; accentuated by its lively gabled roofs cape, rugged stone wainscots, shingle siding and cozy shutters. The broad front porch and large, vaulted rear BBQ porch encourage outdoor living and entertaining. From the foyer, visitors can take in the full expanse of the dramatic, well-lit interior, from the formal dining area in front, to the enormous vaulted great room and gourmet island kitchen, to the window-lined breakfast nook at the rear, which together create a dynamic, open family living space. Accessed through a private vestibule off the nook is the deluxe master suite, which features a bright bay window, a luxurious five-fixture bath, and a huge walk-in closet with direct laundry access. A work-at-home den, powder room, laundry room and a bedroom with en suite bath, garage and stair access are located at the front of the home. Upstairs, a large bonus room and third bedroom with full bath round out this fetching, flexible family floor plan.

This floor plan is found in our Cottage house plans section

Full Specs and Features

icon Total Living Area

  • Main floor: 2400
  • Upper floor: 620
  • Porches: 440
  • Total Finished Sq. Ft.: 3020

icon Beds/Baths

  • Bedrooms: 3
  • Full Baths: 3
  • Half Baths: 1

icon Garage

  • Garage: 540
  • Garage Stalls: 2

icon Levels

  • 2 stories

Dimension

  • Width: 62' 0"
  • Depth: 70' 0"
  • Height: 27' 0"

Roof slope

  • 10:12 (primary)
  • 3:12 (secondary)

Walls (exterior)

  • 2"x6"

Ceiling heights

  • 10' (Main)
    8' (Upper)

Foundation Options

  • Crawlspace Standard With Plan
  • Slab Standard With Plan

How Much Will It Cost To Build?

Wondering what it will actually cost to bring this home to life? Get an instant, customized estimate based on your chosen plan and location.

GET MY COST TO BUILD ESTIMATE

Modify This Plan

"Need Content here about modifying your plan"

Customize This Plan

House Plan Features

Suited for corner lots
Main floor Master Guest suite
Island Walk-in pantry Eating bar Nook / breakfast
Bonus room Great room Main Floor laundry Open concept floor plan Mud room Formal dining room Den / office / computer
Covered front porch Covered rear porch
Vaulted/Volume/Dramatic ceilings Photos Available
Side-entry garage

Reviews

How Much Will It Cost To Build?

Wondering what it will actually cost to bring this home to life? Get an instant, customized estimate based on your chosen plan and location.

GET MY COST TO BUILD ESTIMATE

Modify This Plan

Need changes to the layout or features? Our team can modify any plan to match your vision.

Customize This Plan

House Plan Features

Suited for corner lots
Main floor Master Guest suite
Island Walk-in pantry Eating bar Nook / breakfast
Bonus room Great room Main Floor laundry Open concept floor plan Mud room Formal dining room Den / office / computer
Covered front porch Covered rear porch
Vaulted/Volume/Dramatic ceilings Photos Available
Side-entry garage

Need Some Quick Tips Or Advice?

We want to help you design the house of your dreams as best as we can. If you can't find the answers you're looking for here, get in touch with our licensed architect or a designer!